Prodej bytu 2+kk, Salála, Omán, 47 m2 (ID: 2541381)

Salála

142 700 € /za nemovitost
Exkluzivní partneři

Informace k bytu

V místě, kde den začíná jemným zvukem oceánu a končí teplým světlem zapadajícího slunce, vzniká domov, který přináší lehkost, klid a pocit jistého zázemí. Riviera Residences v Hawana Salalah propojuje atmosféru pobřeží s moderním rezortním životem a představuje příležitost, která dává smysl jak pro osobní užívání, tak pro investici.

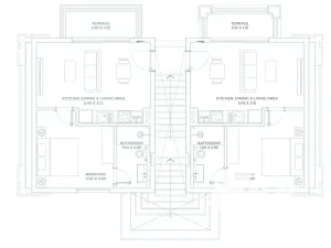
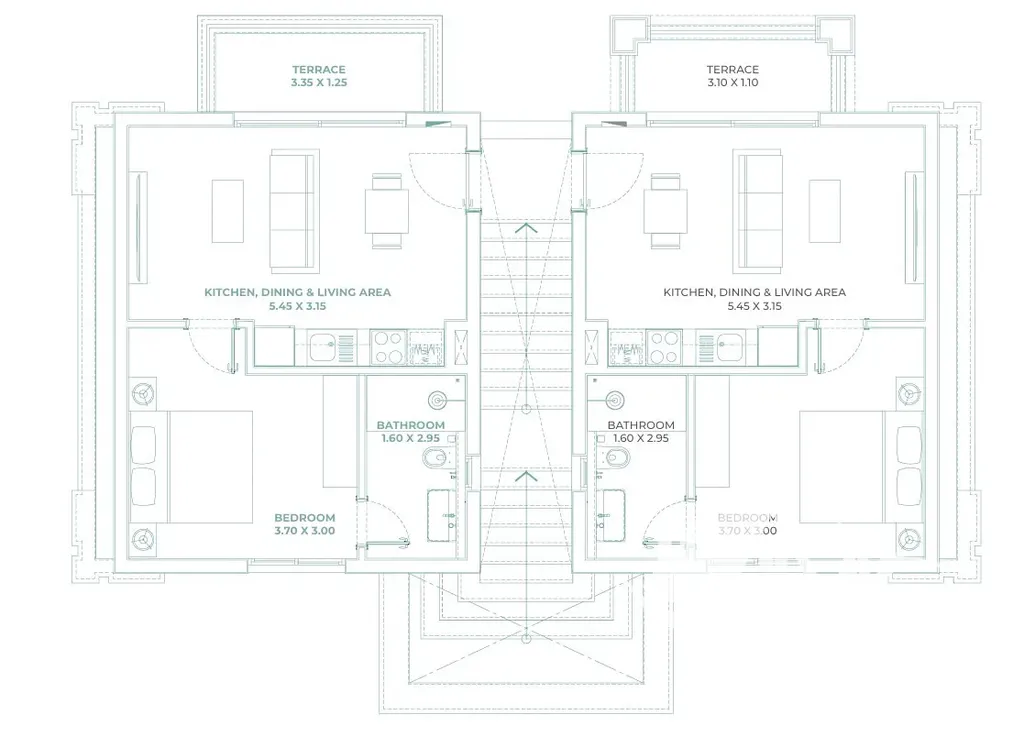
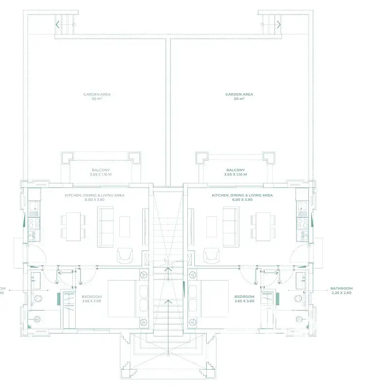
Byt o dispozici 2+kk s podlahovou plochou 50 m² se nachází v prvním patře a doplňuje jej terasa, která rozšiřuje obytný prostor a zve k ranní kávě i k večernímu odpočinku. Vzdušné uspořádání interiéru působí svěže a příjemně, zatímco okolní zeleň a mořský vzduch dodávají každému dni pohodový rytmus. Fotografie jsou ilustrační, avšak přesně vystihují atmosféru celého projektu.

Komplex Riviera Residences nabízí prostředí, kde se žije jako na dovolené. Několik bazénů, upravené zahrady, kavárny, promenády a relaxační zóny vytvářejí místo, kde si každý najde svůj kout klidu. Pláž je dosažitelná pohodlnou tříminutovou procházkou, což dodává celému projektu výjimečnou hodnotu.

Jedním z hlavních benefitů je flexibilní možnost financování. Apartmán lze pořídit na splátky s velmi nízkou počáteční investicí - stačí 10 % z ceny, zbytek je rozložen do několika let. Díky tomu je možné získat domov u moře bez velkých vstupních nákladů.

Investoři ocení garanci výnosu až 10% ročně v programu pronájmu, stejně jako freehold vlastnictví a možnost získání obnovitelného rodinného pobytu v Ománu. Kombinace těchto výhod dělá z Riviera Residences projekt s dlouhodobým potenciálem a stabilní hodnotou.

Tento rezidenční projekt spojuje mořský klid, jistotu investice a pohodlí rezortního života. Pokud vás nabídka zaujala, ráda vám poskytnu detailní informace a postarám se o celý proces - od výběru až po předání klíčů.

Parametry bytu

Cena
142 700 € /za nemovitost
Aktualizováno
25. 12. 2025
Adresa
Salála
ID
F21334
Stavba
Cihlová
Stav objektu
Velmi dobrý
Patro
1. z 2
Vybaveno
Ne
Vlastnictví
Osobní
Užitná plocha
47 m2
Podlahová plocha
50 m2
Elektřina
230V
Doprava
Silnice, Autobus
Voda
Vodovod
Terasa
Parkování

Kontaktovat makléře

Máte zájem o tento byt?

Tímto, v souladu s nařízením Evropského parlamentu a Rady (EU) 2016/679, v platném znění, prohlašuji, že mi je alespoň 16 let a uděluji tak svůj souhlas se zpracováním zadaných údajů (jméno, telefon, e-mail, ip adresa) společnosti B3 Technology, s.r.o., IČ: 07330600, se sídlem Novostavby 126/23, 435 11 Lom (správce dat), za účelem předání dotazu z tohoto formuláře Vámi vybranému inzerentovi a zpětného kontaktování mé osoby. Osobní údaje bude správce zpracovávat manuálně i automaticky přímo prostřednictvím svých zaměstnanců. Informace předané tímto formulářem budou uloženy v databázi správce maximálně po dobu 10 let. Odvolání souhlasu s uložením a zpracováním poskytnutých dat lze e-mailem na info@vitio.cz. V případě podezření na neoprávněné použití Vámi poskytnutých údajů máte právo předat podnět k šetření Úřadu pro ochranu osobních údajů. Více informací
Chystáte se prodat nemovitost?
Pomůžeme Vám!

Inzerát si prohlédlo 0 lidí

Prodejce

Angelina Vasileva

Angelina Vasileva

Hlídací pes

Chcete dostávat emailem podobné nabídky prodeje bytů 2+kk?

Podobné nemovitosti