Prodej zahrady, Klimkovice, U Zahrádek, 197 m2

U Zahrádek, Klimkovice

1 900 000 Kč /za nemovitost HYPOTÉKA od 8 492 Kč /za měsíc
Exkluzivní partneři v Klimkovicích

Informace k pozemku

Prodej zahrady, 197 m², Klimkovice, ul. U Zahrádek

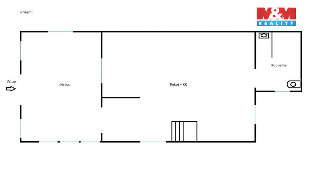
Exkluzivně nabízíme k prodeji udržovanou zahradu o rozloze 197 m², nacházející se v Zahrádkářské osadě Viola, na okraji obce Klimkovice. Zahrada je osázená ovocnými stromy a okrasnými keři. Je oplocená a nabízí k využití dosud nezkolaudovanou, celoročně využitelnou, nepodsklepenou, dřevěnou chatu s přilehlou venkovní terasou. Chata je vytápěná kamny a je napojená na veřejný vodovod a elektřinu. V přízemí chaty je k dispozici jídelna, obývací pokoj s kuchyňským koutem a koupelna s WC. V podkroví je samostatný pokoj s balkónem. Součástí nemovitosti je i plechový zahradní domek pro uskladnění nářadí. Skvělá dostupnost z Ostravy autem i MHD, činí tuto nemovitost ideálním místem pro ty, kteří hledají prostředí k relaxaci, odpočinku a zahrádkaření. Pro více informací a prohlídku nás neváhejte kontaktovat.

Parametry pozemku

Cena
1 900 000 Kč /za nemovitost Spočítat hypotéku
Aktualizováno
2. 2. 2026
Adresa
U Zahrádek, Klimkovice
ID
927780
Stav objektu
Velmi dobrý
Vybaveno
Ne
Lokalita objektu
Okraj obce
Vlastnictví
Osobní
Plocha pozemku
197 m2

Kontaktovat makléře

Realitní kancelář

Logo M&M reality

M&M reality

ulice Krakovská 583/9, Praha

Chystáte se prodat nemovitost?
Pomůžeme Vám!

Máte zájem o tento pozemek?

Tímto, v souladu s nařízením Evropského parlamentu a Rady (EU) 2016/679, v platném znění, prohlašuji, že mi je alespoň 16 let a uděluji tak svůj souhlas se zpracováním zadaných údajů (jméno, telefon, e-mail, ip adresa) společnosti B3 Technology, s.r.o., IČ: 07330600, se sídlem Novostavby 126/23, 435 11 Lom (správce dat), za účelem předání dotazu z tohoto formuláře Vámi vybranému inzerentovi a zpětného kontaktování mé osoby. Osobní údaje bude správce zpracovávat manuálně i automaticky přímo prostřednictvím svých zaměstnanců. Informace předané tímto formulářem budou uloženy v databázi správce maximálně po dobu 10 let. Odvolání souhlasu s uložením a zpracováním poskytnutých dat lze e-mailem na info@vitio.cz. V případě podezření na neoprávněné použití Vámi poskytnutých údajů máte právo předat podnět k šetření Úřadu pro ochranu osobních údajů. Více informací
Chystáte se prodat nemovitost?
Pomůžeme Vám!

Inzerát si prohlédlo 5 lidí

Prodejce

Bc. Daniel Novák

Bc. Daniel Novák

Hlídací pes

Chcete dostávat emailem podobné nabídky prodeje zahrad v Klimkovicích?

Podobné nemovitosti