Prodej bytu 1+1, Praha - Vršovice, Gruzínská, 44 m2

Gruzínská, Praha 10

6 800 000 Kč /za nemovitost HYPOTÉKA od 30 392 Kč /za měsíc
Exkluzivní partneři v Praze 10

Stěhovací služby

Výkup a prodej starého nábytku

Informace k bytu

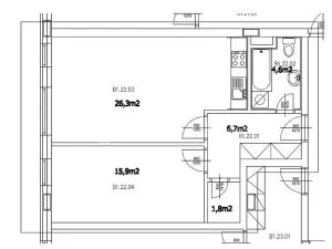
Nabízíme k prodeji světlý a velmi příjemný byt 1+1 o ploše 35,7 m² s balkonem 6,6 m² a sklepem 1,69 m², umístěný ve 3. patře zrekonstruovaného cihlového domu s výtahem v ulici Gruzínská, Praha 10 – Vršovice. Výborná poloha pár kroků od OC Eden a zastávky Slavia – Nádraží Eden z něj dělá ideální bydlení i investici.

Dispozice a vybavení:

Byt má praktické, přehledné uspořádání – z prostorné chodby vstoupíte do všech místností:
• světlý obývací pokoj se vstupem na balkon (orientace na západ, klidný výhled do zeleně),
• samostatná kuchyně s oknem a spíží,
• koupelna s vanou a pračkou,
• samostatné WC.

V předsíni jsou vestavěné šatní skříně, v bytě jsou dubové parkety a dlažba. Vytápění je centrální.

Dům a lokalita:

Udržovaný dům s novým výtahem, v roce 2024 proběhla výměna stoupaček teplé i studené vody včetně cirkulace, dále stoupaček plynu a kanalizace. Ve stejném roce byla provedena také výměna elektroinstalace – původní hliníkové rozvody byly nahrazeny měděnými ve společných částech domu i v bytě.

Tramvajová zastávka je cca 1 minutu chůze, v okolí je kompletní občanská vybavenost – obchody, restaurace, školy, sportoviště i parky. Velkou výhodou je také pohodlné parkování na ulici.

Náklady:

Zálohy na společné domovní služby, topení a teplou/studenou vodu činí 6 503 Kč / měsíc.
SVJ je dobře hospodařící, bez dluhů a s řádně vedeným fondem oprav.

Právní stav a financování:

Byt je bez právních vad, hypoték a závazků.
Nemovitost je v osobním vlastnictví, vhodná i pro financování hypotékou. Zajistíme bezpečný průběh celé transakce – úschovu kupní ceny dle Vaší volby (advokát/notář/banka), kompletní smluvní dokumentaci i hladký převod vlastnického práva. Pomůžeme také s vyřízením hypotéky.

Zaujala Vás tato nabídka? Ozvěte se a domluvte si prohlídku – rád Vám byt osobně představím.

Parametry bytu

Cena
6 800 000 Kč /za nemovitost Spočítat hypotéku
Aktualizováno
20. 1. 2026
Adresa
Gruzínská, Praha 10
ID
Gruzinská 3, Vršovice
Stavba
Smíšená
Stav objektu
Velmi dobrý
Patro
3. z 6
Vybaveno
Ano
Lokalita objektu
Klidná část obce
Vlastnictví
Osobní
Užitná plocha
44 m2
Třída energetické náročnosti
D - Méně úsporná
Plyn
Plynovod
Odpad
Veřejná kanalizace
Komunikace
Asfaltová
Telekomunikace
Telefon, Internet, Kabelová televize, Kabelové rozvody
Doprava
Vlak, Silnice, MHD, Autobus
Voda
Vodovod
Balkon
Sklep
Výtah

Kontaktovat makléře

Máte zájem o tento byt?

Tímto, v souladu s nařízením Evropského parlamentu a Rady (EU) 2016/679, v platném znění, prohlašuji, že mi je alespoň 16 let a uděluji tak svůj souhlas se zpracováním zadaných údajů (jméno, telefon, e-mail, ip adresa) společnosti B3 Technology, s.r.o., IČ: 07330600, se sídlem Novostavby 126/23, 435 11 Lom (správce dat), za účelem předání dotazu z tohoto formuláře Vámi vybranému inzerentovi a zpětného kontaktování mé osoby. Osobní údaje bude správce zpracovávat manuálně i automaticky přímo prostřednictvím svých zaměstnanců. Informace předané tímto formulářem budou uloženy v databázi správce maximálně po dobu 10 let. Odvolání souhlasu s uložením a zpracováním poskytnutých dat lze e-mailem na info@vitio.cz. V případě podezření na neoprávněné použití Vámi poskytnutých údajů máte právo předat podnět k šetření Úřadu pro ochranu osobních údajů. Více informací
Chystáte se prodat nemovitost?
Pomůžeme Vám!

Inzerát si prohlédlo 5 lidí

Prodejce

Sergej Gončarov

Sergej Gončarov

Hlídací pes

Chcete dostávat emailem podobné nabídky prodeje bytů 1+1 v Praze 10?

Podobné nemovitosti