Prodej bytu 3+1, Praha, Emilie Hyblerové, 70 m2

Emilie Hyblerové, Praha 4

7 900 000 Kč /za nemovitost HYPOTÉKA od 35 308 Kč /za měsíc
Exkluzivní partneři v Praze 4

Stěhovací služby

Výkup a prodej starého nábytku

Informace k bytu

Základní informace
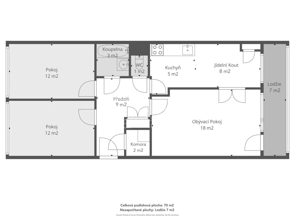
• Dispozice: 3+1 s lodžií a sklepem • Plocha: 70 m² + lodžie 7 m² + sklep 1,5 m² • Podlaží: 7/8 • Vlastnictví: osobní • Stav: původní, vhodný k rekonstrukci

Dispozice bytu
• Prostorný obývací pokoj se vstupem na zasklenou lodžii • Dvě samostatné ložnice (neprůchozí) s výhledem na lesopark Hostivař • Kuchyně s jídelním koutem a oknem • Samostatná koupelna a WC • Vstupní hala s úložnými prostory + komora • Sklepní kóje 1,5 m²
• Celkové měsíční náklady byly cca 8.000 Kč (včetně energií)

Výhody domu a lokality
• Revitalizovaný panelový dům - zateplení, nová fasáda, stoupačky, výtah, okna • Energetický štítek B (výhodnější hypotéka) • Bezúvěrový dům - SVJ má splaceno • Plánovaná oprava střechy a sklepů za cca 5 let

Občanská vybavenost (vše do 400 m)
• Obchody • Školy, školky • Pošta, poliklinika • Sportoviště, restaurace

Lokalita a doprava
• Metro Háje (linka C) - pouze 300 m • Autobusová zastávka přímo před domem • Rychlé spojení do centra Prahy • Dům na okraji sídliště v klidné části • Bezplatné parkování v okolí domu

Příroda v okolí
• Hostivařský lesopark - 400 m • Vodní nádrž Hostivař - 1 km • Množství zeleně v okolí

Ideální pro: Rodiny hledající klidné bydlení s výbornou dopravní dostupností
Možnost: Okamžité užívání nebo kompletní rekonstrukce dle vlastních představ

Tento byt představuje skvělou příležitost pro klidné rodinné bydlení v zelené lokalitě s bezprostřední dostupností metra. Nezmeškejte šanci na svůj nový domov!

Pokud máte zájem o prohlídku nebo více detailů, kontaktujte nás.

Parametry bytu

Cena
7 900 000 Kč /za nemovitost Spočítat hypotéku
Aktualizováno
18. 12. 2025
Adresa
Emilie Hyblerové, Praha 4
ID
18281
Stavba
Panelová
Stav objektu
Před rekonstrukcí
Patro
7. z 8
Vybaveno
Ne
Lokalita objektu
Sídliště
Vlastnictví
Osobní
Užitná plocha
70 m2
Zastavěná plocha
873 m2
Podlahová plocha
79 m2
Třída energetické náročnosti
B - Velmi úsporná
Elektřina
230V
Plyn
Plynovod
Odpad
Veřejná kanalizace
Komunikace
Asfaltová
Voda
Vodovod
Sklep
Lodžie
Výtah

Kontaktovat makléře

Máte zájem o tento byt?

Tímto, v souladu s nařízením Evropského parlamentu a Rady (EU) 2016/679, v platném znění, prohlašuji, že mi je alespoň 16 let a uděluji tak svůj souhlas se zpracováním zadaných údajů (jméno, telefon, e-mail, ip adresa) společnosti B3 Technology, s.r.o., IČ: 07330600, se sídlem Novostavby 126/23, 435 11 Lom (správce dat), za účelem předání dotazu z tohoto formuláře Vámi vybranému inzerentovi a zpětného kontaktování mé osoby. Osobní údaje bude správce zpracovávat manuálně i automaticky přímo prostřednictvím svých zaměstnanců. Informace předané tímto formulářem budou uloženy v databázi správce maximálně po dobu 10 let. Odvolání souhlasu s uložením a zpracováním poskytnutých dat lze e-mailem na info@vitio.cz. V případě podezření na neoprávněné použití Vámi poskytnutých údajů máte právo předat podnět k šetření Úřadu pro ochranu osobních údajů. Více informací
Chystáte se prodat nemovitost?
Pomůžeme Vám!

Inzerát si prohlédlo 1 lidí

Prodejce

Ing. Jaroslav Laur, MBA

Ing. Jaroslav Laur, MBA

Hlídací pes

Chcete dostávat emailem podobné nabídky prodeje bytů 3+1 v Praze 4?

Podobné nemovitosti