Prodej pozemku pro bydlení, Těšovice, 275 m2

Těšovice

750 000 Kč /za nemovitost HYPOTÉKA od 3 352 Kč /za měsíc
Exkluzivní partneři v Těšovicích

Informace k pozemku

Nabízíme k prodeji stavební pozemek o celkové výměře 275 m², situovaný v klidné části obce Těšovice s výbornou dostupností do okresního města Sokolov s kompletní občanskou vybaveností.

Pozemek je ideální pro klienty, kteří hledají úsporné a minimalistické bydlení v rekreačním objektu s nízkými náklady na výstavbu i pozdější provoz.

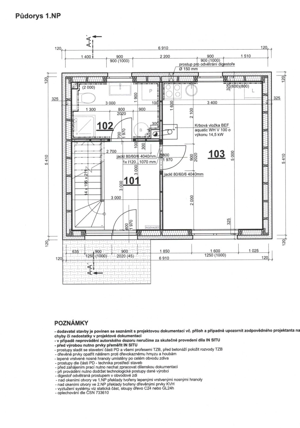
Součástí nabídky je kompletní projekt se stavebním povolením pro nízkonákladový objekt o zastavěné ploše 40,40 m². Jedná se o nepodsklepenou, jednopodlažní stavbu s půdním prostorem, která je navržena s ohledem na efektivní využití prostoru.

Projekt počítá s těmito místnostmi:
Obývací pokoj s kuchyňským koutem – 17 m²
Koupelna s WC – 5,7 m²
Zádveří – 9 m²
Půdní prostor využitelný jako úložný či relaxační

Inženýrské sítě:
Připojení na veřejný vodovod
Veřejná kanalizace
Elektrická přípojka 230 V je již na pozemku vybudovaná

Pro nízké náklady na vytápění je projekt počítán s využitím kvalitní teplovodní krbové vložky BEF AQUATIC WH V 100, která má integrovaný teplovodní výměník pro rozvod tepla do otopného systému. Tato vložka je navržena pro efektivní a čisté spalování dřeva s výkonem vhodným právě do menších objektů, a díky výměníku lze teplo s vysokou účinností využít i pro ohřev vody či topení domu.

Součástí projektu je i samostatný dřevník o zastavěné ploše 11 m², který je na pozemku již hotový – ideální pro uskladnění palivového dřeva nebo zahradního nářadí.

Těšovice – klidné a příjemné místo s dobrou dostupností do Sokolova a napojením na hlavní komunikace. Výborné místo pro ty, kteří chtějí kombinaci venkovského klidu a dostupnosti služeb města.

Parametry pozemku

Cena
750 000 Kč /za nemovitost Spočítat hypotéku
Aktualizováno
17. 12. 2025
Adresa
Těšovice
ID
N2559
Lokalita objektu
Klidná část obce
Plocha pozemku
275 m2
Elektřina
230V
Odpad
Veřejná kanalizace
Doprava
Vlak, Dálnice, Silnice, MHD, Autobus
Voda
Vodovod

Kontaktovat makléře

Máte zájem o tento pozemek?

Tímto, v souladu s nařízením Evropského parlamentu a Rady (EU) 2016/679, v platném znění, prohlašuji, že mi je alespoň 16 let a uděluji tak svůj souhlas se zpracováním zadaných údajů (jméno, telefon, e-mail, ip adresa) společnosti B3 Technology, s.r.o., IČ: 07330600, se sídlem Novostavby 126/23, 435 11 Lom (správce dat), za účelem předání dotazu z tohoto formuláře Vámi vybranému inzerentovi a zpětného kontaktování mé osoby. Osobní údaje bude správce zpracovávat manuálně i automaticky přímo prostřednictvím svých zaměstnanců. Informace předané tímto formulářem budou uloženy v databázi správce maximálně po dobu 10 let. Odvolání souhlasu s uložením a zpracováním poskytnutých dat lze e-mailem na info@vitio.cz. V případě podezření na neoprávněné použití Vámi poskytnutých údajů máte právo předat podnět k šetření Úřadu pro ochranu osobních údajů. Více informací
Chystáte se prodat nemovitost?
Pomůžeme Vám!

Inzerát si prohlédlo 7 lidí

Prodejce

David Veršecký

David Veršecký

Hlídací pes

Chcete dostávat emailem podobné nabídky prodeje pozemků pro bydlení v Těšovicích (okr. Sokolov)?

Podobné nemovitosti