Prodej bytu 2+1, Praha - Krč, Kremličkova, 64 m2

Kremličkova, Praha 4

Cena na vyžádání /za nemovitost Získejte výhodnou HYPOTÉKU

(cena u makléře)

Exkluzivní partneři v Praze 4

Stěhovací služby

Výkup a prodej starého nábytku

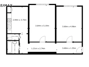
Informace k bytu

Nabízíme k prodeji prostorný byt 2+1 o velikosti 64,5 m² v družstevním vlastnictví, který se nachází v oblíbené pražské čtvrti Krč, kousek od metra Budějovická, v klidné ulici Kremličkova. Jednotka se nachází ve 2. nadzemním podlaží bytového domu. Díky své dispozici a umístění je byt vhodnou volbou jak pro vlastní bydlení, tak jako investice k pronájmu.

Byt má praktické uspořádání – z centrální chodby se vstupuje do samostatné kuchyně a dvou neprůchozích pokojů. Tento koncept poskytuje pohodlí a dostatek soukromí jak párům, tak i vícečlenné domácnosti nebo dvěma spolubydlícím.
Obývací pokoj je orientován do tišší části ulice a díky velkým oknům působí příjemně světlým dojmem. Ložnice nabízí dost místa pro velkou postel i úložné prostory. Koupelna s vanou a samostatná toaleta doplňují komfortní zázemí bytu.

Aktuální stav umožňuje okamžité užívání, zároveň však bytu nechává velký prostor pro budoucí modernizaci – například pro vytvoření oblíbeného řešení 2+kk nebo nové kuchyňské, podlahové či úložné prvky.

Lokalita Krč/Budějovická patří mezi stabilně vyhledávané části Prahy díky skvělé občanské vybavenosti a perfektní dopravní dostupnosti. V okolí najdete obchody, restaurace, školy, sportoviště i zdravotnická zařízení. Zastávky MHD jsou jen pár minut chůze a poskytují rychlé spojení na metro Budějovická i do dalších částí města. Výhodou je také snadné napojení na městský okruh a hlavní městské tahy.

Pokud hledáte byt s dobrou dispozicí, příjemnou atmosférou a potenciálem pro úpravy podle vlastních představ, může být tato nabídka ideální volbou.
Rádi vám byt osobně představíme – kontaktujte nás pro sjednání prohlídky.

Parametry bytu

Cena
Cena na vyžádání Spočítat hypotéku
Poznámka k ceně
cena u makléře
Aktualizováno
16. 12. 2025
Adresa
Kremličkova, Praha 4
ID
262-NP00564
Stavba
Smíšená
Stav objektu
Dobrý
Patro
2. z 5
Vlastnictví
Družstevní
Užitná plocha
64 m2
Zastavěná plocha
337 m2
Třída energetické náročnosti
G - Mimořádně nehospodárná
Elektřina
230V
Plyn
Plynovod
Odpad
Veřejná kanalizace
Voda
Vodovod
Sklep
Převod do OV

Kontaktovat makléře

Realitní kancelář

Logo RE/MAX Scopus

RE/MAX Scopus

Olbrachtova 1065/46, Praha 4

Chystáte se prodat nemovitost?
Pomůžeme Vám!

Máte zájem o tento byt?

Tímto, v souladu s nařízením Evropského parlamentu a Rady (EU) 2016/679, v platném znění, prohlašuji, že mi je alespoň 16 let a uděluji tak svůj souhlas se zpracováním zadaných údajů (jméno, telefon, e-mail, ip adresa) společnosti B3 Technology, s.r.o., IČ: 07330600, se sídlem Novostavby 126/23, 435 11 Lom (správce dat), za účelem předání dotazu z tohoto formuláře Vámi vybranému inzerentovi a zpětného kontaktování mé osoby. Osobní údaje bude správce zpracovávat manuálně i automaticky přímo prostřednictvím svých zaměstnanců. Informace předané tímto formulářem budou uloženy v databázi správce maximálně po dobu 10 let. Odvolání souhlasu s uložením a zpracováním poskytnutých dat lze e-mailem na info@vitio.cz. V případě podezření na neoprávněné použití Vámi poskytnutých údajů máte právo předat podnět k šetření Úřadu pro ochranu osobních údajů. Více informací
Chystáte se prodat nemovitost?
Pomůžeme Vám!

Inzerát si prohlédlo 0 lidí

Prodejce

Petr Šach

Petr Šach

Hlídací pes

Chcete dostávat emailem podobné nabídky prodeje bytů 2+1 v Praze 4?

Podobné nemovitosti