Prodej pozemku pro bydlení, Želiv, 1057 m2

Želiv

1 767 Kč /za metr čtvereční HYPOTÉKA od 8 Kč /za měsíc
Exkluzivní partneři v Želivi

Informace k pozemku

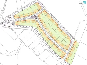
Dovoluji si nabídnout ke koupi stavební pozemek v obci Želiv. Lokalita Pod Haštalem je nově vznikající části obce. Samotná obec kompletně zajištuje zasíťování jednotlivých pozemků, výstavbu komunikací, chodníků i veřejného osvětlení. V listopadu proběhla kolaudace přípojek inženýrských sítí (vodovod, kanalizace, elektřina a datový kabel). Lokalita nabízí rozmanité výměry pozemků od 800 do 1211m². Prodej stavebních pozemků bude probíhat formou obálkové metody. Minimální nabídka činí 1760,60,-Kč za 1 metr čtvereční pozemku. Detaily i pravidla pro podání nabídky Vám rádi vysvětlíme. Lokalita pod Haštalem se nachází v klidné části obce Želiv. V docházkové vzdálenosti je škola, školka, restaurace i obchody. Želiv je perfektně fungující obec s ideálním zázemím pro rodinný život. Výhodou je také poloha obce. Města Humpolec i Pelhřimov se nachází v dojezdové vzdálenosti 15 minut. Obcí protéká řeka Želivka. Na dohled od parcel stojí vodní nádrž Trnávka, která je oblíbenou destinací v letních měsících (koupání, rybolov i vodní sporty). Nepropásněte tuto jedinečnou příležitost a zajistěte si své místo pro stavbu domu. Pro více informací kontaktujte realitního specialistu. Ev. číslo: 27344.

Parametry pozemku

Cena
1 767 Kč /za metr čtvereční Spočítat hypotéku
Aktualizováno
10. 12. 2025
Adresa
Želiv
ID
27344
Lokalita objektu
Klidná část obce
Plocha pozemku
1057 m2
Třída energetické náročnosti
G - Mimořádně nehospodárná
Odpad
Veřejná kanalizace
Voda
Vodovod

Kontaktovat makléře

Realitní kancelář

Logo Reality 11

Reality 11

Svornosti 985/8, Praha

Chystáte se prodat nemovitost?
Pomůžeme Vám!

Máte zájem o tento pozemek?

Tímto, v souladu s nařízením Evropského parlamentu a Rady (EU) 2016/679, v platném znění, prohlašuji, že mi je alespoň 16 let a uděluji tak svůj souhlas se zpracováním zadaných údajů (jméno, telefon, e-mail, ip adresa) společnosti B3 Technology, s.r.o., IČ: 07330600, se sídlem Novostavby 126/23, 435 11 Lom (správce dat), za účelem předání dotazu z tohoto formuláře Vámi vybranému inzerentovi a zpětného kontaktování mé osoby. Osobní údaje bude správce zpracovávat manuálně i automaticky přímo prostřednictvím svých zaměstnanců. Informace předané tímto formulářem budou uloženy v databázi správce maximálně po dobu 10 let. Odvolání souhlasu s uložením a zpracováním poskytnutých dat lze e-mailem na info@vitio.cz. V případě podezření na neoprávněné použití Vámi poskytnutých údajů máte právo předat podnět k šetření Úřadu pro ochranu osobních údajů. Více informací
Chystáte se prodat nemovitost?
Pomůžeme Vám!

Inzerát si prohlédlo 1 lidí

Prodejce

Radim Dalík

Radim Dalík

Hlídací pes

Chcete dostávat emailem podobné nabídky prodeje pozemků pro bydlení v Želivi?

Podobné nemovitosti