Prodej bytu 2+1, Chomutov, Bezručova, 64 m2

Bezručova, Chomutov

2 900 000 Kč /za nemovitost HYPOTÉKA od 12 961 Kč /za měsíc

(včetně provize a právního servisu)

Exkluzivní partneři v Chomutově

Okna a dveře

Rekonstrukce

Zámečnické práce

Informace k bytu

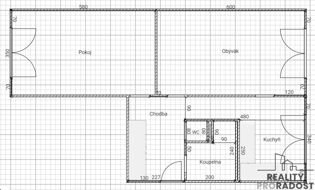
Nabízíme exkluzivně na prodej byt 2+1 v centru Chomutova na tzv. Dehtochemě v Bezručově ulici. Byt se nachází na 3. nadzemním podlaží a má výměru 64,74 m2. Na chodbě v mezipatře se nachází komora na uskladnění věcí a dále k bytu náleží sklepní kóje. Sklepy se nacházejí v 1. nadzemním podlaží a jsou zabezpečeny mříží na vstupních dveřích ke sklepům.
Bytová jednotka byla před časem zrekonstruovaná, jádro je vyzděné. Koupelna a WC jsou řešeny samostatně. V koupelně je sprchový kout a dostatek prostoru na pračku. Interiérové dveře jsou posuvné. V chodbě je velká šatní skříň a další skříň je k dispozici v jednom z pokojů.
V kuchyni se nachází zachovalá rohová kuchyňská linka s myčkou a naproti lince je ve stejném tónu úložná skříňka. Do obývacího pokoje jsou dva vstupy, takže je možné ho přepažit na dvě místnosti. Okno je stejně jako v kuchyni směrem do ulice. Druhý pokoj má okno do vnitrobloku.
V blízkosti je veškerá občanská vybavenost včetně MHD, autobusové a vlakové dopravy. Naproti přes ulici je obchod Billa, dále divadlo s prostorným městským parkem. Do Bezručova údolí, které je oblíbené na procházky a vyjížďky na kole nebo bruslích, se dostanete za pár minut.
Byt doporučujeme vzhledem k jeho poloze, nízkým nákladům a příjemně řešeným dispozicím. Pomůžeme Vám rádi s financováním jeho koupě. Ohledně prohlídky, prosím, kontaktujte makléře nemovitosti.

Parametry bytu

Cena
2 900 000 Kč /za nemovitost Spočítat hypotéku
Poznámka k ceně
včetně provize a právního servisu
Aktualizováno
9. 12. 2025
Adresa
Bezručova, Chomutov
ID
28449
Stavba
Panelová
Stav objektu
Velmi dobrý
Patro
3. z 10
Vybaveno
Částečně
Lokalita objektu
Centrum obce
Vlastnictví
Osobní
Užitná plocha
64 m2
Podlahová plocha
64 m2
Třída energetické náročnosti
D - Méně úsporná
Ukazatel energetické náročnosti
102 kWh/m2 za rok
Elektřina
230V
Plyn
Plynovod
Odpad
Veřejná kanalizace
Komunikace
Asfaltová
Doprava
Vlak, Dálnice, Silnice, MHD, Autobus
Voda
Vodovod
Výtah

Kontaktovat makléře

Máte zájem o tento byt?

Tímto, v souladu s nařízením Evropského parlamentu a Rady (EU) 2016/679, v platném znění, prohlašuji, že mi je alespoň 16 let a uděluji tak svůj souhlas se zpracováním zadaných údajů (jméno, telefon, e-mail, ip adresa) společnosti B3 Technology, s.r.o., IČ: 07330600, se sídlem Novostavby 126/23, 435 11 Lom (správce dat), za účelem předání dotazu z tohoto formuláře Vámi vybranému inzerentovi a zpětného kontaktování mé osoby. Osobní údaje bude správce zpracovávat manuálně i automaticky přímo prostřednictvím svých zaměstnanců. Informace předané tímto formulářem budou uloženy v databázi správce maximálně po dobu 10 let. Odvolání souhlasu s uložením a zpracováním poskytnutých dat lze e-mailem na info@vitio.cz. V případě podezření na neoprávněné použití Vámi poskytnutých údajů máte právo předat podnět k šetření Úřadu pro ochranu osobních údajů. Více informací
Chystáte se prodat nemovitost?
Pomůžeme Vám!

Inzerát si prohlédlo 0 lidí

Prodejce

Ing. Klára Kašparová

Ing. Klára Kašparová

Hlídací pes

Chcete dostávat emailem podobné nabídky prodeje bytů 2+1 v Chomutově?

Podobné nemovitosti