Prodej pozemku pro bydlení, Praha - Libeň, Davídkova, 909 m2

Davídkova, Praha 8

Cena na vyžádání /za nemovitost Získejte výhodnou HYPOTÉKU

(Cena kompletní, včetně provize a právních služeb.)

Exkluzivní partneři v Praze 8

Stěhovací služby

Výkup a prodej starého nábytku

Informace k pozemku

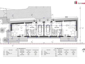
Dumrealit.cz Vám zprostředkuje koupi rovinatého stavebního pozemku plochy 909m² určeného pro výstavbu dvojdomu o užitné ploše 333,5m², se sklepními prostory 166,1m² a střešními terasami plochy 102,2m². Pozemek je obdélníkového tvaru s plánovaným vjezdem z ulice Davídkova, Praha 8. Nachází se na kopci v místě, kde svah pozvolna přechází do roviny. Na výstavbu dvojdomu již bylo v roce 2025 vydáno územní rozhodnutí. Směrově je situován zejména na jih a sever. Dům "A" má užitnou plochu 159,0m², plus sklepní prostory 78,8m² a střešní terasy 47,7m². Dům "B" má užitnou plochu 174,5m², plus sklepní prostory 87,3m² a střešní terasy 54,5m². Jedná se vždy o dvě obytná nadzemní podlaží a střešní ateliér se dvěma terasami pro každý dům. V 1. NP se nachází hala, koupelna a obývací pokoj s kuchyňským koutem, dále garáž. Ve 2. NP se nachází tři ložnice a prostornější koupelna. Ve 3. NP se nachází střešní ateliér se vstupy na dvě terasy, z nichž bude krásný výhled na Prahu. V celé ploše půdorysu domu je podzemní podlaží s výškou stropu 2,55m se širokým potenciálem využití na kanceláře, skladové prostory, tělocvičnu, posilovnu, herny apod..
V rámci přípravy stavby již byly realizovány přípojky vody, kanalizace a plynu. Vjezd na pozemek je projektován z ulice Davídkova. Pozemek navazuje na zástavbu prvorepublikových rodinných domů. V sousedství se mimo jiné nachází hotel Mazanka ve vlastnictví Akademie věd ČR. V blízkosti je veškerá občanská vybavenost. V docházkové vzdálenosti nákupní centrum Ládví se supermarketem a mnoha obchody, stanice metra, tramvají a autobusů. Na procházky je vhodný Přírodní park Okrouhlík nebo nedaleký Ďáblický háj. Autem lze v krátkých časových intervalech dojet po celé Praze či využít tunelu Blanka se spojením na důležité výpadovky z Prahy. Lokalitu lze považovat za širší centrum Prahy. Pozemek je situovaný na náhorní plošině s atraktivním výhledem. Součástí prodeje je předání výkresové dokumentace objektu pro územní rozhodnutí včetně již vydaného územního rozhodnutí s nabytím právní moci. Pro další informace neváhejte kontaktovat makléře. Ev. číslo: 653233.

Parametry pozemku

Cena
Cena na vyžádání Spočítat hypotéku
Poznámka k ceně
Cena kompletní, včetně provize a právních služeb.
Aktualizováno
17. 12. 2025
Adresa
Davídkova, Praha 8
ID
653847
Lokalita objektu
Klidná část obce
Plocha pozemku
909 m2
Třída energetické náročnosti
B - Velmi úsporná
Elektřina
400V
Plyn
Plynovod
Odpad
Veřejná kanalizace
Topení
Lokální plynové
Voda
Vodovod

Kontaktovat makléře

Máte zájem o tento pozemek?

Tímto, v souladu s nařízením Evropského parlamentu a Rady (EU) 2016/679, v platném znění, prohlašuji, že mi je alespoň 16 let a uděluji tak svůj souhlas se zpracováním zadaných údajů (jméno, telefon, e-mail, ip adresa) společnosti B3 Technology, s.r.o., IČ: 07330600, se sídlem Novostavby 126/23, 435 11 Lom (správce dat), za účelem předání dotazu z tohoto formuláře Vámi vybranému inzerentovi a zpětného kontaktování mé osoby. Osobní údaje bude správce zpracovávat manuálně i automaticky přímo prostřednictvím svých zaměstnanců. Informace předané tímto formulářem budou uloženy v databázi správce maximálně po dobu 10 let. Odvolání souhlasu s uložením a zpracováním poskytnutých dat lze e-mailem na info@vitio.cz. V případě podezření na neoprávněné použití Vámi poskytnutých údajů máte právo předat podnět k šetření Úřadu pro ochranu osobních údajů. Více informací
Chystáte se prodat nemovitost?
Pomůžeme Vám!

Inzerát si prohlédlo 7 lidí

Prodejce

Ing. Tomáš Suntych

Ing. Tomáš Suntych

Hlídací pes

Chcete dostávat emailem podobné nabídky prodeje pozemků pro bydlení v Praze 8?

Podobné nemovitosti