Prodej komerční nemovitosti, Kamenice nad Lipou, Družstevní, 273 m2

Družstevní, Kamenice nad Lipou

Cena na vyžádání /za nemovitost Získejte výhodnou HYPOTÉKU

(Info k ceně u RK)

Exkluzivní partneři v Kamenici nad Lipou

Informace k nemovitosti

KAVKA REAL ESTATES Vám exkluzivně zprostředkují k prodeji komerční areál o užitné ploše 273 m2, na pozemku o celkové výměře 1102 m2, který se nachází v centru města Kamenice nad Lipou. Areál je oplocený se zpevněnou plochou a velmi dobře dopravně dostupný.

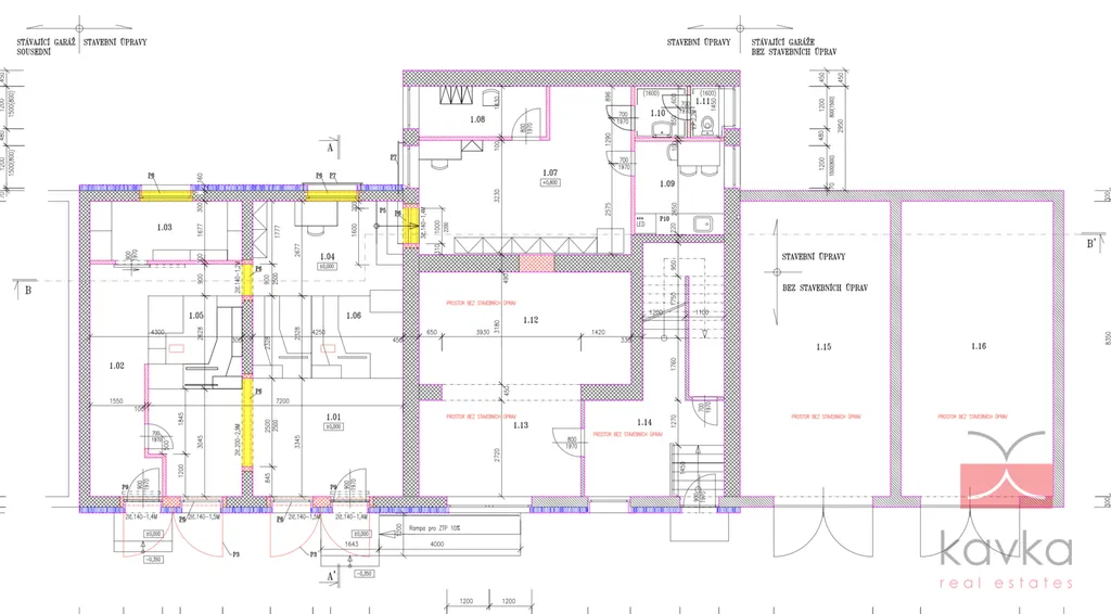
Dispoziční členění: 1.NP - (provoz č. 1) - hala, chobba-zázemí, balíkový sklad, zázemí přepážek, balíková přepážka, univerzální přepážky, zázemí, šatna, denní místnost, předsíň, WC, (provoz č. 2) - prostor prozatím bez využití, prostor prozatím bez využití, chodba a schodiště do 2.NP, (provoz č. 3) garáž, (provoz č. 4) garáž. Dispoziční členění: 2.NP - (provoz č. 5) – byt 2+1 – chodba, kuchyň, WC, koupelna, pokoj č. 1 pokoj č.2.

Areál má širokou škálu využití je vhodný jako investice vzhledem k výnosu z nájmů, drobné výrobě, skladování či jako spediční firma, sídlo firmy atd.. Z inženýrských sítí je k dispozici – voda, elektřina 230, 400 V, obecní splašková kanalizace, plyn není zaveden možnost napojení. Vytápění je řešeno tepelným čerpadlem (provoz č.1), ostatní provozy el. přímotopy. Ohřev vody el. bojlerem a průtokovými ohřívači. V roce 2022 proběhla kompletní rekonstrukce provozu č. 1 včetně zateplení. V případě zájmu o více informací či prohlídku kontaktujte makléře společnosti.

Parametry nemovitosti

Cena
Cena na vyžádání Spočítat hypotéku
Poznámka k ceně
Info k ceně u RK
Aktualizováno
5. 12. 2025
Adresa
Družstevní, Kamenice nad Lipou
ID
0478
Stavba
Cihlová
Stav objektu
Po rekonstrukci
Vybaveno
Částečně
Typ objektu
Patrový
Lokalita objektu
Centrum obce
Užitná plocha
273 m2
Zastavěná plocha
283 m2
Podlahová plocha
273 m2
Plocha zahrady
1102 m2
Třída energetické náročnosti
G - Mimořádně nehospodárná
Elektřina
230V, 400V
Odpad
Veřejná kanalizace
Komunikace
Asfaltová
Doprava
Silnice, Autobus
Voda
Vodovod
Garáž
Převod do OV
Parkování

Kontaktovat makléře

Realitní kancelář

Logo KAVKA REAL ESTATES

KAVKA REAL ESTATES

Karlovarská 1104/14b, Praha

Chystáte se prodat nemovitost?
Pomůžeme Vám!

Máte zájem o tuto nemovistost?

Tímto, v souladu s nařízením Evropského parlamentu a Rady (EU) 2016/679, v platném znění, prohlašuji, že mi je alespoň 16 let a uděluji tak svůj souhlas se zpracováním zadaných údajů (jméno, telefon, e-mail, ip adresa) společnosti B3 Technology, s.r.o., IČ: 07330600, se sídlem Novostavby 126/23, 435 11 Lom (správce dat), za účelem předání dotazu z tohoto formuláře Vámi vybranému inzerentovi a zpětného kontaktování mé osoby. Osobní údaje bude správce zpracovávat manuálně i automaticky přímo prostřednictvím svých zaměstnanců. Informace předané tímto formulářem budou uloženy v databázi správce maximálně po dobu 10 let. Odvolání souhlasu s uložením a zpracováním poskytnutých dat lze e-mailem na info@vitio.cz. V případě podezření na neoprávněné použití Vámi poskytnutých údajů máte právo předat podnět k šetření Úřadu pro ochranu osobních údajů. Více informací
Chystáte se prodat nemovitost?
Pomůžeme Vám!

Inzerát si prohlédlo 15 lidí

Prodejce

Lukáš Kavka

Lukáš Kavka

Hlídací pes

Chcete dostávat emailem podobné nabídky prodeje komerčních nemovitostí v Kamenici nad Lipou?