Prodej bytu 3+1, Velká Bystřice, Nádražní I, 68 m2

Nádražní I, Velká Bystřice

5 770 000 Kč /za nemovitost HYPOTÉKA od 25 788 Kč /za měsíc

(včetně poplatků, včetně provize, včetně právního servisu)

Exkluzivní partneři v Velké Bystřici

Informace k bytu

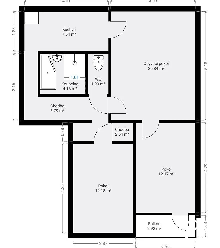
Představujeme Vám v zastoupení majitele nabídku prodeje bytu 3+1 s balkonem, který se nachází ve Velké Bystřici, v klidné a oblíbené části města.
Jednotka je umístěna v 3. NP z celkových 4 NP, udržovaném panelového domu po revitalizaci.
Byt prošel rekonstrukcí jádra, rozvodů vody a odpadu, výměnou elektroinstalace, novým topením v letech 2015-2017. Nemovitost sestává ze vstupní chodby, samostatné kuchyně s linkou, kombinovaným sporákem, myčkou nádobí a jídelním koutem, koupelny s vanou, sprchovým koutem a umyvadlem, samostatné toalety, obývacího pokoje průchozího s kuchyně a chodby. Dalších dvou neprůchozích pokojů, kdy z posledního z nich vstoupíme na krytý prostorný balkon.
Velkou výhodou je zákoutí v bytě, které se dá využít pro vestavěné skříně a další úložný prostor. Celý byt je průchozí dokola a proto působí velmi vzdušně a příjemně. V bytě je mnoho úložného prostoru a skříněk.
Podlahy jsou kombinované, v pokojích je lino, v koupelně a na chodbě je keramická dlažba. Dveře od bytu jsou bezpečnostní, samozřejmostí jsou plastová okna. Orientace bytu je na severovýchodní a jihozápadní stranu.
Vytápění - plynová kotelna ve sklepě a ohřev el. vody bojlerem v bytě je v koupelně.
V bytě je nainstalován bezpečnostní uzávěr vody, prevence havárií vodovodních rozvodů v domech a bytech - Vodostop.

K bytu náleží prostorný sklep o velikosti 11,8 m² a společné prostory jen pro odrážedla a kočárky. Celý dům v žádané a klidné lokalitě je po kompletní revitalizaci.
Panelový dům má vlastní oplocenou zahradu z přední a zadní části, kde je kryté posezení, lavičky a dětské hřiště.
Dům má dva chody, zadní krytý vchod je přímo do zahrady. Zahrada s posezením je k dispozici všem obyvatelům v tomto vchodu.

V nejbližším okolí se nachází veškerá občanská vybavenost. Dostupnost na vlak do 5 min, MHD 5 min, obchod 10 min, pošta 10 min, školka a základní škola 15-20 min, a v park je do 10 min od bytu.
Autem je Olomouc dostupná do 10 minut, poloha bytu je velmi blízko napojení na hlavní tepnu do Olomouce. Ulice, kde se nachází byt je ve velmi klidné části, v boční ulici, která navazuje na slepou ulici. Byt je v klidné bezpečné lokalitě.
Parkování je možné před domem, parkovací místa jsou volná a je jich dostatečný počet.

Byt se nabízí do prodeje nyní, k nastěhování je možný ideálně únor-březen 2026. Původní majitel po převodu nemovitosti může do smluveného data zůstat v nájmu.

Cena je uvedena včetně kompletního právního servisu, rezervačního poplatku a veškerých administrativních nákladů.
Rádi Vám pomůžeme také se zajištěním nejvýhodnějšího financování.
Zveme Vás na osobní prohlídku této příjemné a útulné nemovitosti.
Pro více informací nebo domluvení termínu prohlídky kontaktujte makléře.

Parametry bytu

Cena
5 770 000 Kč /za nemovitost Spočítat hypotéku
Poznámka k ceně
včetně poplatků, včetně provize, včetně právního servisu
Aktualizováno
1. 12. 2025
Adresa
Nádražní I, Velká Bystřice
ID
00259
Stavba
Panelová
Stav objektu
Velmi dobrý
Patro
3. z 4
Vybaveno
Částečně
Lokalita objektu
Klidná část obce
Vlastnictví
Osobní
Užitná plocha
68 m2
Podlahová plocha
83 m2
Třída energetické náročnosti
D - Méně úsporná
Ukazatel energetické náročnosti
92 kWh/m2 za rok
Elektřina
230V
Plyn
Plynovod
Odpad
Veřejná kanalizace
Komunikace
Asfaltová
Telekomunikace
Internet, Satelit
Doprava
Vlak, Dálnice, Silnice, MHD, Autobus
Voda
Vodovod
Topné těleso
Radiátory
Zdroj topení
Centrální dálkové
Zdroj teplé vody
Bojler - elektro, Centrální dálkový ohřev
Balkon
Sklep
Výtah

Kontaktovat makléře

Máte zájem o tento byt?

Tímto, v souladu s nařízením Evropského parlamentu a Rady (EU) 2016/679, v platném znění, prohlašuji, že mi je alespoň 16 let a uděluji tak svůj souhlas se zpracováním zadaných údajů (jméno, telefon, e-mail, ip adresa) společnosti B3 Technology, s.r.o., IČ: 07330600, se sídlem Novostavby 126/23, 435 11 Lom (správce dat), za účelem předání dotazu z tohoto formuláře Vámi vybranému inzerentovi a zpětného kontaktování mé osoby. Osobní údaje bude správce zpracovávat manuálně i automaticky přímo prostřednictvím svých zaměstnanců. Informace předané tímto formulářem budou uloženy v databázi správce maximálně po dobu 10 let. Odvolání souhlasu s uložením a zpracováním poskytnutých dat lze e-mailem na info@vitio.cz. V případě podezření na neoprávněné použití Vámi poskytnutých údajů máte právo předat podnět k šetření Úřadu pro ochranu osobních údajů. Více informací
Chystáte se prodat nemovitost?
Pomůžeme Vám!

Inzerát si prohlédlo 2 lidí

Prodejce

Ing. Barbora Soukupová

Ing. Barbora Soukupová

Hlídací pes

Chcete dostávat emailem podobné nabídky prodeje bytů 3+1 v Velké Bystřici?

Podobné nemovitosti