Prodej bytu 3+kk, Praha - Radlice, Na Farkáně III, 79 m2

Na Farkáně III, Praha 5

11 850 000 Kč /za nemovitost HYPOTÉKA od 52 962 Kč /za měsíc
Exkluzivní partneři v Praze 5

Stěhovací služby

Výkup a prodej starého nábytku

Informace k bytu

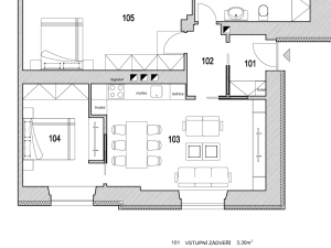
Prodej bytu 3+kk, 79 m², Praha, ul. Na Farkáně III

Nabízíme k prodeji moderní a velmi prostorný byt 3+kk o velikosti 79,7 m², umístěný v žádané lokalitě Na Farkáňě III v Praze. Byt prošel kompletní a vysoce kvalitní rekonstrukcí, včetně nových rozvodů, podlah, interiérových dveří, moderní koupelny. Nemovitost je zcela bezbariérová, což zajišťuje pohodlný přístup pro každého. Byt působí velmi čistým, nadčasovým a harmonickým dojmem. K bytu náleží vlastní zahrádka za domem, ideální pro relaxaci, posezení nebo drobné zahradničení – velký benefit v této lokalitě.
Současně je možné dokoupit samostatnou garáž, která poskytne pohodlné parkování. Lokalita bytu je vyhledávaná pro svou klidnou atmosféru a zároveň skvělou dostupnost. V docházkové vzdálenosti je kompletní občanská vybavenost – obchody, školy, školky, sportoviště, zdravotní služby i zastávky MHD. Okolí nabízí také dostatek zeleně a příjemných míst k procházkám. Byt je ideální jak pro rodinu, tak pro pár nebo jako investiční příležitost.

Parametry bytu

Cena
11 850 000 Kč /za nemovitost Spočítat hypotéku
Aktualizováno
28. 1. 2026
Adresa
Na Farkáně III, Praha 5
ID
922380
Stavba
Cihlová
Stav objektu
Po rekonstrukci
Vybaveno
Částečně
Lokalita objektu
Klidná část obce
Vlastnictví
Osobní
Užitná plocha
79 m2

Kontaktovat makléře

Realitní kancelář

Logo M&M reality

M&M reality

ulice Krakovská 583/9, Praha

Chystáte se prodat nemovitost?
Pomůžeme Vám!

Máte zájem o tento byt?

Tímto, v souladu s nařízením Evropského parlamentu a Rady (EU) 2016/679, v platném znění, prohlašuji, že mi je alespoň 16 let a uděluji tak svůj souhlas se zpracováním zadaných údajů (jméno, telefon, e-mail, ip adresa) společnosti B3 Technology, s.r.o., IČ: 07330600, se sídlem Novostavby 126/23, 435 11 Lom (správce dat), za účelem předání dotazu z tohoto formuláře Vámi vybranému inzerentovi a zpětného kontaktování mé osoby. Osobní údaje bude správce zpracovávat manuálně i automaticky přímo prostřednictvím svých zaměstnanců. Informace předané tímto formulářem budou uloženy v databázi správce maximálně po dobu 10 let. Odvolání souhlasu s uložením a zpracováním poskytnutých dat lze e-mailem na info@vitio.cz. V případě podezření na neoprávněné použití Vámi poskytnutých údajů máte právo předat podnět k šetření Úřadu pro ochranu osobních údajů. Více informací
Chystáte se prodat nemovitost?
Pomůžeme Vám!

Inzerát si prohlédlo 12 lidí

Prodejce

Kristýna Skořepová

Kristýna Skořepová

Hlídací pes

Chcete dostávat emailem podobné nabídky prodeje bytů 3+kk v Praze 5?

Podobné nemovitosti