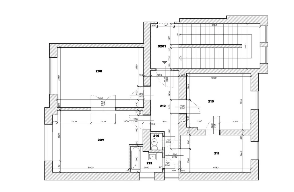
Prodej bytu 3+1, Mariánské Lázně, Hlavní třída, 89 m2

Hlavní třída, Mariánské Lázně

4 499 000 Kč /za nemovitost HYPOTÉKA od 20 108 Kč /za měsíc
Exkluzivní partneři v Mariánských Lázních

Informace k bytu

Dovolujeme Vám nabídnout krásný a prostorný byt 3+1 o užitné ploše 80 m² + 14 m² sklep. Byt se nachází ve 2. podlaží cihlového domu na prestižní adrese Hlavní třída v Mariánských Lázních.

Skvělá investiční příležitost – byt je dlouhodobě pronajat, měsíční platba činí 18.342 Kč + služby.

Byt představuje ideální možnost pro investory hledající stabilní a spolehlivý výnos, bez starostí s hledáním nájemníka či administrativou. Vynikající poměr investice vs. příjem. Perfektní příležitost pro ty, kdo chtějí bezpečně investovat do nemovitosti s okamžitým výnosem.

K bytu náleží také prostorný sklep o velikosti 14,7 m², který poskytuje dostatek úložného prostoru.

Byt prošel kompletní a velmi pečlivou rekonstrukcí, při které byly vyměněny veškeré rozvody elektřiny, vody, plynu i odpadů. Součástí rekonstrukce je moderní koupelna s oddělenou toaletou, kuchyňská linka na míru vybavená vestavěnými spotřebiči (trouba, varná deska, myčka, lednice), bezpečnostní vchodové dveře, renovované dřevěné podlahy a nová dlažba. Vše bylo provedeno s důrazem na kvalitu a komfort bydlení.

Dispozice bytu nabízí praktické a pohodlné řešení – prostorný obývací pokoj, samostatnou kuchyň se spíží, útulnou ložnici a moderní koupelnu. Díky vysokým stropům a velkým oknům jsou všechny místnosti světlé, vzdušné a působí velmi příjemně.

Lokalita Hlavní třídy v Mariánských Lázních poskytuje veškerou občanskou vybavenost – v docházkové vzdálenosti najdete obchody, restaurace, kavárny, školy, školky i zdravotnická zařízení. Skvělá dopravní dostupnost MHD, autobusů i dobré napojení na dálniční síť zajišťují snadné spojení nejen v rámci města, ale i do okolí.

Parametry bytu

Cena
4 499 000 Kč /za nemovitost Spočítat hypotéku
Aktualizováno
9. 12. 2025
Adresa
Hlavní třída, Mariánské Lázně
ID
N424
Stavba
Cihlová
Stav objektu
Velmi dobrý
Patro
2. z 4
Vybaveno
Částečně
Typ objektu
Patrový
Vlastnictví
Osobní
Užitná plocha
89 m2
Podlahová plocha
104 m2
Třída energetické náročnosti
G - Mimořádně nehospodárná
Sklep
Výtah

Kontaktovat makléře

Máte zájem o tento byt?

Tímto, v souladu s nařízením Evropského parlamentu a Rady (EU) 2016/679, v platném znění, prohlašuji, že mi je alespoň 16 let a uděluji tak svůj souhlas se zpracováním zadaných údajů (jméno, telefon, e-mail, ip adresa) společnosti B3 Technology, s.r.o., IČ: 07330600, se sídlem Novostavby 126/23, 435 11 Lom (správce dat), za účelem předání dotazu z tohoto formuláře Vámi vybranému inzerentovi a zpětného kontaktování mé osoby. Osobní údaje bude správce zpracovávat manuálně i automaticky přímo prostřednictvím svých zaměstnanců. Informace předané tímto formulářem budou uloženy v databázi správce maximálně po dobu 10 let. Odvolání souhlasu s uložením a zpracováním poskytnutých dat lze e-mailem na info@vitio.cz. V případě podezření na neoprávněné použití Vámi poskytnutých údajů máte právo předat podnět k šetření Úřadu pro ochranu osobních údajů. Více informací
Chystáte se prodat nemovitost?
Pomůžeme Vám!

Inzerát si prohlédlo 10 lidí

Prodejce

Call Centrum CAPITAL Trust, a.s .

Call Centrum CAPITAL Trust, a.s .

Hlídací pes

Chcete dostávat emailem podobné nabídky prodeje bytů 3+1 v Mariánských Lázních?

Podobné nemovitosti