Prodej činžovního domu, Opava, Krnovská, 555 m2

Krnovská, Opava (nečleněná část města)

10 500 000 Kč /za nemovitost HYPOTÉKA od 46 929 Kč /za měsíc

(Včetně provize, včetně právního servisu)

Exkluzivní partneři v Opavě

Informace k nemovitosti

Nabízíme ke koupi kompletně připravený developerský projekt se stavebním povolením - Rezidence Krnovská 9, Opava. Jedná se o demolici stávajícího objektu a následnou výstavbu nového moderního pětipodlažního bytového domu s devíti bytovými jednotkami, situovaný v atraktivní lokalitě v Opavě, na ulici Krnovská kousek od nákupního centra OC Breda & Weinstein.
Projektová dokumentace je detailně zpracovaná studiem ARCHE’S a obsahuje všechny části nutné pro realizaci stavby. Projekt je připraven k okamžitému zahájení výstavby.
Základní informace o projektu:
– Adresa: Krnovská 12/9, Opava - Předměstí
– Parcelní číslo: st. 199/1
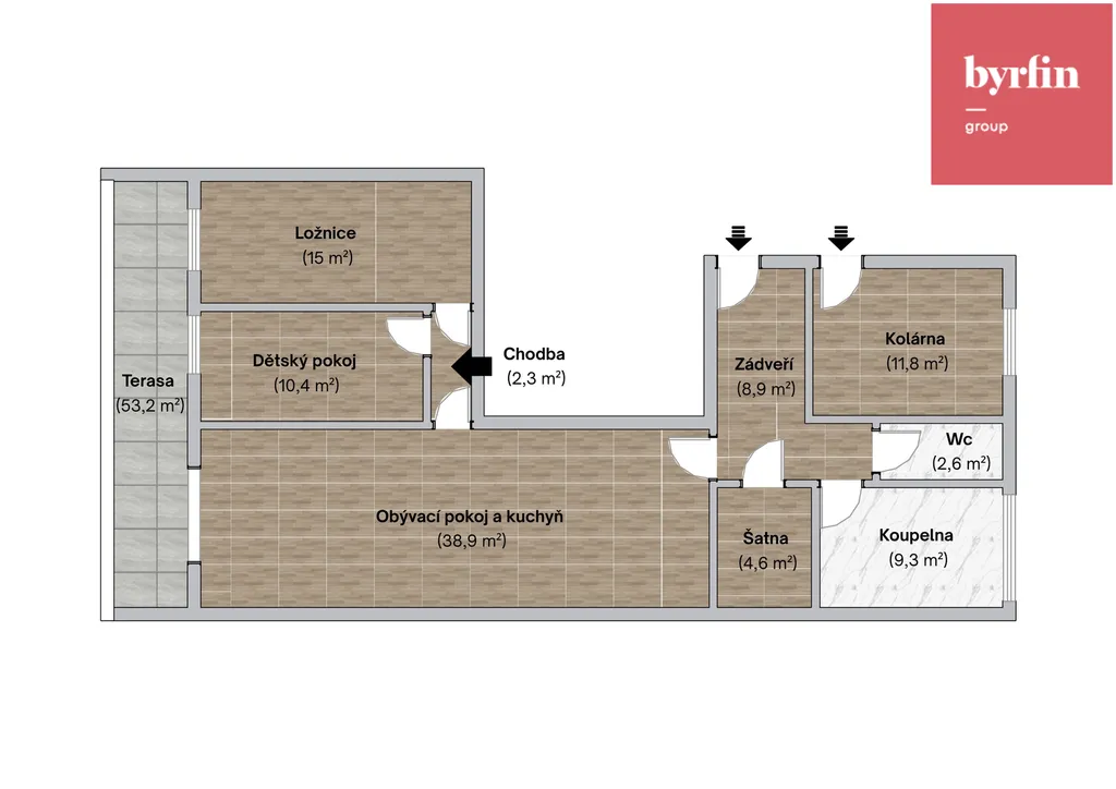
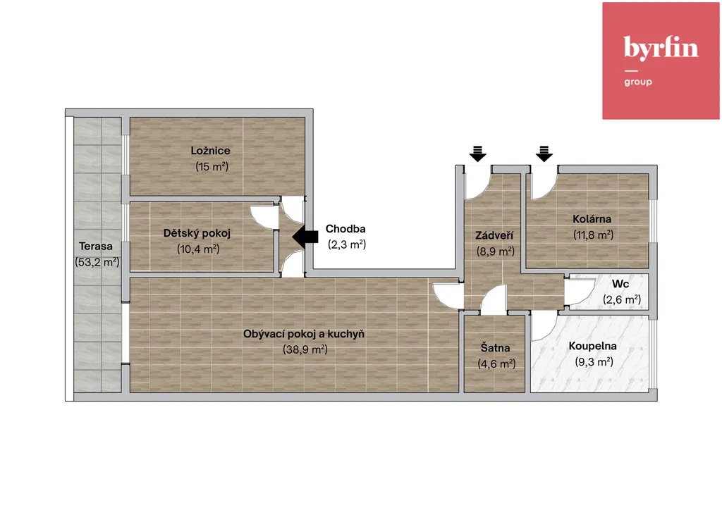
– Celkový počet bytů: 9
– Dispozice: 8× byt 3+kk, 1× byt 2+kk
– Celková plocha bytů: 555 m²
– Podlaží: 1.PP + 1.NP + 2.-5.NP
– Zastavěná plocha objektu: 180 m²
– Výmera pozemku: 229 m²
– Parkovací místa: 9 (z toho 1 místo ZTP)
– Objekt není památkově chráněn
– Projekt je v souladu s územním plánem (zóna UA - smíšené obytné)
Technické zázemí domu:
V 1. podzemním podlaží se nachází technická místnost a sklepní koje určené pro jednotlivé byty. V přízemí je k dispozici kolárna pro bezpečné uložení kol a kočárků.
Dispozice a struktura bytů:
1. NP: Jeden prostorný byt 3+kk o velikosti 96 m² se soukromou zahradou 49 m² a vlastní terasou.
2.-4. NP: Každé patro obsahuje dva byty 3+kk, každý o velikosti 59 m². Byty jsou doplněny balkonem o velikosti 14-16 m².
5. NP: Jeden byt 2+kk o velikosti 46 m² s balkonem 16 m² a jeden byt 3+kk o velikosti 59 m² s balkonem 14 m².
Architektonické řešení:
Projekt počítá s demolicí stávajícího objektu a následnou výstavbou nového moderního pětipodlažního bytového domu. Návrh zahrnuje současnou architekturu se skleněnými fasádními prvky orientovanými do ulice Krnovská, které dodají budově čistý a reprezentativní vzhled. Na straně do vnitrobloku jsou navrženy balkony a v 1. NP také soukromá zahrada zajišťující klidné rezidenční prostředí. Nový objekt je navržen tak, aby citlivě doplnil okolní zástavbu a přinesl do lokality kvalitní moderní bydlení.
Lokalita:
Projekt se nachází v zastavěné části města Opavy, v docházkové vzdálenosti od centra. Lokalita nabízí kompletní občanskou vybavenost, přímé napojení na MHD, obchody, služby, školy a dobré dopravní spojení díky blízkosti městského obchvatu. Pozemek je plně napojen na veškeré inženýrské sítě.
Pro koho je projekt vhodný:
Projekt je ideální pro developera, investora nebo stavební společnost, která hledá plně připravený záměr se stavebním povolením. Díky dispozičnímu řešení, balkonům, zahradě a lokalitě je projekt vhodný jak pro následný prodej bytů, tak i pro dlouhodobý nájemní model.
V případě zájmu o detailní dokumentaci, osobní schůzku nebo další informace mě neváhejte kontaktovat.
Více fotografií - 3D půdorysy bytů se připravují.
S vyřízením financování tohoto projektu vám rádi pomůžeme.

Parametry nemovitosti

Cena
10 500 000 Kč /za nemovitost Spočítat hypotéku
Poznámka k ceně
Včetně provize, včetně právního servisu
Aktualizováno
28. 11. 2025
Adresa
Krnovská, Opava (nečleněná část města)
ID
1622
Stavba
Cihlová
Stav objektu
Projekt
Typ objektu
Patrový
Lokalita objektu
Centrum obce
Užitná plocha
555 m2
Zastavěná plocha
180 m2
Podlahová plocha
229 m2
Třída energetické náročnosti
G - Mimořádně nehospodárná
Elektřina
230V
Plyn
Plynovod
Odpad
Veřejná kanalizace
Komunikace
Asfaltová
Voda
Vodovod
Převod do OV
Parkování

Kontaktovat makléře

Máte zájem o tuto nemovistost?

Tímto, v souladu s nařízením Evropského parlamentu a Rady (EU) 2016/679, v platném znění, prohlašuji, že mi je alespoň 16 let a uděluji tak svůj souhlas se zpracováním zadaných údajů (jméno, telefon, e-mail, ip adresa) společnosti B3 Technology, s.r.o., IČ: 07330600, se sídlem Novostavby 126/23, 435 11 Lom (správce dat), za účelem předání dotazu z tohoto formuláře Vámi vybranému inzerentovi a zpětného kontaktování mé osoby. Osobní údaje bude správce zpracovávat manuálně i automaticky přímo prostřednictvím svých zaměstnanců. Informace předané tímto formulářem budou uloženy v databázi správce maximálně po dobu 10 let. Odvolání souhlasu s uložením a zpracováním poskytnutých dat lze e-mailem na info@vitio.cz. V případě podezření na neoprávněné použití Vámi poskytnutých údajů máte právo předat podnět k šetření Úřadu pro ochranu osobních údajů. Více informací
Chystáte se prodat nemovitost?
Pomůžeme Vám!

Inzerát si prohlédlo 1 lidí

Prodejce

Josef Květon

Josef Květon

Hlídací pes

Chcete dostávat emailem podobné nabídky prodeje činžovních domů v Opavě?

Top nabídky

Podobné nemovitosti