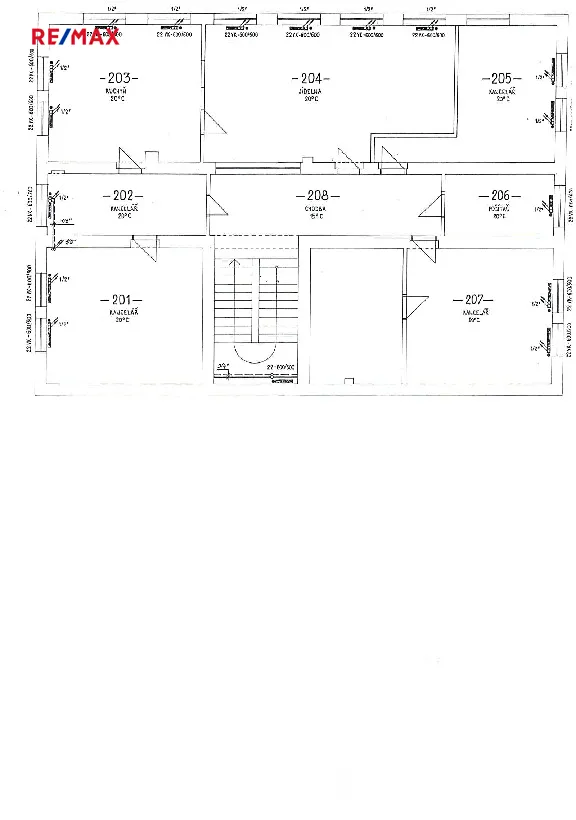
Pronájem kanceláře, Pardubice, Husova, 242 m2

Husova, Pardubice, Bílé Předměstí

30 000 Kč /za měsíc Získejte výhodnou HYPOTÉKU
Exkluzivní partneři v Pardubicích

Informace k nemovitosti

Nabízíme Vám ve výhradním zastoupení k pronájmu část kancelářských prostor v objektu společnosti BestDrive (bývalý Barum), v Pardubicích, Husova ul., č.p. 1723. Pro tento prostor hledáme dlouhodobého nájemce.

Jedná se o objekt (podlahová plocha samotného prostoru 242 m2), přináležející ke stávajícímu pneuservisu. V prostoru před budovou se nachází autonomní, velkorysý prostor parkoviště, který bude sloužit vašim potřebám k podnikání.

Vytápění je zajištěno dálkově, z EOP.

Podmínky nájmu a měsíční náklady:
- nájemné: 30.000,- Kč
- zálohy na služby, vodu a vytápění: dle dohody
- vratná kauce: 3 x měsíční nájem
- provize RK ve výši měsíčního nájmu

Pro bližší informace či prohlídku prostor nás kontaktujte.

Parametry nemovitosti

Cena
30 000 Kč /za měsíc
Aktualizováno
28. 11. 2025
Adresa
Husova, Pardubice, Bílé Předměstí
ID
0297-NP00265
Stavba
Cihlová
Stav objektu
Dobrý
Lokalita objektu
Okraj obce
Užitná plocha
242 m2
Zastavěná plocha
200 m2
Podlahová plocha
242 m2
Třída energetické náročnosti
G - Mimořádně nehospodárná
Elektřina
230V, 400V
Plyn
Plynovod
Odpad
Veřejná kanalizace
Komunikace
Asfaltová
Telekomunikace
Internet
Doprava
Dálnice, Silnice, MHD, Autobus
Voda
Vodovod
Topné těleso
Radiátory
Zdroj topení
Centrální dálkové

Kontaktovat makléře

Realitní kancelář

RE/MAX Vox

Jana Palacha 324, Pardubice

Chystáte se prodat nemovitost?
Pomůžeme Vám!

Máte zájem o tuto nemovistost?

Tímto, v souladu s nařízením Evropského parlamentu a Rady (EU) 2016/679, v platném znění, prohlašuji, že mi je alespoň 16 let a uděluji tak svůj souhlas se zpracováním zadaných údajů (jméno, telefon, e-mail, ip adresa) společnosti B3 Technology, s.r.o., IČ: 07330600, se sídlem Novostavby 126/23, 435 11 Lom (správce dat), za účelem předání dotazu z tohoto formuláře Vámi vybranému inzerentovi a zpětného kontaktování mé osoby. Osobní údaje bude správce zpracovávat manuálně i automaticky přímo prostřednictvím svých zaměstnanců. Informace předané tímto formulářem budou uloženy v databázi správce maximálně po dobu 10 let. Odvolání souhlasu s uložením a zpracováním poskytnutých dat lze e-mailem na info@vitio.cz. V případě podezření na neoprávněné použití Vámi poskytnutých údajů máte právo předat podnět k šetření Úřadu pro ochranu osobních údajů. Více informací
Chystáte se prodat nemovitost?
Pomůžeme Vám!

Inzerát si prohlédlo 12 lidí

Prodejce

Ing. Jiří Hác

Ing. Jiří Hác

Hlídací pes

Chcete dostávat emailem podobné nabídky pronájmu kanceláří v Pardubicích?

Podobné nemovitosti