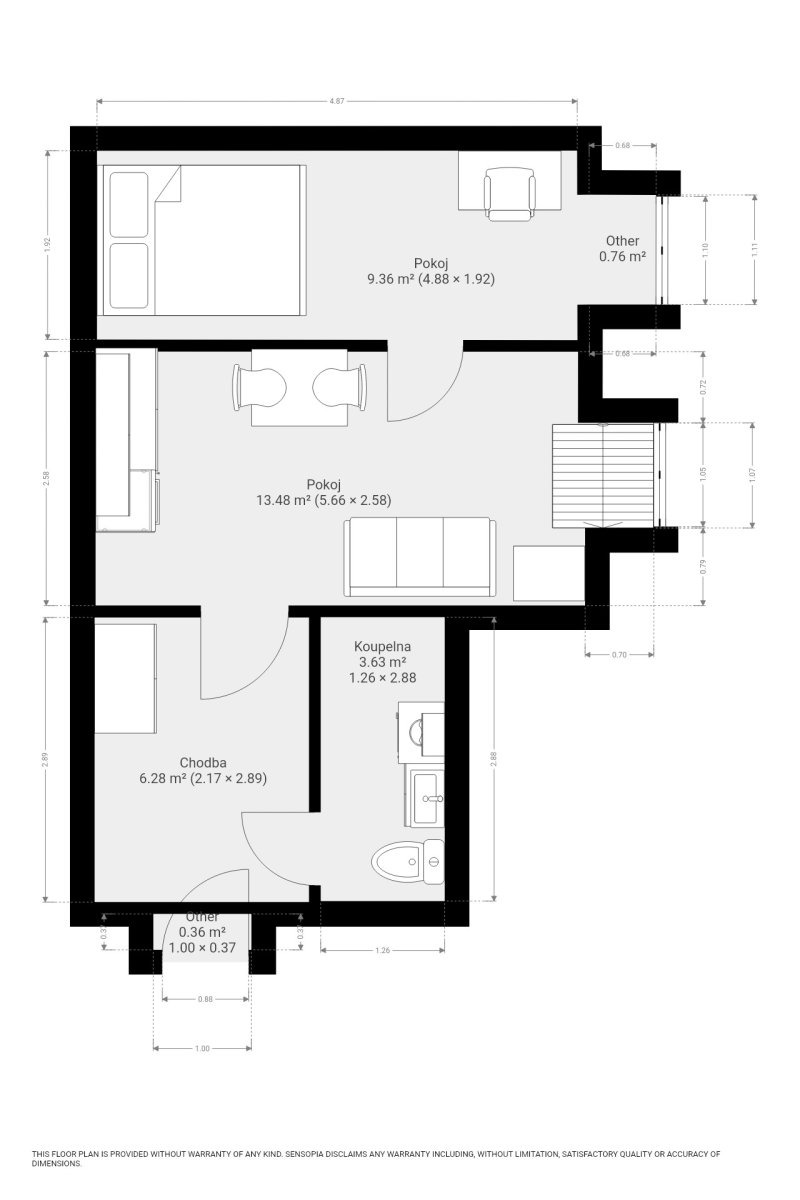
Prodej bytu 2+kk, Brno - Veveří, Čápkova, 33 m2

Čápkova, Veveří - Brno-střed

4 450 000 Kč /za nemovitost HYPOTÉKA od 19 889 Kč /za měsíc
Exkluzivní partneři v Brně

Informace k bytu

Nabízíme k prodeji útulný byt o dispozici 2+kk a celkové podlahové ploše 33 m², který se nachází v oblíbené a výborně dostupné části Brna, na ulici Čápkova. Byt je umístěn v nižším podlaží cihlového domu a disponuje přímým vstupem na zadní dvorek. Dvorek je společnou částí domu.

Byt prošel po roce 2020 rekonstrukcí a nachází se ve standardním technickém stavu. Je však důležité upozornit na zvýšenou vlhkost a vyšší riziko vzniku plísně (plíseň se již v jednotce objevila). Je tedy potřeba počítat s investicí do technických úprav, případné sanace a zlepšení odvětrání. Vlhkost souvisí také se staršími stoupačkami a technickým stavem pláště domu.

Společenství vlastníků již schválilo soubor oprav, který zahrnuje rekonstrukci kanalizace, sklepů, dvorní části (zajištění izolace a odstranění průniku vody k základům domu) a výměnu oken a dveří ve společných prostorách. Tyto práce by měly významně přispět ke snížení vlhkosti v dotčených stěnách bytu.

Měsíční náklady na bydlení:

zálohy na energie a služby SVJ: 1 380 Kč
elektřina: 880 Kč
plyn: 1 450 Kč
Celkové měsíční provozní náklady tak činí 3 710 Kč.

Byt je volný a připravený k okamžitému nastěhování. Je vhodný jak pro vlastní bydlení, tak jako investiční příležitost s možností úprav podle preferencí nového majitele. V okolí se nachází restaurace, kavárny, park, supermarket, lékárna a několik univerzit. Tramvajová zastávka Konečného náměstí je vzdálena přibližně dvě minuty chůze a nabízí výborné spojení do všech částí města.

V případě zájmu mě neváhejte kontaktovat a domluvit si prohlídku. Rád vám byt osobně ukážu.

Parametry bytu

Cena
4 450 000 Kč /za nemovitost Spočítat hypotéku
Aktualizováno
10. 12. 2025
Adresa
Čápkova, Veveří - Brno-střed
ID
N6991
Stavba
Cihlová
Stav objektu
Dobrý
Vybaveno
Ano
Typ objektu
Patrový
Vlastnictví
Osobní
Užitná plocha
33 m2
Podlahová plocha
33 m2
Třída energetické náročnosti
D - Méně úsporná
Elektřina
230V
Výtah

Kontaktovat makléře

Realitní kancelář

Logo Ideální nájemce

Ideální nájemce

Milady Horákové 1957/13, Brno

Chystáte se prodat nemovitost?
Pomůžeme Vám!

Máte zájem o tento byt?

Tímto, v souladu s nařízením Evropského parlamentu a Rady (EU) 2016/679, v platném znění, prohlašuji, že mi je alespoň 16 let a uděluji tak svůj souhlas se zpracováním zadaných údajů (jméno, telefon, e-mail, ip adresa) společnosti B3 Technology, s.r.o., IČ: 07330600, se sídlem Novostavby 126/23, 435 11 Lom (správce dat), za účelem předání dotazu z tohoto formuláře Vámi vybranému inzerentovi a zpětného kontaktování mé osoby. Osobní údaje bude správce zpracovávat manuálně i automaticky přímo prostřednictvím svých zaměstnanců. Informace předané tímto formulářem budou uloženy v databázi správce maximálně po dobu 10 let. Odvolání souhlasu s uložením a zpracováním poskytnutých dat lze e-mailem na info@vitio.cz. V případě podezření na neoprávněné použití Vámi poskytnutých údajů máte právo předat podnět k šetření Úřadu pro ochranu osobních údajů. Více informací
Chystáte se prodat nemovitost?
Pomůžeme Vám!

Inzerát si prohlédlo 15 lidí

Prodejce

Jakub Ševčík

Jakub Ševčík

Hlídací pes

Chcete dostávat emailem podobné nabídky prodeje bytů 2+kk v Brně?

Podobné nemovitosti