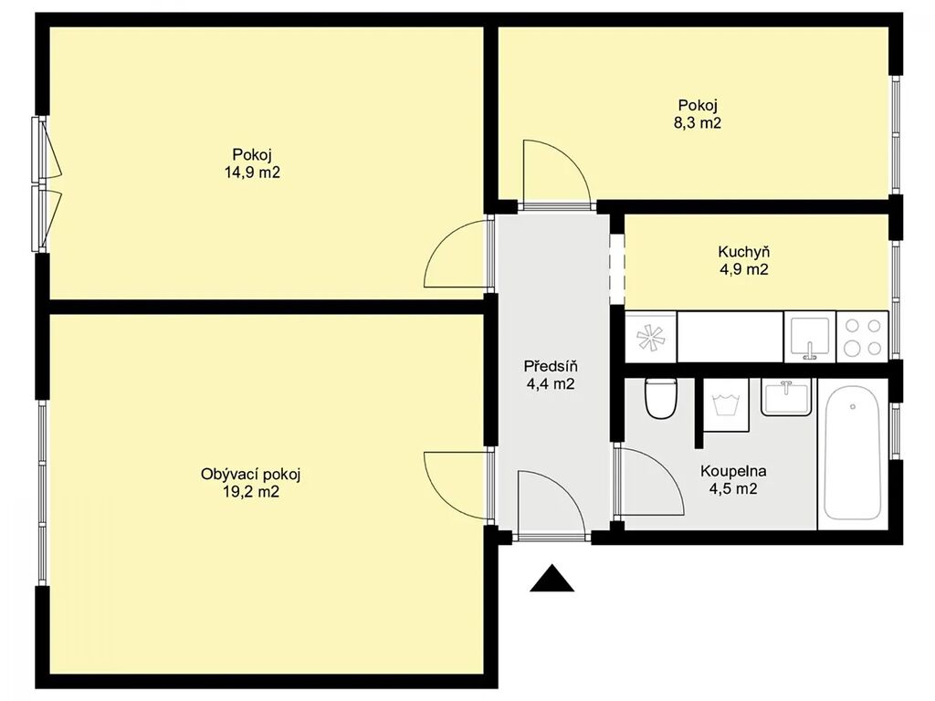
Prodej bytu 3+1, Kolín, Na Magistrále, 57 m2

Na Magistrále, Kolín II

5 750 000 Kč /za nemovitost HYPOTÉKA od 25 699 Kč /za měsíc
Exkluzivní partneři v Kolíně

Informace k bytu

Nabízím ke koupi velmi příjemný a komplexně zrekonstruovaný byt 3+1 o výměře 57 m2, umístěný ve 4. nadzemním podlaží zděného domu v jedné z nejoblíbenějších částí Kolína u kolínské vodárny.

Byt prošel před zhruba deseti lety celkovou rekonstrukcí, která zahrnovala nové rozvody elektřiny, vody i odpadů. Zároveň byly tam, kde to bylo možné, ponechány původní dubové parkety, které dodávají prostoru osobitý charakter a příjemné teplo domova. Moderní kuchyňská linka, dveře i podlahy jsou sladěny do jednotného stylu, a interiér tak působí čistě, útulně a připraveně k okamžitému užívání bez dalších investic.

Samotný dům je zděný a prošel rozsáhlou rekonstrukcí pláště, díky čemuž dosahuje energetické náročnosti PENB C. Součástí nabídky je také zděný sklep, který poskytuje praktické úložiště pro sportovní vybavení, kočárek či sezonní věci.

Lokalita je ideální především pro rodiny s dětmi v dosahu je známá kolínská vodárna s volnočasovými možnostmi, oblíbená via ferrata u rybníka Peklo, příroda pro procházky a sport, a zároveň kompletní občanská vybavenost včetně obchodů a služeb. Jedná se o místo, kde máte město na dosah, ale zároveň dostatek klidu pro pohodový rodinný život.

Byt bude k nastěhování od 1. května 2026. Část vybavení může v bytě po vzájemné dohodě zůstat.

Pro zájemce rádi zajistíme výhodné financování i pomoc při prodeji stávající nemovitosti.

K inzerci je rovněž přiložena virtuální prohlídka, díky které se mohou zájemci pohodlně projít bytem ještě před osobní návštěvou.

Parametry bytu

Cena
5 750 000 Kč /za nemovitost Spočítat hypotéku
Aktualizováno
27. 11. 2025
Adresa
Na Magistrále, Kolín II
ID
973
Stavba
Cihlová
Stav objektu
Po rekonstrukci
Patro
4. z 4
Vybaveno
Částečně
Vlastnictví
Osobní
Užitná plocha
57 m2
Podlahová plocha
62 m2
Třída energetické náročnosti
C - Úsporná
Elektřina
230V
Plyn
Individuální
Topení
Ústřední dálkové
Komunikace
Asfaltová
Doprava
Vlak, Silnice, MHD, Autobus
Voda
Vodovod
Topné těleso
Radiátory
Zdroj teplé vody
Plynová karma
Sklep
Bezbarierový přístup

Kontaktovat makléře

Máte zájem o tento byt?

Tímto, v souladu s nařízením Evropského parlamentu a Rady (EU) 2016/679, v platném znění, prohlašuji, že mi je alespoň 16 let a uděluji tak svůj souhlas se zpracováním zadaných údajů (jméno, telefon, e-mail, ip adresa) společnosti B3 Technology, s.r.o., IČ: 07330600, se sídlem Novostavby 126/23, 435 11 Lom (správce dat), za účelem předání dotazu z tohoto formuláře Vámi vybranému inzerentovi a zpětného kontaktování mé osoby. Osobní údaje bude správce zpracovávat manuálně i automaticky přímo prostřednictvím svých zaměstnanců. Informace předané tímto formulářem budou uloženy v databázi správce maximálně po dobu 10 let. Odvolání souhlasu s uložením a zpracováním poskytnutých dat lze e-mailem na info@vitio.cz. V případě podezření na neoprávněné použití Vámi poskytnutých údajů máte právo předat podnět k šetření Úřadu pro ochranu osobních údajů. Více informací
Chystáte se prodat nemovitost?
Pomůžeme Vám!

Inzerát si prohlédlo 9 lidí

Prodejce

Aleš Huml

Aleš Huml

Hlídací pes

Chcete dostávat emailem podobné nabídky prodeje bytů 3+1 v Kolíně?

Podobné nemovitosti