Prodej pozemku pro bydlení, Mimoň, Vranovská, 1171 m2

Vranovská, Mimoň

3 372 480 Kč /za nemovitost HYPOTÉKA od 15 073 Kč /za měsíc

(Cena za stavební pozemek s napojením na sítě (vodovod, kanalizace, data). Nová přístupová komunikace)

Exkluzivní partneři v Mimoni

Rekonstrukce

Úklidové služby

Informace k pozemku

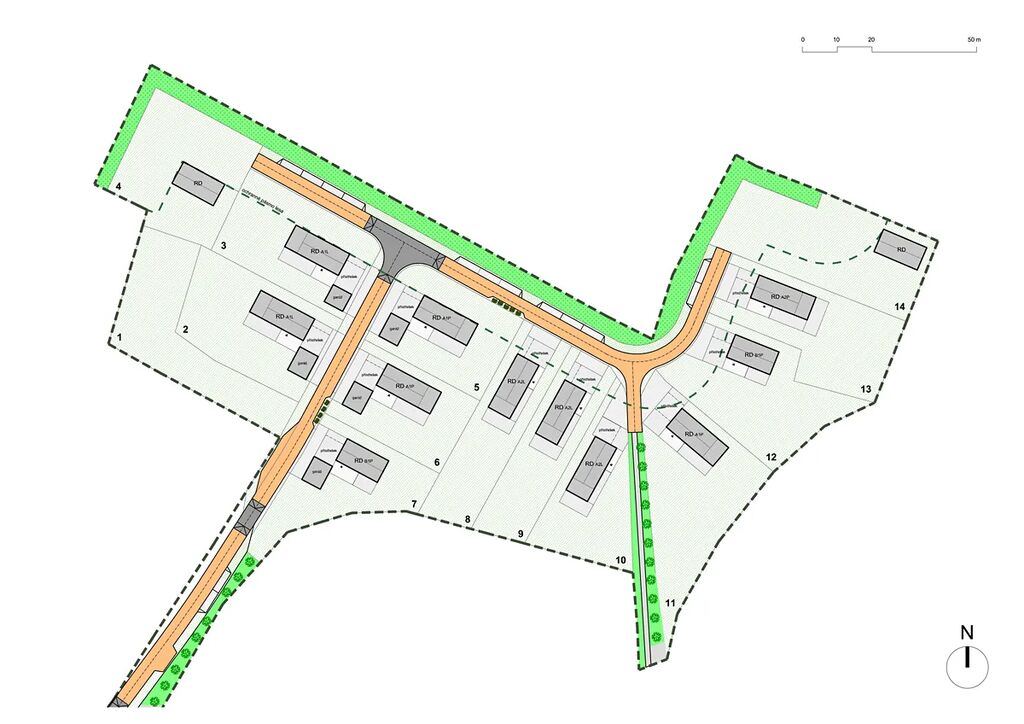
V rámci malého soukromého developerského projektu nabízíme celkem 12 plně zasíťovaných stavebních pozemků k prodeji na SV okraji obce Mimoň. V uzavřené lokalitě v bezprostřední blízkosti lesa budete mít naprosté soukromí.

Pozemek č. 4 o rozloze 1171 m2 čtvercového tvaru nabízí prostor pro stavbu rodinného domu s velikou zahradou a vlastním kusem lesa. Na pozemku se nachází vzrostlé stromy a je opatřen vysypaným nájezdem z obslužné komunikace, ve kterém se nachází koncové šachty vodovodu a kanalizace. Díky jeho umístění na okraji obce máte jistotu klidu a pohody, ovšem stále s výbornou dostupností silniční a městské hromadné dopravy a v dochozí vzdálenosti do centra města.

Pozemek je napojen na kanalizaci, třífázovou elektrickou síť s jističem 50A a v celé lokalitě je vybudovaná komplet nová příjezdová komunikace. Internetové připojení zajišťuje poskytovatel CETIN (původně NEJ CZ), což je ideální pro každého, kdo pracuje z domova nebo vyžaduje stabilní a rychlé internetové připojení. Po dohodě s ním se lze připojit optickým kabelem.

Pro více informací o ceně a umístění pozemku navštivte naše webové stránky. Pro sjednání prohlídky nás prosím kontaktujte mailem nebo telefonicky. Jednání přímo s developerem (investorem) bez realitního zprostředkovatele. Ing. A. Posselt

Parametry pozemku

Cena
3 372 480 Kč /za nemovitost Spočítat hypotéku
Poznámka k ceně
Cena za stavební pozemek s napojením na sítě (vodovod, kanalizace, data). Nová přístupová komunikace
Aktualizováno
26. 11. 2025
Adresa
Vranovská, Mimoň
Lokalita objektu
Okraj obce
Plocha pozemku
1171 m2
Elektřina
230V
Odpad
Veřejná kanalizace
Komunikace
Asfaltová
Telekomunikace
Internet
Doprava
Vlak, Silnice, MHD
Voda
Vodovod

Kontaktovat makléře

Máte zájem o tento pozemek?

Tímto, v souladu s nařízením Evropského parlamentu a Rady (EU) 2016/679, v platném znění, prohlašuji, že mi je alespoň 16 let a uděluji tak svůj souhlas se zpracováním zadaných údajů (jméno, telefon, e-mail, ip adresa) společnosti B3 Technology, s.r.o., IČ: 07330600, se sídlem Novostavby 126/23, 435 11 Lom (správce dat), za účelem předání dotazu z tohoto formuláře Vámi vybranému inzerentovi a zpětného kontaktování mé osoby. Osobní údaje bude správce zpracovávat manuálně i automaticky přímo prostřednictvím svých zaměstnanců. Informace předané tímto formulářem budou uloženy v databázi správce maximálně po dobu 10 let. Odvolání souhlasu s uložením a zpracováním poskytnutých dat lze e-mailem na info@vitio.cz. V případě podezření na neoprávněné použití Vámi poskytnutých údajů máte právo předat podnět k šetření Úřadu pro ochranu osobních údajů. Více informací
Chystáte se prodat nemovitost?
Pomůžeme Vám!

Inzerát si prohlédlo 18 lidí

Prodejce

Ing. Aleš Posselt

Ing. Aleš Posselt

Hlídací pes

Chcete dostávat emailem podobné nabídky prodeje pozemků pro bydlení v Mimoni?

Podobné nemovitosti