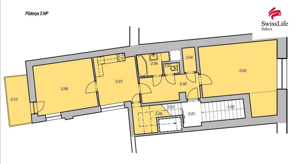
Prodej bytu 2+1, Jimramov, náměstí Jana Karafiáta, 74 m2

náměstí Jana Karafiáta, Jimramov

4 490 000 Kč /za nemovitost HYPOTÉKA od 20 068 Kč /za měsíc
Exkluzivní partneři v Jimramově

Informace k bytu

Nabízím k prodeji krásný, čistý byt o dispozici 2+1 a o užitné ploše přibližně 74 m, který právě prošel zdařilou rekonstrukcí/výstavbou. Nachází se v menším domě se třemi nově vytvořenými bytovými jednotkami na klidné ulici Jana Karafiáta v srdci Jimramova.

Interiér působí velmi moderně a útulně nová kuchyňská linka, el. vyhřívané podlahy, dveře, rozvody, koupelna i veškeré povrchy. Dispozice 2+1 poskytuje dostatek prostoru pro pohodlné bydlení jednotlivce, páry či menší rodiny. Tento byt má vlastní balkón cca 6 m.

Dům stojí v klidné části obce s výbornou dostupností do centra i přírody. Parkování pohodlně před domem nebo přes ulici.

S bytem se prodává podíl na zahradě za domem, která má rozlohu 378 m. Součástí domu je také menší stavení využitelné jako skladovací prostory pro jednotlivé byty.

Jimramov nabízí vše potřebné pro pohodlný život:
základní a mateřskou školu
obchody s potravinami
poštu, lékárnu a zdravotní středisko
restaurace a kavárny
krásné historické centrum, řeku a mnoho možností pro volnočasové aktivity

Pro více informací či domluvení prohlídky mě neváhejte kontaktovat.

Parametry bytu

Cena
4 490 000 Kč /za nemovitost Spočítat hypotéku
Aktualizováno
24. 11. 2025
Adresa
náměstí Jana Karafiáta, Jimramov
ID
24796
Stavba
Smíšená
Stav objektu
Dobrý
Patro
2. z 3
Typ objektu
Patrový
Vlastnictví
Osobní
Užitná plocha
74 m2
Podlahová plocha
74 m2
Třída energetické náročnosti
G - Mimořádně nehospodárná
Topení
Lokální elektrické
Voda
Vodovod
Balkon
Sklep
Bezbarierový přístup
Parkování

Kontaktovat makléře

Máte zájem o tento byt?

Tímto, v souladu s nařízením Evropského parlamentu a Rady (EU) 2016/679, v platném znění, prohlašuji, že mi je alespoň 16 let a uděluji tak svůj souhlas se zpracováním zadaných údajů (jméno, telefon, e-mail, ip adresa) společnosti B3 Technology, s.r.o., IČ: 07330600, se sídlem Novostavby 126/23, 435 11 Lom (správce dat), za účelem předání dotazu z tohoto formuláře Vámi vybranému inzerentovi a zpětného kontaktování mé osoby. Osobní údaje bude správce zpracovávat manuálně i automaticky přímo prostřednictvím svých zaměstnanců. Informace předané tímto formulářem budou uloženy v databázi správce maximálně po dobu 10 let. Odvolání souhlasu s uložením a zpracováním poskytnutých dat lze e-mailem na info@vitio.cz. V případě podezření na neoprávněné použití Vámi poskytnutých údajů máte právo předat podnět k šetření Úřadu pro ochranu osobních údajů. Více informací
Chystáte se prodat nemovitost?
Pomůžeme Vám!

Inzerát si prohlédlo 1 lidí

Prodejce

Bc. Jiří Máca

Bc. Jiří Máca

Hlídací pes

Chcete dostávat emailem podobné nabídky prodeje bytů 2+1 v Jimramově?

Podobné nemovitosti