Pronájem komerční nemovitosti, Vamberk, Vilímkova, 399 m2 (ID: 2518052)

Vilímkova, Vamberk

Cena na vyžádání /za měsíc Získejte výhodnou HYPOTÉKU
Exkluzivní partneři v Vamberku

Informace k nemovitosti

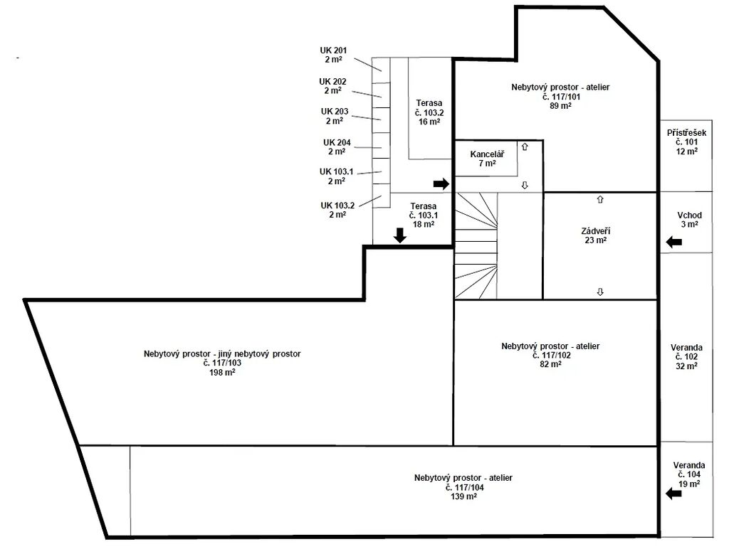
Dlouhodobý pronájem nebytových prostor v objektu bývalého restauračního zařízení ve Vamberku, v ulici Vilímkova, v centrální části města, v blízkosti náměstí u hlavní příjezdové komunikace do centra města. Nabízené prostory se nacházejí v I. nadzemním podlaží budovy, které dříve sloužily jako bar, restaurace a bowlingová dráha, v současné době bez využití ( fotografie interieru v inzerci jsou z doby původního využití, v současné době vyklizené bez vybavení ). Prostory lze po dohodě upravit pro konkrétní účel využití, lze pronajmout téměř celé podlaží nebo jen jeho část, zároveň lze předjednat budoucí prodej nebytových prostor případnému nájemci, prostory jsou v katastru nemovitostí vymezeny jako samostatné nebytové jednotky. Jedná se o prostor bývalého baru, přístupného z ulice, o ploše cca 100 m2 včetně zádveří, prostory bývalé bowlingové dráhy o užitné ploše cca 139 m2, která lze zpřístupnit z vnějšku i pro vysokozdvižný vozík a podobně, případně propojit s ostatními prostory, a o prostory bývalé restaurace o ploše cca 160 m2 včetně sociálního zařízení a zázemí, s přístupem přes zastřešený dvůr. Nebytové prostory nabízejí širokou možnost využitím, např. pro drobnou výrobu, jako skladové prostory, obchodní prostory, minipivovar, gastro služby a podobně, lze využít i sklepní klenbové prostory, případně lze využít ubytovací kapacity v horních podlažích objektu např. pro zaměstnance a podobně. Prostory lze vytápět ústředním topením, lze využít zdroj elektrické energie ze střešní FVE na objektu. Nájemné a další podmínky jsou předmětem dohody s vlastníkem objektu v závislosti na rozsahu a využití pronajatých prostor, pronajímatel má zájem o dlouhodobou spolupráci.

Parametry nemovitosti

Cena
Cena na vyžádání
Aktualizováno
2. 3. 2026
Adresa
Vilímkova, Vamberk
Stavba
Cihlová
Stav objektu
Dobrý
Patro
1. z 3
Lokalita objektu
Centrum obce
Užitná plocha
399 m2
Třída energetické náročnosti
G - Mimořádně nehospodárná
Elektřina
230V, 400V
Topení
Ústřední tuhá paliva
Voda
Vodovod
Zdroj topení
Kotel na tuhá paliva
Výtah
Bezbarierový přístup
Parkování

Kontaktovat makléře

Máte zájem o tuto nemovistost?

Tímto, v souladu s nařízením Evropského parlamentu a Rady (EU) 2016/679, v platném znění, prohlašuji, že mi je alespoň 16 let a uděluji tak svůj souhlas se zpracováním zadaných údajů (jméno, telefon, e-mail, ip adresa) společnosti B3 Technology, s.r.o., IČ: 07330600, se sídlem Novostavby 126/23, 435 11 Lom (správce dat), za účelem předání dotazu z tohoto formuláře Vámi vybranému inzerentovi a zpětného kontaktování mé osoby. Osobní údaje bude správce zpracovávat manuálně i automaticky přímo prostřednictvím svých zaměstnanců. Informace předané tímto formulářem budou uloženy v databázi správce maximálně po dobu 10 let. Odvolání souhlasu s uložením a zpracováním poskytnutých dat lze e-mailem na info@vitio.cz. V případě podezření na neoprávněné použití Vámi poskytnutých údajů máte právo předat podnět k šetření Úřadu pro ochranu osobních údajů. Více informací
Chystáte se prodat nemovitost?
Pomůžeme Vám!

Inzerát si prohlédlo 18 lidí

Prodejce

Ing. Radek Nekvinda

Ing. Radek Nekvinda

Hlídací pes

Chcete dostávat emailem podobné nabídky pronájmu komerčních nemovitostí v Vamberku?

Podobné nemovitosti