Prodej bytu 2+1, Hradec Králové, Labská kotlina, 50 m2

Labská kotlina, Hradec Králové

4 499 000 Kč /za nemovitost HYPOTÉKA od 20 108 Kč /za měsíc
Exkluzivní partneři v Hradci Králové

Informace k bytu

Prodej bytu 2+1 s dvěma balkony, 50 m² – Labská kotlina, Hradec Králové

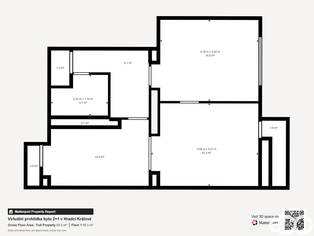
Nabízíme k prodeji byt o dispozici 2+1 a užitné ploše 50 m² v ulici Labská kotlina 1025/12, Hradec Králové. Byt se nachází ve 4. patře ze 4 v cihlovém domě bez výtahu. Dům je v udržovaném původním stavu.

Byt je v původním stavu a určený ke kompletní rekonstrukci podle vlastních představ. Velkou výhodou jsou dva balkony – jeden přístupný z kuchyně, druhý z obývacího pokoje. Součástí bytu je také komora. K bytu náleží sklepní kóje a v domě lze využívat společnou kolárnu/kočárkárnu. V domě je k dispozici optický internet.

Vytápění je ústřední dálkové (napojení na elektrárnu Opatovice). Ohřev vody zajišťuje plynová karma. Vaření je na plynu.

Byt je volný od 1. 1. 2026, případně ihned. Parkování je možné přímo před domem.

Lokalita nabízí kompletní občanskou vybavenost – školy, školky, lékárnu, potraviny, restaurace, sportovní vyžití i zeleň v okolí. Zastávka MHD se nachází v blízkosti domu. Vysoké školy jsou dobře dostupné, což činí byt vhodný i jako investici na pronájem.

Byt je vhodný pro začínající rodinu, pár, investora nebo jako bydlení pro studenty.

Pokud Vás tato nabídka oslovila a rádi byste si prohlédli tento atraktivní byt, neváhejte mě kontaktovat. S financováním Vám rád pomůže můj kolega Patrik Tóth, na kterého se můžete spolehnout.

Těším se na setkání při prohlídce!

Parametry bytu

Cena
4 499 000 Kč /za nemovitost Spočítat hypotéku
Aktualizováno
22. 11. 2025
Adresa
Labská kotlina, Hradec Králové
ID
420250453
Stavba
Cihlová
Stav objektu
Dobrý
Patro
4. z 4
Vybaveno
Ne
Lokalita objektu
Sídliště
Vlastnictví
Osobní
Užitná plocha
50 m2
Zastavěná plocha
660 m2
Třída energetické náročnosti
G - Mimořádně nehospodárná
Elektřina
230V
Plyn
Plynovod
Odpad
Veřejná kanalizace
Komunikace
Asfaltová
Telekomunikace
Internet, Kabelová televize
Doprava
Vlak, Dálnice, Silnice, MHD, Autobus
Voda
Vodovod

Kontaktovat makléře

Realitní kancelář

Logo eDO reality

eDO reality

Na Pankráci 322/26, Praha

Chystáte se prodat nemovitost?
Pomůžeme Vám!

Máte zájem o tento byt?

Tímto, v souladu s nařízením Evropského parlamentu a Rady (EU) 2016/679, v platném znění, prohlašuji, že mi je alespoň 16 let a uděluji tak svůj souhlas se zpracováním zadaných údajů (jméno, telefon, e-mail, ip adresa) společnosti B3 Technology, s.r.o., IČ: 07330600, se sídlem Novostavby 126/23, 435 11 Lom (správce dat), za účelem předání dotazu z tohoto formuláře Vámi vybranému inzerentovi a zpětného kontaktování mé osoby. Osobní údaje bude správce zpracovávat manuálně i automaticky přímo prostřednictvím svých zaměstnanců. Informace předané tímto formulářem budou uloženy v databázi správce maximálně po dobu 10 let. Odvolání souhlasu s uložením a zpracováním poskytnutých dat lze e-mailem na info@vitio.cz. V případě podezření na neoprávněné použití Vámi poskytnutých údajů máte právo předat podnět k šetření Úřadu pro ochranu osobních údajů. Více informací
Chystáte se prodat nemovitost?
Pomůžeme Vám!

Inzerát si prohlédlo 0 lidí

Prodejce

Bc. Jan Macek

Bc. Jan Macek

Hlídací pes

Chcete dostávat emailem podobné nabídky prodeje bytů 2+1 v Hradci Králové?

Podobné nemovitosti