Pronájem restaurace, Praha - Čakovice, Theinova, 187 m2

Theinova, Praha 9

48 600 Kč /za měsíc Získejte výhodnou HYPOTÉKU
Exkluzivní partneři v Praze 9

Stěhovací služby

Výkup a prodej starého nábytku

Informace k nemovitosti

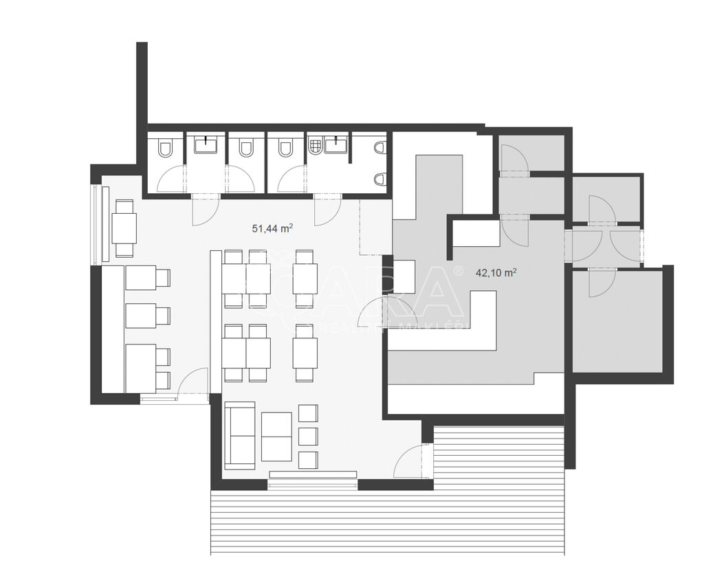
Restaurace v přízemí bytového domu v Čakovicích, pár kroků od čakovického zámku, parku a rybníka. Plně vybavený gastro provoz s vlastní předzahrádkou o ploše 69 m², která je v osobním vlastnictví a je součástí nájmu. Prostor je kolaudovaný jako restaurace s kuchyní a připravený k rychlému převzetí.

Hlavní prostor restaurace má 108,3 m², doplněný o dvojici skladů (5,6 a 4 m²). Vstup i interiér jsou bezbariérové, k dispozici je také místo pro parkování jízdních kol a garážové stání pro jedno auto.

Restaurace je kompletně vybavená – technologie, nábytek i zázemí. Provoz lze převzít v aktuální podobě, případně doplnit o pokladní systém, který je možné dodat. Instalovaný je také zabezpečovací systém Jablotron.

Prostory jsou ideální pro stabilní gastro provoz – denní menu, večerní restauraci, kavárnu nebo rodinný podnik. Lokalita je obytná, sousedství tiché a stabilně frekventované díky poblíž umístěnému zámku a parku.

Dispozice a plochy
* Hlavní provozní plocha: 108,3 m²
* Sklad 1: 5,6 m²
* Sklad 2: 4 m²
* Předzahrádka: 69 m²
* Garážové stání pro 1 auto

Finanční podmínky
* Nájemné: 48 600 Kč / měsíc
* Vratná kauce: 90 000 Kč
* Odstupné za vybavení: 600 000 Kč
* Provize realitní kanceláři: 48 600 Kč.
* Poplatky dle skutečné spotřeby:
* zálohy SVJ (topení, voda, úklid společných prostor atd.)
* elektřina
* pojištění
* odvoz odpadu
* volitelné služby: TV, OSA, internet, rozhlas, zabezpečení

Prostor je volný ihned.

Pro více informací mě neváhejte kontaktovat.
Lukáš Petr

Parametry nemovitosti

Cena
48 600 Kč /za měsíc
Aktualizováno
21. 11. 2025
Adresa
Theinova, Praha 9
ID
18035
Stavba
Smíšená
Stav objektu
Velmi dobrý
Vybaveno
Ano
Typ objektu
Přízemní
Užitná plocha
187 m2
Třída energetické náročnosti
C - Úsporná
Elektřina
400V
Odpad
Veřejná kanalizace
Komunikace
Asfaltová
Telekomunikace
Internet
Doprava
Silnice, MHD
Voda
Vodovod
Garáž
Výtah
Bezbarierový přístup
Převod do OV

Kontaktovat makléře

Realitní kancelář

Logo QARA, s.r.o.

QARA, s.r.o.

Šafaříkova 201/17, Praha

Chystáte se prodat nemovitost?
Pomůžeme Vám!

Máte zájem o tuto nemovistost?

Tímto, v souladu s nařízením Evropského parlamentu a Rady (EU) 2016/679, v platném znění, prohlašuji, že mi je alespoň 16 let a uděluji tak svůj souhlas se zpracováním zadaných údajů (jméno, telefon, e-mail, ip adresa) společnosti B3 Technology, s.r.o., IČ: 07330600, se sídlem Novostavby 126/23, 435 11 Lom (správce dat), za účelem předání dotazu z tohoto formuláře Vámi vybranému inzerentovi a zpětného kontaktování mé osoby. Osobní údaje bude správce zpracovávat manuálně i automaticky přímo prostřednictvím svých zaměstnanců. Informace předané tímto formulářem budou uloženy v databázi správce maximálně po dobu 10 let. Odvolání souhlasu s uložením a zpracováním poskytnutých dat lze e-mailem na info@vitio.cz. V případě podezření na neoprávněné použití Vámi poskytnutých údajů máte právo předat podnět k šetření Úřadu pro ochranu osobních údajů. Více informací
Chystáte se prodat nemovitost?
Pomůžeme Vám!

Inzerát si prohlédlo 0 lidí

Prodejce

Lukáš Petr

Lukáš Petr

Hlídací pes

Chcete dostávat emailem podobné nabídky pronájmu restaurací v Praze 9?

Podobné nemovitosti