Pronájem kanceláře, Praha - Nové Město, Národní, 113 m2

Národní, Praha 1

49 000 Kč /za měsíc Získejte výhodnou HYPOTÉKU

(Ceny jsou uvedené bez DPH)

Exkluzivní partneři v Praze 1

Stěhovací služby

Výkup a prodej starého nábytku

Informace k nemovitosti

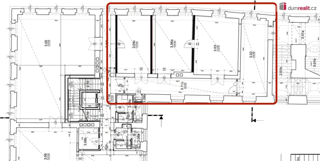
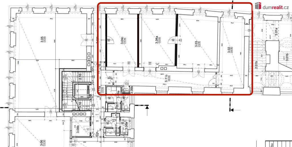
Pronájem uzavřeném souboru čtyř samostatných kanceláří s vysokým stropem, o celkové výměře 113,42m², v krásném celkově zrekonstruovaném prestižním objektu, klášteře sester Voršilek, přímo na ul. Národní, navazující na kostel vrcholně barokní stavby svaté Voršily.
Kanceláře se nachází na 3.NP s výtahem. Tři kanceláře mají orientaci do ul.: Voršilská, (dvě z kanceláří se dají odstraněním příčky spojit v jednu větší) a jedna jak do krásného udržovaného vnitrobloku, tak do ul. Voršilská. Kanceláře jsou vzájemně propojeny spojovací chodbou, která má výhled pouze do vnitrobloku. Prostory jsou klimatizované, připojení na internet je samozřejmostí, ve velké kanceláři jsou instalované stropní akustické desky a v oknech jsou rolety.
Před kancelářemi je společná chodba, kde se nachází pánské a dámské WC a společná kuchyňka, výtah a schodiště.
K pronájmu je možnost i parkovacího místa v ul.: Voršilská za cenu 3.500,-Kč/měsíc,
nebo ve vnitrobloku za 6.000,-Kč.

Prostory, které nabízíme k pronájmu, mají celkovou rozlohu 113,42 m² a nájemné je za první měsíc zvýhodněné na cenu 28 000,-Kč, dále pak 49 000,-Kč.
cena za společné prostory a sociální zázemí (celková výměra 42,07 m²) je 105,-Kč/m² = 4 417,-Kč
Služby za měsíc jsou ve výši 100,-Kč/m² předmětných prostor což je 11 342,-Kč, které jsou po roce vyúčtované.
Cena za služby obsahuje: - Ostraha objektu
- Společná elektřina (osvětlení spol. prostor, výtah)
- Údržba a servis výtahu
- Vytápění společných prostor
- Správa budovy
- Úklid společných prostor
- Údržba přístupových a obslužných komunikací
- Odvoz společného i tříděného odpadu.

Veškeré ceny jsou uvedeny bez 21% DPH
Energie v prostorech se převádí na nájemce, každý nájemce má vlastní elektroměr. Ev. číslo: 653064.

Parametry nemovitosti

Cena
49 000 Kč /za měsíc
Poznámka k ceně
Ceny jsou uvedené bez DPH
Aktualizováno
21. 11. 2025
Adresa
Národní, Praha 1
ID
653678
Stavba
Cihlová
Stav objektu
Po rekonstrukci
Typ objektu
Patrový
Lokalita objektu
Centrum obce
Užitná plocha
113 m2
Třída energetické náročnosti
C - Úsporná
Ukazatel energetické náročnosti
102 kWh/m2 za rok
Topení
Lokální plynové
Parkování

Kontaktovat makléře

Máte zájem o tuto nemovistost?

Tímto, v souladu s nařízením Evropského parlamentu a Rady (EU) 2016/679, v platném znění, prohlašuji, že mi je alespoň 16 let a uděluji tak svůj souhlas se zpracováním zadaných údajů (jméno, telefon, e-mail, ip adresa) společnosti B3 Technology, s.r.o., IČ: 07330600, se sídlem Novostavby 126/23, 435 11 Lom (správce dat), za účelem předání dotazu z tohoto formuláře Vámi vybranému inzerentovi a zpětného kontaktování mé osoby. Osobní údaje bude správce zpracovávat manuálně i automaticky přímo prostřednictvím svých zaměstnanců. Informace předané tímto formulářem budou uloženy v databázi správce maximálně po dobu 10 let. Odvolání souhlasu s uložením a zpracováním poskytnutých dat lze e-mailem na info@vitio.cz. V případě podezření na neoprávněné použití Vámi poskytnutých údajů máte právo předat podnět k šetření Úřadu pro ochranu osobních údajů. Více informací
Chystáte se prodat nemovitost?
Pomůžeme Vám!

Inzerát si prohlédlo 0 lidí

Prodejce

René Jůzek

René Jůzek

Hlídací pes

Chcete dostávat emailem podobné nabídky pronájmu kanceláří v Praze 1?

Podobné nemovitosti