Pronájem kanceláře, Chrudim, Masarykovo náměstí, 52 m2

Masarykovo náměstí, Chrudim IV

Cena na vyžádání /za metr čtvereční / měsíc Získejte výhodnou HYPOTÉKU
Exkluzivní partneři v Chrudimi

Informace k nemovitosti

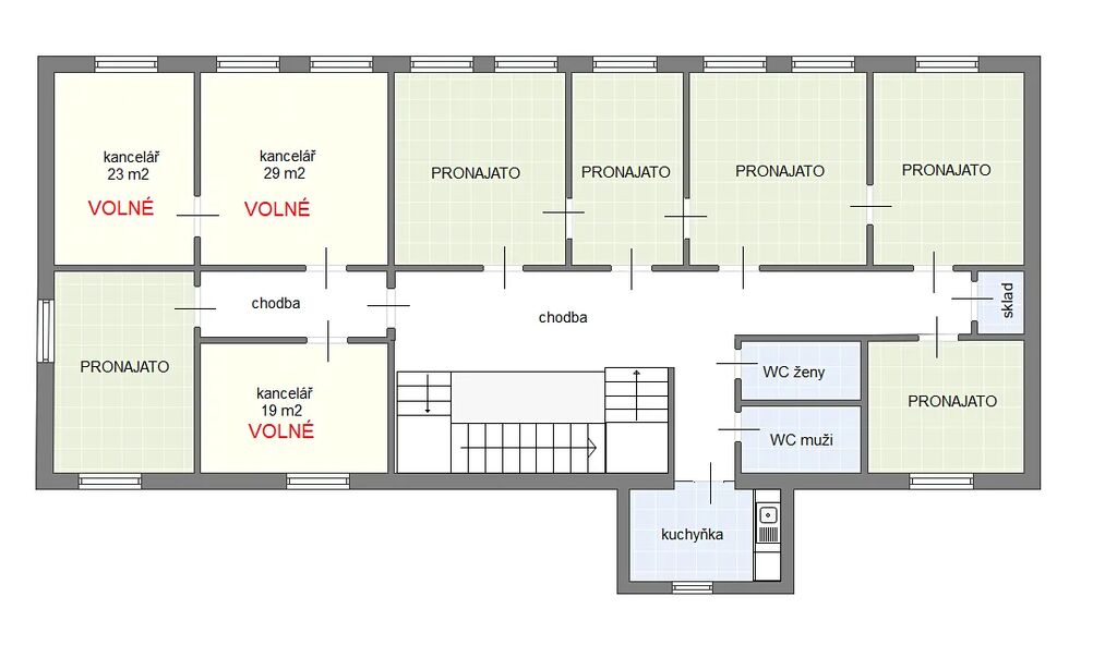
Nabízíme k pronájmu nově zrekonstruované kancelářské prostory nacházející se v atraktivní lokalitě na Masarykově náměstí ve 2. patře budovy.
Ve zrekonstruovaných prostorách o velikosti 29 m2 a 23 m2 nacházejících se v centru města naleznete ideální místo pro vaše podnikání. Kanceláře disponují novými podlahami, omítkami, stropními deskami. Nově jsou provedeny také rozvody topení a elektroinstalace. Kanceláře jsou prosvětleny velkými plastovými okny s horizontálními žaluziemi a pro podtržení útulnosti jsou podlahy doplněny kobercem. Tepelný komfort v zimě zajišťuje podlahové vytápění, naopak v létě lze vysoké teploty zpříjemnit díky nově osazené klimatizační jednotce v každé kanceláři.
Kanceláře jsou průchozí a není možné je pronajmout samostatně. K dispozici je dále možné využít společné prostory s kuchyňkou a sociální zařízení umístěné na patře. Prostory mají má dále k dispozici poštovní schránku u vstupu do domu.

Využijte tuto jedinečnou příležitost a zařiďte si svou kancelář v Chrudimi, kde budete mít po ruce vše potřebné pro Váš obchodní úspěch.

Pokud Vás kancelář zaujala, neváhejte nám napsat nebo zavolat a rádi vám vše ukážeme osobně. Prohlídky jsou možné po předchozí domluvě. Pro více informací o této nemovitosti nebo sjednání prohlídky nás prosím kontaktujte.

Parametry nemovitosti

Cena
Cena na vyžádání
Aktualizováno
30. 11. 2025
Adresa
Masarykovo náměstí, Chrudim IV
ID
700246
Stavba
Smíšená
Stav objektu
Dobrý
Patro
2. z 2
Lokalita objektu
Centrum obce
Užitná plocha
52 m2
Třída energetické náročnosti
G - Mimořádně nehospodárná
Elektřina
230V
Plyn
Plynovod
Odpad
Veřejná kanalizace
Komunikace
Asfaltová
Telekomunikace
Internet
Doprava
Vlak, MHD, Autobus
Voda
Vodovod
Topné těleso
Podlahové vytápění
Zdroj topení
Plynový kotel
Zdroj teplé vody
Plynový kotel
Výtah
Bezbarierový přístup

Kontaktovat makléře

Realitní kancelář

LEONE CZ s.r.o.

Masarykovo náměstí 59, Chrudim

Chystáte se prodat nemovitost?
Pomůžeme Vám!

Máte zájem o tuto nemovistost?

Tímto, v souladu s nařízením Evropského parlamentu a Rady (EU) 2016/679, v platném znění, prohlašuji, že mi je alespoň 16 let a uděluji tak svůj souhlas se zpracováním zadaných údajů (jméno, telefon, e-mail, ip adresa) společnosti B3 Technology, s.r.o., IČ: 07330600, se sídlem Novostavby 126/23, 435 11 Lom (správce dat), za účelem předání dotazu z tohoto formuláře Vámi vybranému inzerentovi a zpětného kontaktování mé osoby. Osobní údaje bude správce zpracovávat manuálně i automaticky přímo prostřednictvím svých zaměstnanců. Informace předané tímto formulářem budou uloženy v databázi správce maximálně po dobu 10 let. Odvolání souhlasu s uložením a zpracováním poskytnutých dat lze e-mailem na info@vitio.cz. V případě podezření na neoprávněné použití Vámi poskytnutých údajů máte právo předat podnět k šetření Úřadu pro ochranu osobních údajů. Více informací
Chystáte se prodat nemovitost?
Pomůžeme Vám!

Inzerát si prohlédlo 3 lidí

Prodejce

Mgr. Michaela Průšová

Mgr. Michaela Průšová

Hlídací pes

Chcete dostávat emailem podobné nabídky pronájmu kanceláří v Chrudimi?

Podobné nemovitosti