Prodej bytu 2+1, Česká Skalice, Tyršova, 60 m2 (ID: 2516639)

Tyršova, Česká Skalice

2 200 000 Kč /za nemovitost HYPOTÉKA od 9 833 Kč /za měsíc

(cena je včetně právního servisu a provize realitní kanceláři)

Exkluzivní partneři v České Skalici

Informace k bytu

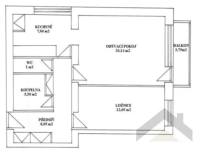
K převodu nabízíme byt 2+1 v obci Česká Skalice, v ulici Tyršova. Byt je situován do 2. NP panelového domu, jeho podlahová plocha je 54 m2 a je orientovaný směrem k přehradě Rozkoš. K bytu patří balkon 3,75 m2 a zděný sklep 2,30 m2. Dispozičně je byt výborně řešený, místnosti jsou neprůchozí. Byt je částečně v původním stavu, částečně po rekonstrukci. Nabízí se tedy možnost upravit si byt dle vlastních představ. Vytápění bytu a ohřev vody je řešeno vlastním plynovým kotlem. Byt je v družstevním vlastnictví bez možnosti převodu do osobního vlastnictví. V dosahu veškerá občanská vybavenost, dům se nachází v těsné blízkosti přehrady Rozkoš. Ráda poskytnu více informací a bytem Vás provedu.

Parametry bytu

Cena
2 200 000 Kč /za nemovitost Spočítat hypotéku
Poznámka k ceně
cena je včetně právního servisu a provize realitní kanceláři
Aktualizováno
21. 11. 2025
Adresa
Tyršova, Česká Skalice
ID
0618
Stavba
Panelová
Stav objektu
Dobrý
Patro
2. z 6
Vlastnictví
Družstevní
Užitná plocha
60 m2
Podlahová plocha
60 m2
Třída energetické náročnosti
F - Velmi nehospodárná
Plyn
Plynovod
Odpad
Veřejná kanalizace
Topení
Ústřední plynové
Doprava
Vlak, Silnice, MHD, Autobus
Voda
Vodovod
Balkon
Sklep
Výtah
Bezbarierový přístup
Převod do OV
Parkování

Kontaktovat makléře

Máte zájem o tento byt?

Tímto, v souladu s nařízením Evropského parlamentu a Rady (EU) 2016/679, v platném znění, prohlašuji, že mi je alespoň 16 let a uděluji tak svůj souhlas se zpracováním zadaných údajů (jméno, telefon, e-mail, ip adresa) společnosti B3 Technology, s.r.o., IČ: 07330600, se sídlem Novostavby 126/23, 435 11 Lom (správce dat), za účelem předání dotazu z tohoto formuláře Vámi vybranému inzerentovi a zpětného kontaktování mé osoby. Osobní údaje bude správce zpracovávat manuálně i automaticky přímo prostřednictvím svých zaměstnanců. Informace předané tímto formulářem budou uloženy v databázi správce maximálně po dobu 10 let. Odvolání souhlasu s uložením a zpracováním poskytnutých dat lze e-mailem na info@vitio.cz. V případě podezření na neoprávněné použití Vámi poskytnutých údajů máte právo předat podnět k šetření Úřadu pro ochranu osobních údajů. Více informací
Chystáte se prodat nemovitost?
Pomůžeme Vám!

Inzerát si prohlédlo 4 lidí

Prodejce

Mgr. Monika  Kindlová

Mgr. Monika Kindlová

Hlídací pes

Chcete dostávat emailem podobné nabídky prodeje bytů 2+1 v České Skalici?

Podobné nemovitosti