Prodej bytu 4+kk, Praha - Řepy, Otlíkovská, 125 m2

Otlíkovská, Praha, Řepy

24 990 000 Kč /za nemovitost HYPOTÉKA od 111 690 Kč /za měsíc
Exkluzivní partneři v Praze 6

Stěhovací služby

Výkup a prodej starého nábytku

Informace k bytu

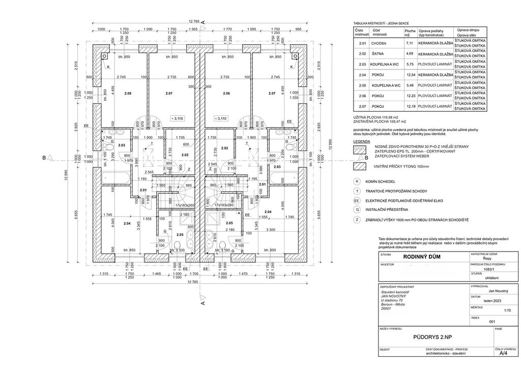
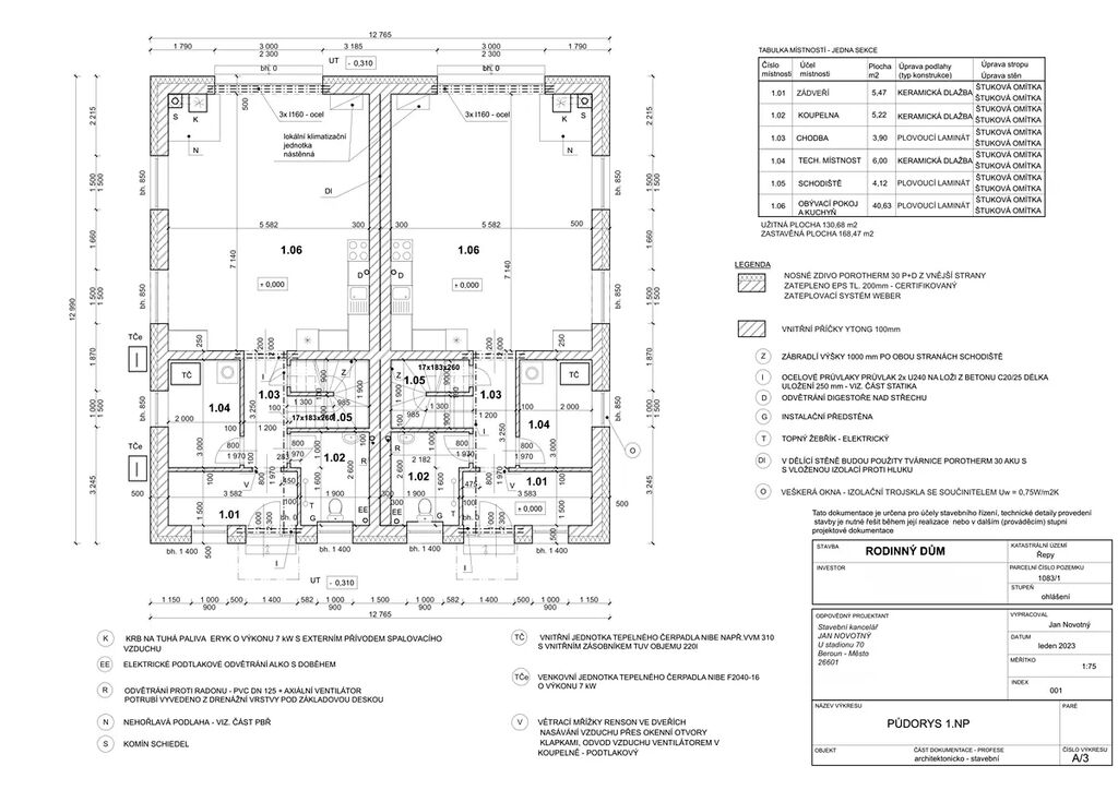
Prodej poloviny rodinného domu, vedený jako bytová jednotka č. 1 o dispozici 4+kk a podlahové ploše 125 m2.

Novostavba nízkoenergetického dvojdomu v energetické třídě A vznikla v původní zástavbě městské části Praha – Řepy v blízkosti lesoparku i veškeré občanské vybavenosti. Každá jednotka disponuje prostorným obývacím pokojem přes 40 m2, toaletou, technickou místností a vstupní halou s dostatkem úložných prostor v přízemí, v prvním patře se nachází tři ložnice, z nichž jedna má vlastní koupelnu se sprchovým koutem, jedna společná koupelna s vanou a prostorná šatna. Ke každé jednotce náleží zahrada 80 m2 a dvě parkovací stání na pozemku před domem s dobíjecí stanicí. Stavba je nabita technologiemi, které usnadňují život a šetří energie.


Stavebně technické parametry:

Zdivo Porotherm 30 cm, příčky ytong, stropy panelové betonové, schodiště betonové, vazníková střecha, tašky Benders tmavě šedá, zateplení polystyren 200mm, okna 7komor trojskla, venkovní elektrické hliníkové rolety barva antracit. Tepelné čerpadlo Samsung 12kw - naddimenzováno - provoz na 30-40%, což zaručuje téměř nulový hluk a nízké náklady, podlahové topení v celém domě, termostat v obývacím pokoji pro spodní patro, v prvním patře termostaty ve všech pokojích, vyvložkovaný komín (stačí pouze instalovat kamna). V prvním patře kvalitní vinylová podlaha, v obývacím pokoji v přízemí kvalitní dřevěná podlaha. Interiérové designové dveře Sepos, veškerá sanita v koupelnách zn. Ravak, kvalitní úsporné led osvětlení v celém domě.


Technologie:

Alarm Jablotron s LCD dotykovou klávesnicí vč. dálkového ovládání, rekuperace s možností dokoupení o chlazení i topení, klimatizační jednotka Samsung s wifi v přízemí, kamerový systém Hikvision 3x IP kamera, fotovoltaika 8,1 kwp Goodwe s baterií 5 KWH, dobíjecí stanice na elektromobil 11 kw, IT systém rack - 2x wifi síť, příprava na optiku.

V docházkové vzdálenosti od klidné vilové čtvrti se nachází veškerá občanská vybavenost jako jsou školky, školy, obchody i úřady. Autobusová zastávka MHD pár metrů od domu. Nespornou výhodou je také blízký lesopark s možností mnoha venkovních aktivit i tichého pobytu v přírodě.

V případě zájmu o prohlídku nebo detailní informace ohledně projektu mě neváhejte kontaktovat.

Parametry bytu

Cena
24 990 000 Kč /za nemovitost Spočítat hypotéku
Aktualizováno
20. 11. 2025
Adresa
Otlíkovská, Praha, Řepy
Stavba
Cihlová
Stav objektu
Novostavba
Patro
1.
Vlastnictví
Osobní
Užitná plocha
125 m2
Plocha zahrady
80 m2
Třída energetické náročnosti
A - Mimořádně úsporná
Ukazatel energetické náročnosti
19 kWh/m2 za rok
Parkování
Nízkoenergetický

Kontaktovat makléře

Máte zájem o tento byt?

Tímto, v souladu s nařízením Evropského parlamentu a Rady (EU) 2016/679, v platném znění, prohlašuji, že mi je alespoň 16 let a uděluji tak svůj souhlas se zpracováním zadaných údajů (jméno, telefon, e-mail, ip adresa) společnosti B3 Technology, s.r.o., IČ: 07330600, se sídlem Novostavby 126/23, 435 11 Lom (správce dat), za účelem předání dotazu z tohoto formuláře Vámi vybranému inzerentovi a zpětného kontaktování mé osoby. Osobní údaje bude správce zpracovávat manuálně i automaticky přímo prostřednictvím svých zaměstnanců. Informace předané tímto formulářem budou uloženy v databázi správce maximálně po dobu 10 let. Odvolání souhlasu s uložením a zpracováním poskytnutých dat lze e-mailem na info@vitio.cz. V případě podezření na neoprávněné použití Vámi poskytnutých údajů máte právo předat podnět k šetření Úřadu pro ochranu osobních údajů. Více informací
Chystáte se prodat nemovitost?
Pomůžeme Vám!

Inzerát si prohlédlo 10 lidí

Prodejce

Andrea Hlinková

Andrea Hlinková

Hlídací pes

Chcete dostávat emailem podobné nabídky prodeje bytů 4+kk v Praze 6?

Podobné nemovitosti