Prodej bytu 3+1, Pardubice, Luďka Matury, 65 m2

Luďka Matury, Pardubice

5 600 000 Kč /za nemovitost HYPOTÉKA od 25 029 Kč /za měsíc

(včetně DPH, včetně poplatků, včetně provize, včetně právního servisu)

Exkluzivní partneři v Pardubicích

Informace k bytu

Nabízíme Vám ve výhradním zastoupení částečně zařízený byt 3+1 ve výborném technickém stavu, připravený k okamžitému nastěhování bez dalších nutných investic.

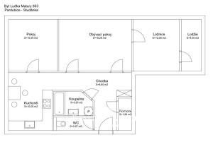
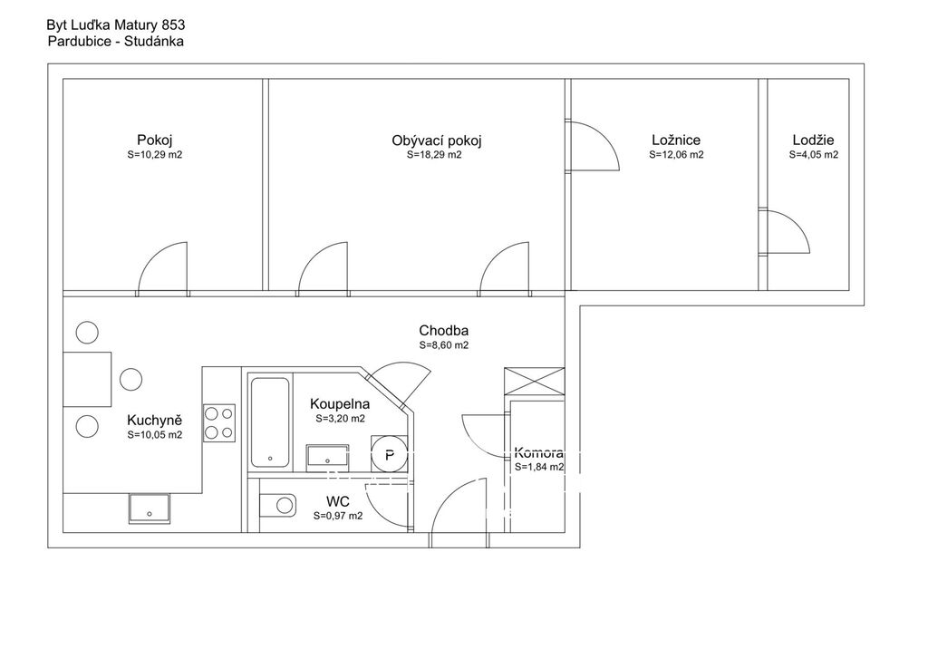
Byt o užitné ploše 74 m² se nachází v 2NP bytového domu s výtahem v žádané lokalitě Pardubice - Studánka, na adrese Luďka Matury 853.

Dispozice bytu:
Po vstupu do bytu se ocitnete v prostorné chodbě, odkud se pohodlně dostanete do všech místností. Po pravé straně najdete komoru, která nabízí dostatek úložného prostoru. Po levé straně je situována samostatná toaleta
a koupelna s vanou, umyvadlem a pračkou. Z chodby vejdete do kuchyně, vybavenou vestavěnými kuchyňskými spotřebiči (horkovzdušná trouba, myčka na nádobí - BEKO) a samostatně stojící chladničkou s mrazákem.

Z kuchyně je vstup do dětského pokoje, který je situovaný na SZ. Z chodby se dostanete do obývacího pokoje vybaveného rohovou sedací soupravou a stolkem pod TV. Obývací pokoj je průchozí do ložnice, ve které se nachází vestavěná šatní skříň a manželská postel. Velkou předností tohoto bytu je prosklená lodžie 4,5m2 s výhledem do zeleně situovaná na JV.
Celková dispozice bytu je velmi praktická, vzdušná a nabízí ideální uspořádání pro rodinné bydlení. K bytu náleží i sklepní kóje o velikosti 3,5m2.

Dům prošel kompletní modernizací – zateplení fasády, instalace nového výtahu a výměna oken. Díky tomu je objekt velmi úsporný a nabízí příjemné náklady na bydlení.

V okolí je kompletní občanská vybavenost: supermarket, zastávky MHD, mateřská i základní škola, zdravotní centrum, dostatek zeleně i dětské hřiště. Ideální místo pro rodinu s dětmi.

V případě, že Vás tato nabídka zaujala. Kdykoliv mě kontaktujte, rada se s Vámi potkám na prohlídce.

Parametry bytu

Cena
5 600 000 Kč /za nemovitost Spočítat hypotéku
Poznámka k ceně
včetně DPH, včetně poplatků, včetně provize, včetně právního servisu
Aktualizováno
20. 11. 2025
Adresa
Luďka Matury, Pardubice
ID
00960
Stavba
Panelová
Stav objektu
Dobrý
Patro
2. z 9
Vybaveno
Částečně
Druh objektu
V bloku
Lokalita objektu
Sídliště
Vlastnictví
Osobní
Užitná plocha
65 m2
Podlahová plocha
74 m2
Třída energetické náročnosti
G - Mimořádně nehospodárná
Elektřina
230V
Plyn
Plynovod
Odpad
Veřejná kanalizace
Topení
Ústřední dálkové
Komunikace
Asfaltová
Telekomunikace
Internet
Doprava
Silnice, MHD, Autobus
Voda
Vodovod
Balkon
Sklep
Výtah
Bezbarierový přístup

Kontaktovat makléře

Máte zájem o tento byt?

Tímto, v souladu s nařízením Evropského parlamentu a Rady (EU) 2016/679, v platném znění, prohlašuji, že mi je alespoň 16 let a uděluji tak svůj souhlas se zpracováním zadaných údajů (jméno, telefon, e-mail, ip adresa) společnosti B3 Technology, s.r.o., IČ: 07330600, se sídlem Novostavby 126/23, 435 11 Lom (správce dat), za účelem předání dotazu z tohoto formuláře Vámi vybranému inzerentovi a zpětného kontaktování mé osoby. Osobní údaje bude správce zpracovávat manuálně i automaticky přímo prostřednictvím svých zaměstnanců. Informace předané tímto formulářem budou uloženy v databázi správce maximálně po dobu 10 let. Odvolání souhlasu s uložením a zpracováním poskytnutých dat lze e-mailem na info@vitio.cz. V případě podezření na neoprávněné použití Vámi poskytnutých údajů máte právo předat podnět k šetření Úřadu pro ochranu osobních údajů. Více informací
Chystáte se prodat nemovitost?
Pomůžeme Vám!

Inzerát si prohlédlo 1 lidí

Prodejce

Hana Zavadilová, Dis.

Hana Zavadilová, Dis.

Hlídací pes

Chcete dostávat emailem podobné nabídky prodeje bytů 3+1 v Pardubicích?

Podobné nemovitosti