Pronájem kanceláře, Praha - Ruzyně, Ztracená, 85 m2 (ID: 2515467)

Ztracená, Praha, Ruzyně

35 150 Kč /za měsíc Získejte výhodnou HYPOTÉKU
Exkluzivní partneři v Praze 6

Stěhovací služby

Výkup a prodej starého nábytku

Informace k nemovitosti

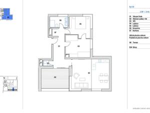
Dovolujeme si Vám nabídnout k pronájmu prostorné kancelářské prostory o užitné ploše 85 m² v moderní skeletové budově, která byla zkolaudována v roce 2020. Kanceláře se nacházejí v druhém nadzemním podlaží a jsou přístupné výtahem, což zajišťuje bezbariérový přístup pro všechny klienty a zaměstnance. Díky použití kvalitních materiálů a moderní konstrukci je objekt ve velmi dobrém stavu, což přispívá k pohodlí a efektivitě pracovního prostředí. Ke kanceláři náleží i prostorná terasa o výměře 16 m2.

Kanceláře se nacházejí v klidné části Prahy a jsou vhodně umístěné s dobrým napojením na veřejnou dopravu. Součástí pronájmu je i jedno parkovací místo v podzemní garáži a jedno parkovací stání před domem, což je velkou výhodou pro ty, kteří dojíždějí autem. Prostory jsou částečně vybaveny, což umožňuje snadné přizpůsobení podle specifických potřeb a představ nájemce.

Nabízíme tento pronájem bez zprostředkovatelské provize a za měsíční částku 35 150 Kč plus poplatky. Vratná kauce ve výši 70 000 Kč je požadována. Nastěhování je možné od 1. listopadu 2025, ale prohlídky a podrobné informace o prostorách a dalších podmínkách pronájmu jsou dostupné již nyní.

Pokud Vás kancelářské prostory zaujaly, neváhejte nám napsat nebo zavolat a rádi Vám vše ukážeme osobně.

Parametry nemovitosti

Cena
35 150 Kč /za měsíc
Aktualizováno
20. 11. 2025
Adresa
Ztracená, Praha, Ruzyně
Stavba
Smíšená
Stav objektu
Velmi dobrý
Patro
2.
Užitná plocha
85 m2
Garáž
Parkování

Kontaktovat makléře

Máte zájem o tuto nemovistost?

Tímto, v souladu s nařízením Evropského parlamentu a Rady (EU) 2016/679, v platném znění, prohlašuji, že mi je alespoň 16 let a uděluji tak svůj souhlas se zpracováním zadaných údajů (jméno, telefon, e-mail, ip adresa) společnosti B3 Technology, s.r.o., IČ: 07330600, se sídlem Novostavby 126/23, 435 11 Lom (správce dat), za účelem předání dotazu z tohoto formuláře Vámi vybranému inzerentovi a zpětného kontaktování mé osoby. Osobní údaje bude správce zpracovávat manuálně i automaticky přímo prostřednictvím svých zaměstnanců. Informace předané tímto formulářem budou uloženy v databázi správce maximálně po dobu 10 let. Odvolání souhlasu s uložením a zpracováním poskytnutých dat lze e-mailem na info@vitio.cz. V případě podezření na neoprávněné použití Vámi poskytnutých údajů máte právo předat podnět k šetření Úřadu pro ochranu osobních údajů. Více informací
Chystáte se prodat nemovitost?
Pomůžeme Vám!

Inzerát si prohlédlo 11 lidí

Prodejce

Štěpán Janeček

Štěpán Janeček

Hlídací pes

Chcete dostávat emailem podobné nabídky pronájmu kanceláří v Praze 6?

Podobné nemovitosti