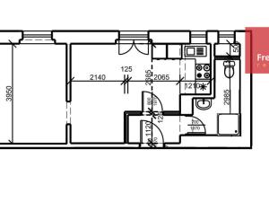
Prodej bytu 2+kk, Teplice, Vrchlického, 36 m2

Vrchlického, Teplice

2 300 000 Kč /za nemovitost HYPOTÉKA od 10 280 Kč /za měsíc
Exkluzivní partneři v Teplicích

Okna a dveře

Rekonstrukce

Zámečnické práce

Informace k bytu

Byt v osobním vlastnictví v přízemí. Vila se nachází v lázeňské části města Teplice, v blízkosti parku, zdravotního střediska a dětského hřiště. Možnost parkovaní ve dvoře, společná zahrada, místo pro grilovaní a odpočinek. Dopravní dostupnost jak pěšky, tak i MHD, blízko vlakové nádraží. Byt je bezbariérový. Financování zajistíme.

Parametry bytu

Cena
2 300 000 Kč /za nemovitost Spočítat hypotéku
Aktualizováno
17. 11. 2025
Adresa
Vrchlického, Teplice
ID
N1810
Stavba
Cihlová
Stav objektu
Dobrý
Patro
1. z 4
Vybaveno
Ano
Typ objektu
Patrový
Lokalita objektu
Centrum obce
Vlastnictví
Osobní
Užitná plocha
36 m2
Podlahová plocha
36 m2
Třída energetické náročnosti
F - Velmi nehospodárná
Ukazatel energetické náročnosti
239 kWh/m2 za rok
Elektřina
230V
Topení
Ústřední plynové
Doprava
Vlak, Dálnice, Silnice, MHD, Autobus
Voda
Vodovod
Sklep
Výtah
Bezbarierový přístup
Parkování

Kontaktovat makléře

Máte zájem o tento byt?

Tímto, v souladu s nařízením Evropského parlamentu a Rady (EU) 2016/679, v platném znění, prohlašuji, že mi je alespoň 16 let a uděluji tak svůj souhlas se zpracováním zadaných údajů (jméno, telefon, e-mail, ip adresa) společnosti B3 Technology, s.r.o., IČ: 07330600, se sídlem Novostavby 126/23, 435 11 Lom (správce dat), za účelem předání dotazu z tohoto formuláře Vámi vybranému inzerentovi a zpětného kontaktování mé osoby. Osobní údaje bude správce zpracovávat manuálně i automaticky přímo prostřednictvím svých zaměstnanců. Informace předané tímto formulářem budou uloženy v databázi správce maximálně po dobu 10 let. Odvolání souhlasu s uložením a zpracováním poskytnutých dat lze e-mailem na info@vitio.cz. V případě podezření na neoprávněné použití Vámi poskytnutých údajů máte právo předat podnět k šetření Úřadu pro ochranu osobních údajů. Více informací
Chystáte se prodat nemovitost?
Pomůžeme Vám!

Inzerát si prohlédlo 3 lidí

Prodejce

Freedům reality

Freedům reality

Hlídací pes

Chcete dostávat emailem podobné nabídky prodeje bytů 2+kk v Teplicích?

Podobné nemovitosti