Prodej - jiné, Praha, Pastevců, 350 m2 (ID: 2512080)

Pastevců, Praha, Újezd u Průhonic

26 790 000 Kč /za nemovitost HYPOTÉKA od 119 735 Kč /za měsíc
Exkluzivní partneři v Praze 4

Stěhovací služby

Výkup a prodej starého nábytku

Informace k nemovitosti

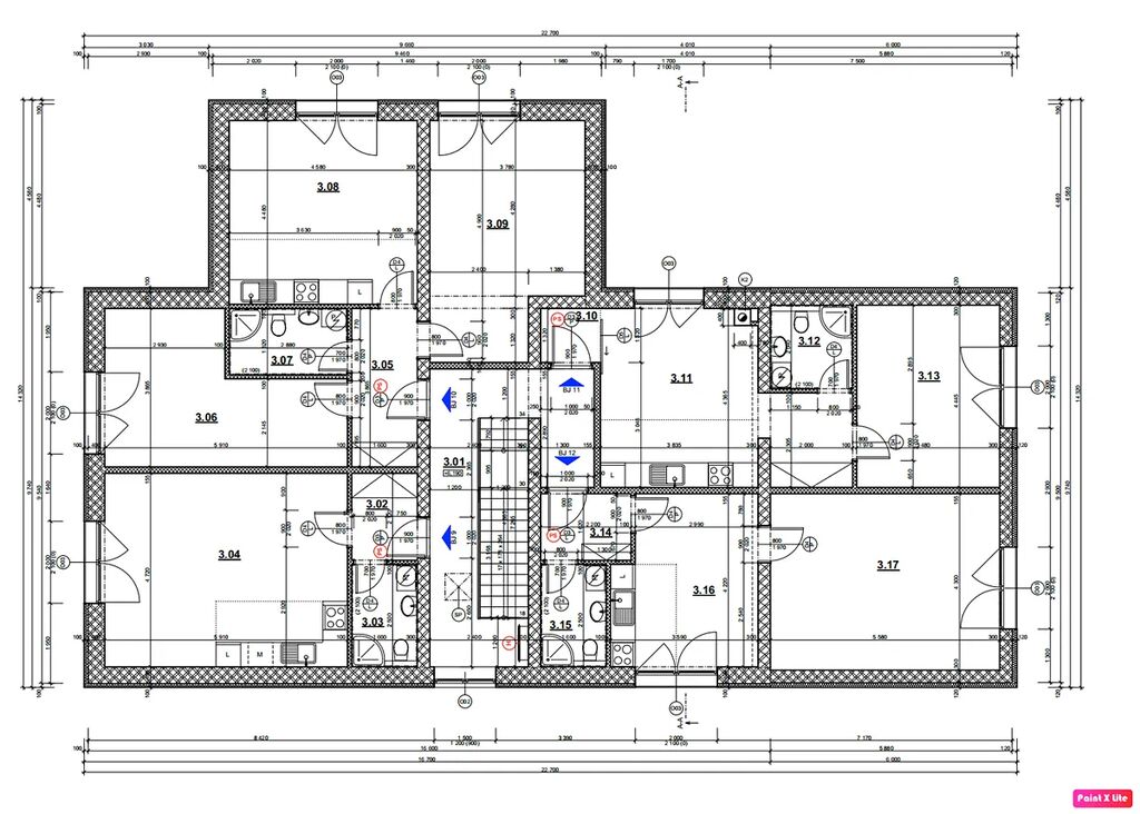
Exkluzivní nabídka – Prodej nemovitosti s projektem přestavby na bytový dům v Praze 4 – Újezd u Průhonic
Nabízíme exkluzivně k prodeji nemovitost s projektem přestavby rodinného domu na bytový dům v atraktivní lokalitě Praha 4 – Újezd u Průhonic. Projekt počítá s vybudováním 12 bytových jednotek.
Stávající rodinný dům o dispozici 6+kk a celkové podlahové ploše cca 350 m² je situován na rozsáhlém, pečlivě udržovaném pozemku o výměře 1.388 m². Nachází se na parcelách č. 233/14 a 233/31 (č.p. 524/11) a je kompletně napojen na technickou i dopravní infrastrukturu.
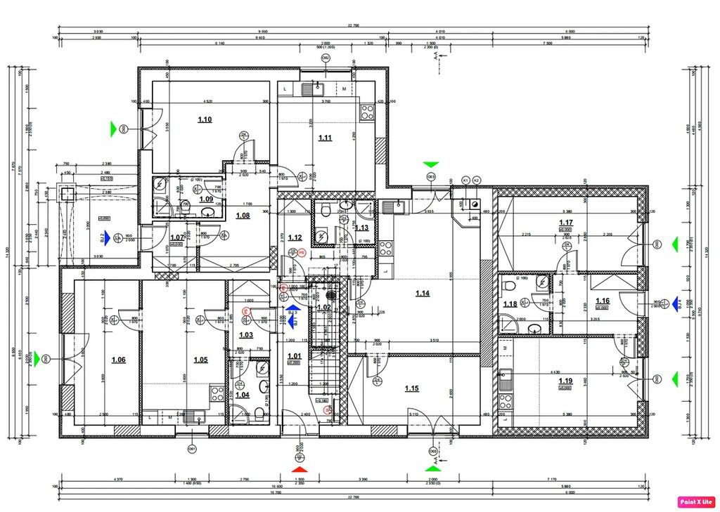
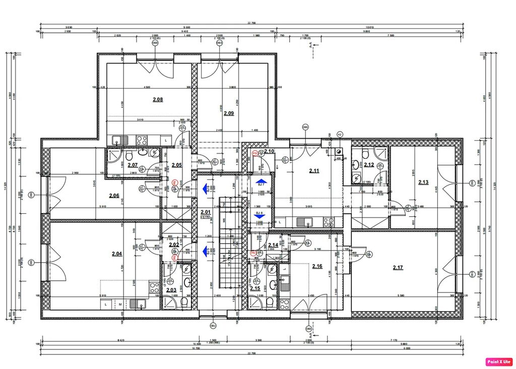
Projektová dokumentace zahrnuje nástavbu, přístavbu, stavební úpravy a změnu užívání stávajícího rodinného domu na bytový dům. V současné době probíhá sloučené územní řízení a stavební povolení. Pozemek je dle územního plánu veden jako čistě obytné území (OB–C).
Hlavní parametry projektu:
• Počet nadzemních podlaží: 3
• Celková zastavěná plocha: 265,3 m²
• Zpevněná plocha: 452,2 m²
• Zelená plocha: 877,5 m²
• Užitná plocha jednotlivých podlaží:
1.NP – 203,12 m²
2.NP – 214,53 m²
3.NP – 216,15 m²
Celkem: 633,80 m²
• Funkční plocha budovy: 795,9 m²
• Obestavěný prostor: 2 632 m³
• Počet bytových jednotek: 12
• Počet parkovacích míst: 12 (včetně 1 místa pro osoby se zdravotním postižením)
Projektová dokumentace je aktuálně ve fázi finálních úprav a přípravy k podání žádosti o stavební povolení. Kompletní dokumentaci rádi zašleme na vyžádání.
Lokalita – Újezd u Průhonic
Újezd u Průhonic, spadající pod okres Praha-východ, je malebná obec obklopená rybníky a lesy, ideální pro klidné bydlení i rekreaci. V bezprostřední blízkosti se nachází Průhonický park, národní kulturní památka a jeden z největších a nejkrásnějších krajinářských parků v České republice.
Obec nabízí kompletní občanskou vybavenost – potraviny, restaurace, poštu, zdravotní středisko, školy, školky i volnočasová zařízení. Výborná dopravní dostupnost do centra Prahy a napojení na dálnici D1 zajišťují pohodlné spojení s hlavním městem i okolím. V okolí se dále nachází golfové hřiště, aquapark, wellness centrum, cyklostezky a sportoviště.

Parametry nemovitosti

Cena
26 790 000 Kč /za nemovitost Spočítat hypotéku
Aktualizováno
16. 11. 2025
Adresa
Pastevců, Praha, Újezd u Průhonic
Stavba
Cihlová
Stav objektu
Dobrý
Užitná plocha
350 m2

Kontaktovat makléře

Realitní kancelář

DIXOR Invest s.r.o.

Volutová 2523/14, Praha, Stodůlky

Chystáte se prodat nemovitost?
Pomůžeme Vám!

Máte zájem o tuto nemovistost?

Tímto, v souladu s nařízením Evropského parlamentu a Rady (EU) 2016/679, v platném znění, prohlašuji, že mi je alespoň 16 let a uděluji tak svůj souhlas se zpracováním zadaných údajů (jméno, telefon, e-mail, ip adresa) společnosti B3 Technology, s.r.o., IČ: 07330600, se sídlem Novostavby 126/23, 435 11 Lom (správce dat), za účelem předání dotazu z tohoto formuláře Vámi vybranému inzerentovi a zpětného kontaktování mé osoby. Osobní údaje bude správce zpracovávat manuálně i automaticky přímo prostřednictvím svých zaměstnanců. Informace předané tímto formulářem budou uloženy v databázi správce maximálně po dobu 10 let. Odvolání souhlasu s uložením a zpracováním poskytnutých dat lze e-mailem na info@vitio.cz. V případě podezření na neoprávněné použití Vámi poskytnutých údajů máte právo předat podnět k šetření Úřadu pro ochranu osobních údajů. Více informací
Chystáte se prodat nemovitost?
Pomůžeme Vám!

Inzerát si prohlédlo 1 lidí

Prodejce

S. Cevanová

S. Cevanová

Hlídací pes

Chcete dostávat emailem podobné nabídky prodeje ostatních nemovitostí v Praze 4?