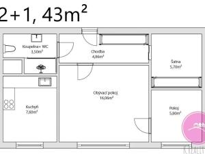
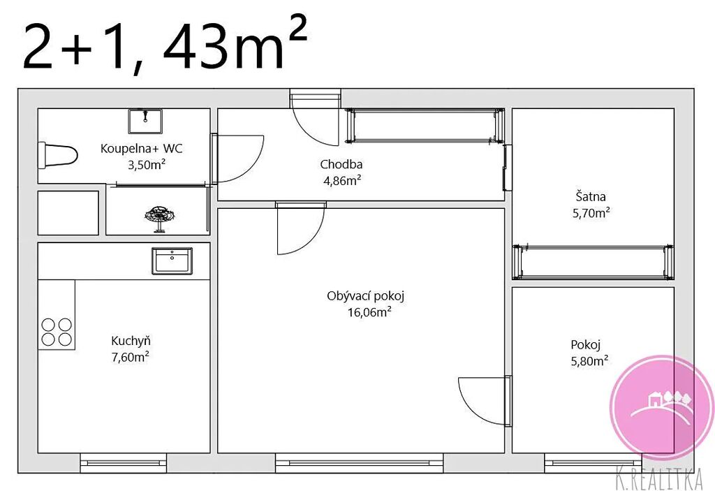
Prodej bytu 2+1, Olomouc, Rožňavská, 43 m2

Rožňavská, Olomouc, Nové Sady

3 990 000 Kč /za nemovitost HYPOTÉKA od 17 833 Kč /za měsíc
Exkluzivní partneři v Olomouci

Informace k bytu

Ve výhradním zastoupení majitele nabízíme prodej slunného bytu o dispozici 2+1 na ulici Rožňavská v Olomouci. Byt má výměru 43m2 a nachází se ve třetím patře zrevitalizovaného panelového domu. Fasáda a zateplení proběhlo v roce 2013, výtahová kabina a radiátory v roce 2011, výtahové stroje v roce 2023 a v roce 2025 proběhlo čištění fasády. V příštím roce proběhne revitalizace střechy nad nebytovými prostorami, nátěr fasády z východní strany domu a kompletní čištění odsávání v celém objektu. Společenství vlastníků je bez úvěru. Byt prošel částečnou rekonstrukcí. Nová plastová okna, zánovní kuchyňská linka, nové podlahy. V kuchyni kuchyňská linka se spotřebiči - elektrická varná deska, elektrická trouba a digestoř. V koupelně prostorný sprchový kout, WC a prostor na pračku. Byt vhodný pro jednotlivce nebo pár, startovací byt či byt na investici. Parkování zajištěno na přilehlých parkovištích. V blízkosti veškerá občanská vybavenost samozřejmostí - škola, školka - několik, obchodní centrum, dětská hřiště, autobusová zastávka prakticky před domem, stejně tak, jako nově vybudovaná tramvajová trať s linkou do centra města. K bytu patří větší sklepní koje a společné prostory, vstup monitorovaný kamerovým systémem, bezpečnostní prvky ve sklepě. Velkou výhodou jsou velmi malé náklady na bydlení/ měsíc 1 osoba max. 1500,- Kč + elektřina. V případě potřeby zajistíme financování hypotékou. Byt je k dispozici ihned. Cena: 3.990.000,-Kč + provize RK

Parametry bytu

Cena
3 990 000 Kč /za nemovitost Spočítat hypotéku
Aktualizováno
15. 11. 2025
Adresa
Rožňavská, Olomouc, Nové Sady
ID
63/25
Stavba
Panelová
Stav objektu
Velmi dobrý
Patro
3. z 8
Vlastnictví
Osobní
Užitná plocha
43 m2
Podlahová plocha
43 m2
Třída energetické náročnosti
D - Méně úsporná
Bezbarierový přístup

Kontaktovat makléře

Realitní kancelář

Krealitka

nábř. Přemyslovců 867/8, Olomouc

Chystáte se prodat nemovitost?
Pomůžeme Vám!

Máte zájem o tento byt?

Tímto, v souladu s nařízením Evropského parlamentu a Rady (EU) 2016/679, v platném znění, prohlašuji, že mi je alespoň 16 let a uděluji tak svůj souhlas se zpracováním zadaných údajů (jméno, telefon, e-mail, ip adresa) společnosti B3 Technology, s.r.o., IČ: 07330600, se sídlem Novostavby 126/23, 435 11 Lom (správce dat), za účelem předání dotazu z tohoto formuláře Vámi vybranému inzerentovi a zpětného kontaktování mé osoby. Osobní údaje bude správce zpracovávat manuálně i automaticky přímo prostřednictvím svých zaměstnanců. Informace předané tímto formulářem budou uloženy v databázi správce maximálně po dobu 10 let. Odvolání souhlasu s uložením a zpracováním poskytnutých dat lze e-mailem na info@vitio.cz. V případě podezření na neoprávněné použití Vámi poskytnutých údajů máte právo předat podnět k šetření Úřadu pro ochranu osobních údajů. Více informací
Chystáte se prodat nemovitost?
Pomůžeme Vám!

Inzerát si prohlédlo 6 lidí

Prodejce

Pavla Kratochvílová

Pavla Kratochvílová

Hlídací pes

Chcete dostávat emailem podobné nabídky prodeje bytů 2+1 v Olomouci?

Podobné nemovitosti