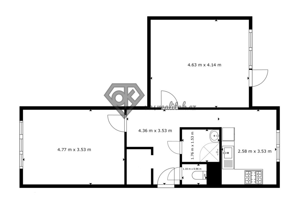
Prodej bytu 2+1, Česká Třebová - Lhotka, 65 m2

Česká Třebová, Lhotka

2 835 000 Kč /za nemovitost HYPOTÉKA od 12 671 Kč /za měsíc
Exkluzivní partneři v České Třebové

Informace k bytu

Vítejte v České Třebové!
Hledáte útulný byt, v klidné a oblíbené lokalitě? Tou sídliště Lhotka rozhodně je!

Tento byt o velikosti 65 m² s dispozicí 2+1 se nachází v 1. nadzemním podlaží panelového domu, prošel částečnou rekonstrukcí a nyní čeká na nového majitele. Vzhledem k jeho dispozici a lokalitě, ve které poptávka po nájemních bytech jen roste, je ideální volbou pro investory.

Jaká je dispozice bytu?
- kuchyň s novou kuchyňskou linkou
- obývací pokoj se vstupem na lodžii
- ložnice
- koupelna se sprchovým koutem
- toaleta
- chodba
- komora
K bytu dále náleží sklepní koje.

Pár technických údajů?
- podlahová plocha: 65 m²
- 1. nadzemní podlaží
- po částečné rekonstrukci
- dálkové vytápění a ohřev vody
- elektřina, plyn
- parkování u domu

Pro koho je byt určen?
- pro investora, který hledá ideální byt s jistotou výnosu, který by mohl pronajímat
- pro každého, kdo chce pohodlné bydlení bez nutnosti velkých investic
- pro pár nebo menší rodinu, která ocení praktickou lokalitu s výbornou dostupností
- pro ty, kteří chtějí mít vše po ruce ale zároveň touží po klidném prostředí

O jakou se jedná lokalitu?
Jak již bylo zmíněno - sídliště Lhotka patří v České Třebové mezi oblíbené lokality. Najdete tu obchod s potravinami, dětské hřiště, lékaře, hospodu a díky zastávce MHD můžete být v centru města za 5 minut. Česká Třebová je město s výbornou občanskou vybaveností - školy, školky, sítě obchodů, lékařské středisko, plavecký bazén, posilovny, kulturní vyžití apod.. Milovníky sportovních aktivit potěší ski areál Peklák, který v zimě nabízí možnost lyžování a v teplejších měsících zase jízdu na kolech.

Tak neváhejte a přijďte si prohlédnout tento útulný byt osobně. Zavolejte mi a já se na Vás budu těšit na prohlídce!

Poznámka:
- uvedené výměry jsou pouze orientační
- v případě více zájemců bude nemovitost prodána nejlepší nabídce a majitel si vyhrazuje právo vybrat kupujícího na základě jim zvolených kritérií
- veškeré zveřejněné údaje obsažené v tomto inzerátu mají pouze informativní charakter a nejsou nabídkou ve smyslu § 1731 nebo § 1732 občanského zákoníku, ani se nejedná o veřejný příslib dle § 1733 občanského zákoníku

Parametry bytu

Cena
2 835 000 Kč /za nemovitost Spočítat hypotéku
Aktualizováno
14. 11. 2025
Adresa
Česká Třebová, Lhotka
ID
0387
Stavba
Panelová
Stav objektu
Velmi dobrý
Patro
1.
Vybaveno
Částečně
Lokalita objektu
Sídliště
Vlastnictví
Osobní
Užitná plocha
65 m2
Elektřina
230V
Plyn
Plynovod
Odpad
Veřejná kanalizace
Komunikace
Asfaltová
Doprava
Vlak, Silnice, MHD, Autobus
Voda
Vodovod
Výtah

Kontaktovat makléře

Máte zájem o tento byt?

Tímto, v souladu s nařízením Evropského parlamentu a Rady (EU) 2016/679, v platném znění, prohlašuji, že mi je alespoň 16 let a uděluji tak svůj souhlas se zpracováním zadaných údajů (jméno, telefon, e-mail, ip adresa) společnosti B3 Technology, s.r.o., IČ: 07330600, se sídlem Novostavby 126/23, 435 11 Lom (správce dat), za účelem předání dotazu z tohoto formuláře Vámi vybranému inzerentovi a zpětného kontaktování mé osoby. Osobní údaje bude správce zpracovávat manuálně i automaticky přímo prostřednictvím svých zaměstnanců. Informace předané tímto formulářem budou uloženy v databázi správce maximálně po dobu 10 let. Odvolání souhlasu s uložením a zpracováním poskytnutých dat lze e-mailem na info@vitio.cz. V případě podezření na neoprávněné použití Vámi poskytnutých údajů máte právo předat podnět k šetření Úřadu pro ochranu osobních údajů. Více informací
Chystáte se prodat nemovitost?
Pomůžeme Vám!

Inzerát si prohlédlo 0 lidí

Prodejce

Ondřej Kolář

Ondřej Kolář

Hlídací pes

Chcete dostávat emailem podobné nabídky prodeje bytů 2+1 v České Třebové?

Podobné nemovitosti