Pronájem výrobních prostor, Tuchoměřice, Ke Kopanině, 1416 m2 (ID: 2511242)

Ke Kopanině, Tuchoměřice

Cena na vyžádání /za metr čtvereční / měsíc Získejte výhodnou HYPOTÉKU
Exkluzivní partneři v Tuchoměřicích

Informace k nemovitosti

Pronájem skladu, výrobních prostor 1416 m² Tuchoměřice.
V zastoupení majitele a bez provize nabízíme industriální prostory vhodné pro sklad nebo výrobu, umístěné na strategickém místě nedaleko Letiště Václava Havla, s výbornou dostupností na dálnici D7 a do Prahy.

- výrobní prostory, logistické centrum, sídla firem, výzkumné prostory, školící centra a kanceláře
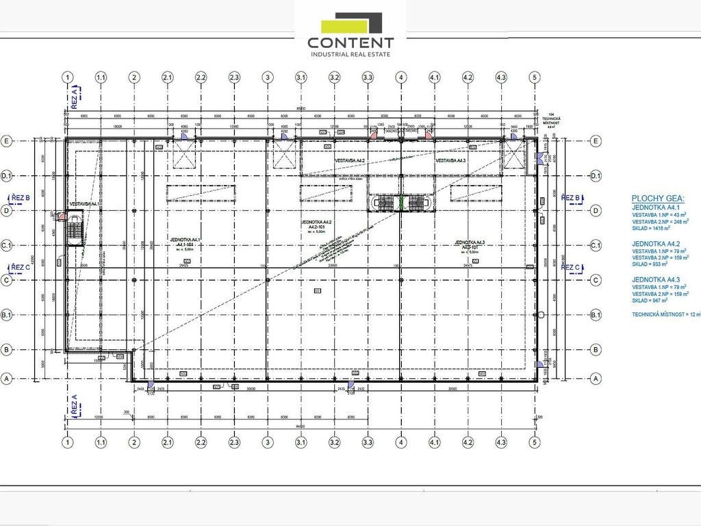
- hala (A4) 3296 m² ve výstavbě, k dispozici 02/2026
- světlá výška od 5 m
- nosnost podlahy minimálně 5 t/m²
- 3 vjezdy v úrovni vozovky
- LED osvětlení, sprinklery
- moderní, úsporná budova s certifikátem udržitelnosti BREEAM
- kancelářské a sociální zázemí dle potřeby
- objekt je možné rozdělit na samostatné jednotky:
• 947 m² skladové plochy + kanceláře
• 933 m² skladové plochy + kanceláře
• 1 416 m² skladové plochy + kanceláře
- oplocený areál s ostrahou

Cena bude stanovena dle dalších požadavků individuálně.
Fotografie jsou pouze ilustrativní. Pro více informací nás kontaktujte.

Parametry nemovitosti

Cena
Cena na vyžádání
Aktualizováno
14. 11. 2025
Adresa
Ke Kopanině, Tuchoměřice
ID
N6021
Stavba
Skeletová
Stav objektu
Novostavba
Typ objektu
Přízemní
Užitná plocha
1416 m2
Třída energetické náročnosti
C - Úsporná
Parkování

Kontaktovat makléře

Realitní kancelář

Logo CONTENT REALITY s.r.o.

CONTENT REALITY s.r.o.

Průmyslová 1472/11, Praha 10

Chystáte se prodat nemovitost?
Pomůžeme Vám!

Máte zájem o tuto nemovistost?

Tímto, v souladu s nařízením Evropského parlamentu a Rady (EU) 2016/679, v platném znění, prohlašuji, že mi je alespoň 16 let a uděluji tak svůj souhlas se zpracováním zadaných údajů (jméno, telefon, e-mail, ip adresa) společnosti B3 Technology, s.r.o., IČ: 07330600, se sídlem Novostavby 126/23, 435 11 Lom (správce dat), za účelem předání dotazu z tohoto formuláře Vámi vybranému inzerentovi a zpětného kontaktování mé osoby. Osobní údaje bude správce zpracovávat manuálně i automaticky přímo prostřednictvím svých zaměstnanců. Informace předané tímto formulářem budou uloženy v databázi správce maximálně po dobu 10 let. Odvolání souhlasu s uložením a zpracováním poskytnutých dat lze e-mailem na info@vitio.cz. V případě podezření na neoprávněné použití Vámi poskytnutých údajů máte právo předat podnět k šetření Úřadu pro ochranu osobních údajů. Více informací
Chystáte se prodat nemovitost?
Pomůžeme Vám!

Inzerát si prohlédlo 8 lidí

Prodejce

Matěj Ježek

Matěj Ježek

Hlídací pes

Chcete dostávat emailem podobné nabídky pronájmu výrobních prostor v Tuchoměřicích?

Podobné nemovitosti