Pronájem skladu, Ostrava, Teslova, 348 m2

Teslova, Ostrava, Přívoz

43 500 Kč /za měsíc Získejte výhodnou HYPOTÉKU

(Nájem+ energie a služby účtovány podle způsobu využití)

Exkluzivní partneři v Ostravě

Informace k nemovitosti

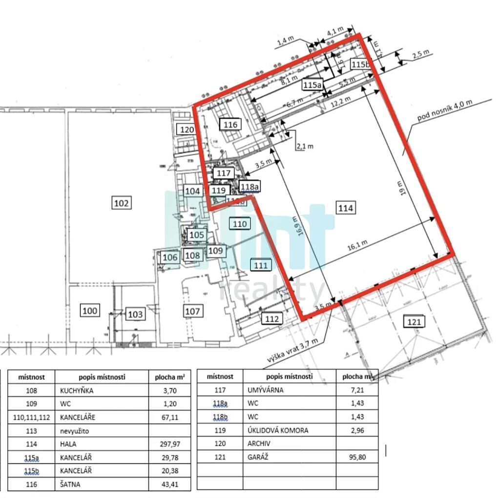
Nabízíme k pronájmu výrobní a skladové prostory v zázemí zateplené zděné budovy. Prostory jsou k dispozici od 31.03.2026. Při domluvě lze potenciálně prostory uvolnit dříve.

Celková pronajímatelná plocha činí 348 m². Tato plocha je rozdělena na halu o velikosti 298 m² a 2 kancelářské prostory o celkové velikosti 50 m² (kancelář A má 20 m², kancelář B má 30 m²). Hala má výšku vrat 3,7 m a výšku pod nosníky 4,0 m.

Měsíční nájemné je stanoveno na 43.500 Kč/měsíc bez DPH. K dispozici k pronájmu jsou také 3 parkovací místa , každé za 400 Kč/ měsíc bez DPH či reklamní plocha za 100 Kč/měsíc. V rámci paušálních služeb je zajištěna strážní služba, úklid venkovních prostor, odvoz odpadu, odhrnování sněhu a správa objektu. Energie (voda, elektřina, vytápění) i služby jsou účtovány formou záloh dle domluveného způsobu využití. Sdílené šatny a toalety budou účtovány dle počtu osob 1.400,- Kč/ měsíc s DPH na osobu.

Vratná jistota (kauce) činí 2 měsíční nájmy včetně služeb. Provize makléře je stanovena na 26.000,- Kč.

V případě zájmu či bližších informací neváhejte kontaktovat makléřku.

Parametry nemovitosti

Cena
43 500 Kč /za měsíc
Poznámka k ceně
Nájem+ energie a služby účtovány podle způsobu využití
Aktualizováno
14. 11. 2025
Adresa
Teslova, Ostrava, Přívoz
ID
0729
Stavba
Cihlová
Stav objektu
Velmi dobrý
Vybaveno
Ne
Lokalita objektu
Centrum obce
Užitná plocha
348 m2
Třída energetické náročnosti
G - Mimořádně nehospodárná
Elektřina
230V, 400V
Odpad
Veřejná kanalizace
Komunikace
Asfaltová
Telekomunikace
Kabelové rozvody
Doprava
Dálnice, Silnice, MHD
Voda
Vodovod
Topné těleso
Radiátory
Parkování

Kontaktovat makléře

Realitní kancelář

MINT reality s.r.o.

náměstí Antonie Bejdové 1810/10, Ostrava

Chystáte se prodat nemovitost?
Pomůžeme Vám!

Máte zájem o tuto nemovistost?

Tímto, v souladu s nařízením Evropského parlamentu a Rady (EU) 2016/679, v platném znění, prohlašuji, že mi je alespoň 16 let a uděluji tak svůj souhlas se zpracováním zadaných údajů (jméno, telefon, e-mail, ip adresa) společnosti B3 Technology, s.r.o., IČ: 07330600, se sídlem Novostavby 126/23, 435 11 Lom (správce dat), za účelem předání dotazu z tohoto formuláře Vámi vybranému inzerentovi a zpětného kontaktování mé osoby. Osobní údaje bude správce zpracovávat manuálně i automaticky přímo prostřednictvím svých zaměstnanců. Informace předané tímto formulářem budou uloženy v databázi správce maximálně po dobu 10 let. Odvolání souhlasu s uložením a zpracováním poskytnutých dat lze e-mailem na info@vitio.cz. V případě podezření na neoprávněné použití Vámi poskytnutých údajů máte právo předat podnět k šetření Úřadu pro ochranu osobních údajů. Více informací
Chystáte se prodat nemovitost?
Pomůžeme Vám!

Inzerát si prohlédlo 0 lidí

Prodejce

Tereza Štrochová

Tereza Štrochová

Hlídací pes

Chcete dostávat emailem podobné nabídky pronájmu skladů v Ostravě?

Podobné nemovitosti