Pronájem kanceláře, České Budějovice - České Budějovice 3, Pražská tř., 258 m2

Pražská tř., České Budějovice 3

45 000 Kč /za měsíc Získejte výhodnou HYPOTÉKU
Exkluzivní partneři v Českých Budějovicích

Informace k nemovitosti

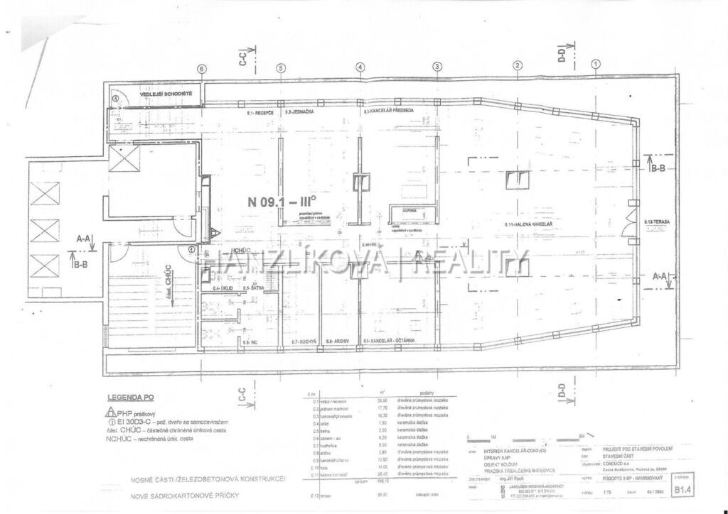
Rada města České Budějovice vyhlašuje výběrové řízení na přenechání nebytového prostoru do nájmu v objektu Pražská tř. 19 (bývalá kavárna Perla). Jedná se o luxusní kancelářské prostory s terasou v posledním patře, se samostatným vchodem a výtahem do nebytových prostor, hala, recepce, archiv, soc. zařízení, kanceláře, sklady a ostatní prostory. Celková výměra prostor je cca 257,70 m2.
Podmínky: prostor bude pronajat na dobu neurčitou za nájemné dle nabídky, s tříměsíční výpovědní lhůtou a valorizační doložkou. Budoucí nájemce je povinen před podpisem nájemní smlouvy uhradit peněžitou jistotu ve výši tří měsíčních nájmů bez záloh spojených s nájmem prostoru.
Minimální výše nájemného byla stanovena na částku 45.000,-Kč/měsíc.
Přihlíška musí obsahovat:
- žádost o pronájem nebytového prostoru
- čestné prohlášení žadatele a jeho statutárního orgánu
- koncept využití nebytového prostoru
- reference žadatele
- výpis registru živnostenského podnikání/výpis z veřejného rejstříku
- potvrzení o bezdlužnosti vůči statutárnímu městu České Budějovice
Věškeré podrobnosti týkající se výběrového řízení, kritéria výběru a prohlídky prostor si lze domluvit výhradně na SPRÁVĚ DOMŮ s.r.o., kontakt naleznete internetových stránkách www.sdcb.cz.

Parametry nemovitosti

Cena
45 000 Kč /za měsíc
Aktualizováno
13. 11. 2025
Adresa
Pražská tř., České Budějovice 3
ID
0000003289
Stavba
Cihlová
Stav objektu
Po rekonstrukci
Patro
9. z 9
Typ objektu
Patrový
Lokalita objektu
Centrum obce
Užitná plocha
258 m2
Podlahová plocha
258 m2
Třída energetické náročnosti
E - Nehospodárná
Elektřina
230V
Odpad
Veřejná kanalizace
Komunikace
Asfaltová
Doprava
Vlak, Silnice, MHD, Autobus
Voda
Vodovod
Terasa
Výtah
Bezbarierový přístup

Kontaktovat makléře

Máte zájem o tuto nemovistost?

Tímto, v souladu s nařízením Evropského parlamentu a Rady (EU) 2016/679, v platném znění, prohlašuji, že mi je alespoň 16 let a uděluji tak svůj souhlas se zpracováním zadaných údajů (jméno, telefon, e-mail, ip adresa) společnosti B3 Technology, s.r.o., IČ: 07330600, se sídlem Novostavby 126/23, 435 11 Lom (správce dat), za účelem předání dotazu z tohoto formuláře Vámi vybranému inzerentovi a zpětného kontaktování mé osoby. Osobní údaje bude správce zpracovávat manuálně i automaticky přímo prostřednictvím svých zaměstnanců. Informace předané tímto formulářem budou uloženy v databázi správce maximálně po dobu 10 let. Odvolání souhlasu s uložením a zpracováním poskytnutých dat lze e-mailem na info@vitio.cz. V případě podezření na neoprávněné použití Vámi poskytnutých údajů máte právo předat podnět k šetření Úřadu pro ochranu osobních údajů. Více informací
Chystáte se prodat nemovitost?
Pomůžeme Vám!

Inzerát si prohlédlo 1 lidí

Prodejce

Lenka Michalová (Klimešová)

Lenka Michalová (Klimešová)

Hlídací pes

Chcete dostávat emailem podobné nabídky pronájmu kanceláří v Českých Budějovicích?

Podobné nemovitosti