Prodej bytu 2+1, Prostějov, Jana Zrzavého, 56 m2

Jana Zrzavého, Prostějov

3 670 000 Kč HYPOTÉKA od 16 403 Kč /za měsíc

(měsíční poplatky včetně provize RK)

Exkluzivní partneři v Prostějově

Informace k bytu

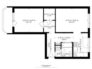
Prodej 2+1 na ulici Jana Zrzavého v Prostějově

Tento prostorný byt v Prostějově na ulici Jana Zrzavého je skvělou příležitostí pro ty, kteří hledají pohodlné a moderní bydlení. Nachází se v 1. patře panelového domu s výtahem, který pro vás bude praktickým pomocníkem při přenášení těžších nákupů nebo při cestě s kočárkem.

Již při vstupu do domu vás překvapí jeho moderní vzhled. V roce 2003 prošel totiž kompletní rekonstrukcí, při které byla vyměněna střecha, zateplení a byla přistavěna prostorná lodžie. Dům tak nabízí nejen moderní vzhled, ale i skvělou tepelnou izolaci, což se projeví na nižších nákladech na topení.

Samotný byt prošel v roce 2008 částečnou rekonstrukcí, při které bylo vyměněno zděné jádro. Všechny prostory jsou vybaveny plovoucí podlahou, která dodává bytu moderní vzhled a zároveň je snadno udržovatelná. V koupelně najdete dlažbu a obklady, které jsou odolné vůči vlhkosti a snadno se čistí.

V bytě se nachází vlastní kotelna, což znamená, že můžete ovlivnit výši nákladů na topení. Pro každý byt jsou také instalovány měřáky na topení a termoregulační ventily, díky kterým můžete snížit náklady na vytápění. Měsíční náklady na bydlení, včetně vody, topení a elektřiny, jsou tak pro dvě osoby přibližně 6000 Kč.

Pokud se vám líbí tento byt, ale nemáte dostatek financí na jeho koupi, nemusíte se bát. Zajistíme pro vás výhodné financování družstevního bydlení, díky kterému se můžete stát majitelem tohoto krásného bytu.

Prostorný byt 2+1 na ulici Jana Zrzavého v Prostějově je ideální volbou pro ty, kteří hledají moderní a pohodlné bydlení v klidné lokalitě. Nejenže nabízí skvělou polohu a nízké náklady na bydlení, ale také moderní vybavení a možnost vlastnictví díky výhodnému financování. Nechte se okouzlit tímto bytem a kontaktujte nás pro bližší informace.

Parametry bytu

Cena
3 670 000 Kč Spočítat hypotéku
Poznámka k ceně
měsíční poplatky včetně provize RK
Aktualizováno
13. 11. 2025
Adresa
Jana Zrzavého, Prostějov
ID
30
Stavba
Panelová
Stav objektu
Po rekonstrukci
Vybaveno
Ne
Vlastnictví
Družstevní
Užitná plocha
56 m2
Třída energetické náročnosti
C - Úsporná

Kontaktovat makléře

Máte zájem o tento byt?

Tímto, v souladu s nařízením Evropského parlamentu a Rady (EU) 2016/679, v platném znění, prohlašuji, že mi je alespoň 16 let a uděluji tak svůj souhlas se zpracováním zadaných údajů (jméno, telefon, e-mail, ip adresa) společnosti B3 Technology, s.r.o., IČ: 07330600, se sídlem Novostavby 126/23, 435 11 Lom (správce dat), za účelem předání dotazu z tohoto formuláře Vámi vybranému inzerentovi a zpětného kontaktování mé osoby. Osobní údaje bude správce zpracovávat manuálně i automaticky přímo prostřednictvím svých zaměstnanců. Informace předané tímto formulářem budou uloženy v databázi správce maximálně po dobu 10 let. Odvolání souhlasu s uložením a zpracováním poskytnutých dat lze e-mailem na info@vitio.cz. V případě podezření na neoprávněné použití Vámi poskytnutých údajů máte právo předat podnět k šetření Úřadu pro ochranu osobních údajů. Více informací
Chystáte se prodat nemovitost?
Pomůžeme Vám!

Inzerát si prohlédlo 1 lidí

Prodejce

Mgr. Jan Hrbek

Mgr. Jan Hrbek

Hlídací pes

Chcete dostávat emailem podobné nabídky prodeje bytů 2+1 v Prostějově?

Podobné nemovitosti