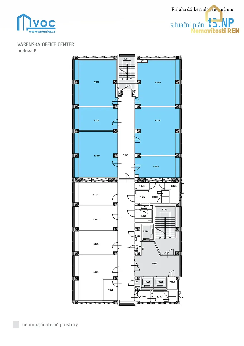
Pronájem kanceláře, Ostrava, Varenská, 275 m2

Varenská, Moravská Ostrava

73 195 Kč /za měsíc Získejte výhodnou HYPOTÉKU

(+ služby a energie 49 562,- Kč)

Exkluzivní partneři v Ostravě

Informace k nemovitosti

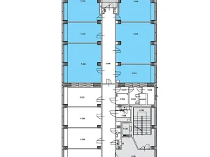
Moderní a atraktivní prostředí nabízí kancelářské prostory o celkové ploše 275 m², které se nacházejí ve 13. patře administrativní budovy.
Jedná se o oddělený kancelářský celek, který tvoří 4 kanceláře o velikosti cca 40 m² a 2 kanceláře o velikosti cca 20 m², doplněné o společné prostory – chodbu a sociální zázemí.
Preferován je pronájem celého prostoru jako jednoho celku.
Přístup do objektu je zajištěn schodištěm i výtahy.
Bezpečnost budovy zaručuje non-stop bezpečnostní služba, kontrolovaný vstup přes recepci s nepřetržitým provozem a elektronické zabezpečení celého objektu.
Kanceláře jsou klimatizované, světlé a nabízejí krásný výhled na Ostravu. Jsou vybaveny hliníkovými žaluziemi a rozvody PC sítí a internetu. V jedné z místností je umístěna kuchyňská linka.
V okolí je veškerá občanská vybavenost, včetně nákupního centra Futurum, restaurací i služeb. Výborná je rovněž dopravní dostupnost – v blízkosti se nachází zastávky MHD (tramvaj, autobus, trolejbus) i přímé napojení na hlavní silniční tahy a dálnici.

Cena nájmu: 265,83 Kč / m² / měsíc/ bez DPH
Služby a energie: 180 Kč / m² / měsíc / bez DPH

Pokud Vás tato nabídka zaujala, neváhejte mě kontaktovat.
Těším se na Vás na společné prohlídce!

Parametry nemovitosti

Cena
73 195 Kč /za měsíc
Poznámka k ceně
+ služby a energie 49 562,- Kč
Aktualizováno
12. 11. 2025
Adresa
Varenská, Moravská Ostrava
ID
N00243
Stavba
Skeletová
Stav objektu
Velmi dobrý
Lokalita objektu
Centrum obce
Užitná plocha
275 m2
Podlahová plocha
275 m2
Třída energetické náročnosti
C - Úsporná
Elektřina
230V
Odpad
Veřejná kanalizace
Komunikace
Asfaltová
Telekomunikace
Internet, Kabelové rozvody
Doprava
Vlak, Dálnice, Silnice, MHD, Autobus
Voda
Vodovod

Kontaktovat makléře

Máte zájem o tuto nemovistost?

Tímto, v souladu s nařízením Evropského parlamentu a Rady (EU) 2016/679, v platném znění, prohlašuji, že mi je alespoň 16 let a uděluji tak svůj souhlas se zpracováním zadaných údajů (jméno, telefon, e-mail, ip adresa) společnosti B3 Technology, s.r.o., IČ: 07330600, se sídlem Novostavby 126/23, 435 11 Lom (správce dat), za účelem předání dotazu z tohoto formuláře Vámi vybranému inzerentovi a zpětného kontaktování mé osoby. Osobní údaje bude správce zpracovávat manuálně i automaticky přímo prostřednictvím svých zaměstnanců. Informace předané tímto formulářem budou uloženy v databázi správce maximálně po dobu 10 let. Odvolání souhlasu s uložením a zpracováním poskytnutých dat lze e-mailem na info@vitio.cz. V případě podezření na neoprávněné použití Vámi poskytnutých údajů máte právo předat podnět k šetření Úřadu pro ochranu osobních údajů. Více informací
Chystáte se prodat nemovitost?
Pomůžeme Vám!

Inzerát si prohlédlo 11 lidí

Prodejce

Mgr. Renata Valicová

Mgr. Renata Valicová

Hlídací pes

Chcete dostávat emailem podobné nabídky pronájmu kanceláří v Ostravě?

Podobné nemovitosti