Prodej rodinného domu, Hať, Lipová, 250 m2 (ID: 2508285)

Lipová, Hať

6 990 000 Kč /za nemovitost HYPOTÉKA od 31 241 Kč /za měsíc
Exkluzivní partneři v Hati

Informace k domu

Prodej dvougeneračního RD v Hati, ul. Lipová

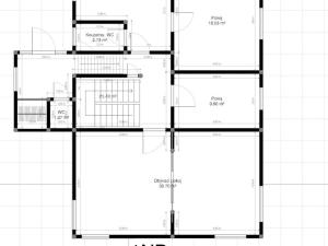
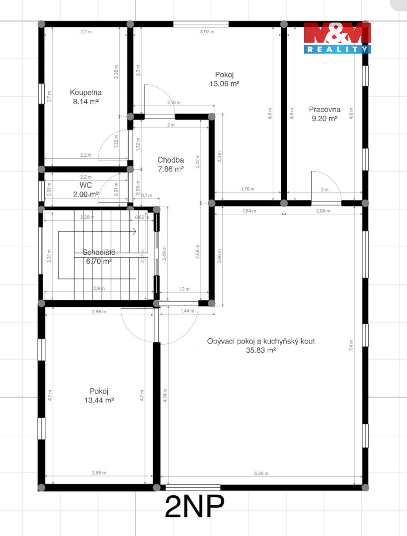
Nabízíme k prodeji dvougenerační RD, nacházející se v obci Hať, poblíž Česko-Polské hranice. Dům prošel v letech 2015 a 2019 nákladnou rekonstrukcí exteriéru i interiéru. Patra jsou propojena betonovým schodištěm a v každém se nachází samostatná bytová jednotka, 4+kk a 4+1. Byt. jednotka v 2NP je opatřena posuvnými dveřmi a skýtá dostatek soukromí. Vytápění a ohřev vody zajišťuje kondenzační kotel, ve 2NP také el. bojler. Kuchyně jsou vybaveny vestavěnými spotřebiči, které jsou součástí prodeje. Dům disponuje udržovaným suterénem s dílnou, kotelnou, prádelnou a letní kuchyní. Zděná garáž má parkovací kapacitu pro dva vozy. Pozemek, s udržovanou zahradou, je oplocený a noví majitelé jistě ocení el. bránu s d.o. pro pohodlný příjezd. V obci naleznete MŠ, ZŠ, poštu, obchody, zastávky autobusu s přímým spojem do Hlučína, což jistě přispívá ke komfortu bydlení. Dům je ve výborném stavu a kupující se mohou nastěhovat bez dalších investic na jaře 2026. Více informací Vám sdělíme na prohlídce

Parametry domu

Cena
6 990 000 Kč /za nemovitost Spočítat hypotéku
Aktualizováno
12. 11. 2025
Adresa
Lipová, Hať
ID
923916
Stavba
Smíšená
Stav objektu
Po rekonstrukci
Vybaveno
Ne
Druh objektu
Samostatný
Lokalita objektu
Klidná část obce
Vlastnictví
Osobní
Užitná plocha
250 m2
Plocha pozemku
956 m2

Kontaktovat makléře

Realitní kancelář

Logo M&M reality

M&M reality

ulice Krakovská 583/9, Praha

Chystáte se prodat nemovitost?
Pomůžeme Vám!

Máte zájem o tento dům?

Tímto, v souladu s nařízením Evropského parlamentu a Rady (EU) 2016/679, v platném znění, prohlašuji, že mi je alespoň 16 let a uděluji tak svůj souhlas se zpracováním zadaných údajů (jméno, telefon, e-mail, ip adresa) společnosti B3 Technology, s.r.o., IČ: 07330600, se sídlem Novostavby 126/23, 435 11 Lom (správce dat), za účelem předání dotazu z tohoto formuláře Vámi vybranému inzerentovi a zpětného kontaktování mé osoby. Osobní údaje bude správce zpracovávat manuálně i automaticky přímo prostřednictvím svých zaměstnanců. Informace předané tímto formulářem budou uloženy v databázi správce maximálně po dobu 10 let. Odvolání souhlasu s uložením a zpracováním poskytnutých dat lze e-mailem na info@vitio.cz. V případě podezření na neoprávněné použití Vámi poskytnutých údajů máte právo předat podnět k šetření Úřadu pro ochranu osobních údajů. Více informací
Chystáte se prodat nemovitost?
Pomůžeme Vám!

Inzerát si prohlédlo 1 lidí

Prodejce

Ivana Štrajtová

Ivana Štrajtová

Hlídací pes

Chcete dostávat emailem podobné nabídky prodeje rodinných domů v Hati?

Podobné nemovitosti