Prodej kanceláře, Rokycany, Sokolská, 413 m2

Sokolská, Rokycany, Plzeňské Předměstí

17 700 000 Kč /za nemovitost HYPOTÉKA od 79 108 Kč /za měsíc
Exkluzivní partneři v Rokycanech

Podlahy

Stěhovací služby

Informace k nemovitosti

Představuji k prodeji minipivovar U Stočesů s fungující restaurací v Rokycanech na adrese Sokolská 282.

Podívejte se na samostatnou stránku pivovaru viz odkaz ve videoprohlídce.
Kompletní představu o dispozici a prostorovém uspořádání získáte z 3D virtuální prohlídky zde v inzerci.

Lokalita:
Budova minipivovaru a restaurace i s přilehlými okolními pozemky je umístěna v západní části města v klidné vilové čtvrti u Rakovského potoka. Díky velmi dobré dostupnosti je vyhledávaným cílem jak pro pěší návštěvníky, tak i pro cyklisty. Blízko je autobusová zastávka, park U Rakováčku a pěšky lze za 10 min. dojít na vlakové nádraží Rokycany.

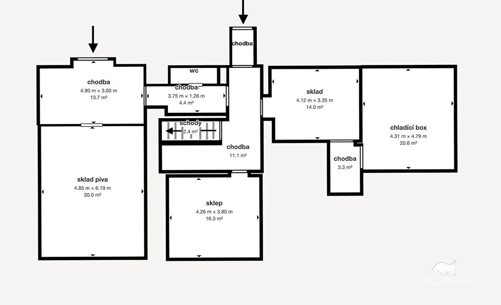
Dispozice:
Dům má 1 podzemní sklepní podlaží a 2 nadzemní.
V skelpních prostorech je vybudováno rozsáhlé zázemí pro výrobu, zrání, chlazení a sklad piva.
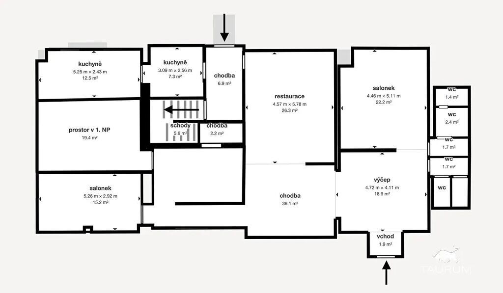
V přízemí je restaurace, výčep, hlavní sál, dva salónky, WC, nově přistavěná kuchyně a částečně i prostor pro výrobu a prezentaci piva.
V patře jsou další místnosti, které je možné využívat po provedení rekonstrukce jako obytný prostor o dispozici 3+1 s koupelnou a WC. V současné době je užívaný jako sklad.
Kromě vnitřního schodiště je již vydáno i stavební povolení k vybudování samostatného schodiště do patra s přístupem ze zahrady.

Venkovní prostory zahrnují místo pro posezení, petanqová hřiště a vzadu prostor pro vjezd zásobování.

Technické informace:
Dům je ve velmi dobrém stavu. V roce 2011 a 2017 proběhla rekonstrukce budovy.
Jedná se o cihlovou stavbu. Okna jsou dřevěná s dvojskly. Na střeše jsou pálené střešní tašky.
Do domu jsou zavedeny všechny inženýrské sítě: plyn, elektřina, obecní vodovod i kanalizace. Na střeše jsou navíc fotovoltaické panely. Hlavní jistič má hodnotu 63 A.
Na pozemku je také kopaná studna, která se nyní nevyužívá. Ve vnitřních prostorech je výkonná vzduchotechnika.

Stavbu je možné dále využívat na provozování restaurace a pivovaru a pokračovat v zaběhlém provozu.
Další možnosti by byly například jako sídlo firmy, kancelářská budova, ateliér, vzdělávací centrum apod...

Pro prodej domu zajistím kompletní realitní a právní servis.
Kontaktujte mě, prosím, pro domluvení prohlídky:
Jan Štěpánek
TAURUM reality

PENB je nyní v přípravě, proto uvádíme třídu G.
Uvedené výměry jsou orientační.

Parametry nemovitosti

Cena
17 700 000 Kč /za nemovitost Spočítat hypotéku
Aktualizováno
12. 11. 2025
Adresa
Sokolská, Rokycany, Plzeňské Předměstí
ID
250174
Stavba
Cihlová
Stav objektu
Velmi dobrý
Užitná plocha
413 m2
Zastavěná plocha
525 m2
Podlahová plocha
500 m2
Třída energetické náročnosti
G - Mimořádně nehospodárná
Elektřina
230V, 400V
Plyn
Plynovod
Odpad
Veřejná kanalizace
Komunikace
Asfaltová
Doprava
Vlak, Dálnice, Silnice, Autobus
Voda
Vodovod
Topné těleso
Radiátory, Kotel na tuhá paliva
Zdroj topení
Plynový kotel

Kontaktovat makléře

Realitní kancelář

TAURUM reality s.r.o.

Americká 1139/1, Plzeň, Jižní Předměstí

Chystáte se prodat nemovitost?
Pomůžeme Vám!

Máte zájem o tuto nemovistost?

Tímto, v souladu s nařízením Evropského parlamentu a Rady (EU) 2016/679, v platném znění, prohlašuji, že mi je alespoň 16 let a uděluji tak svůj souhlas se zpracováním zadaných údajů (jméno, telefon, e-mail, ip adresa) společnosti B3 Technology, s.r.o., IČ: 07330600, se sídlem Novostavby 126/23, 435 11 Lom (správce dat), za účelem předání dotazu z tohoto formuláře Vámi vybranému inzerentovi a zpětného kontaktování mé osoby. Osobní údaje bude správce zpracovávat manuálně i automaticky přímo prostřednictvím svých zaměstnanců. Informace předané tímto formulářem budou uloženy v databázi správce maximálně po dobu 10 let. Odvolání souhlasu s uložením a zpracováním poskytnutých dat lze e-mailem na info@vitio.cz. V případě podezření na neoprávněné použití Vámi poskytnutých údajů máte právo předat podnět k šetření Úřadu pro ochranu osobních údajů. Více informací
Chystáte se prodat nemovitost?
Pomůžeme Vám!

Inzerát si prohlédlo 1 lidí

Prodejce

Jan Štěpánek

Jan Štěpánek

Hlídací pes

Chcete dostávat emailem podobné nabídky prodeje kanceláří v Rokycanech?

Podobné nemovitosti