Prodej bytu 1+1, Pardubice - Zelené Předměstí, Železničního pluku, 40 m2

Železničního pluku, Pardubice, okres pardubice, Pardubice V

4 190 000 Kč /za nemovitost HYPOTÉKA od 18 727 Kč /za měsíc
Exkluzivní partneři v Pardubicích

Informace k bytu

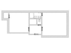
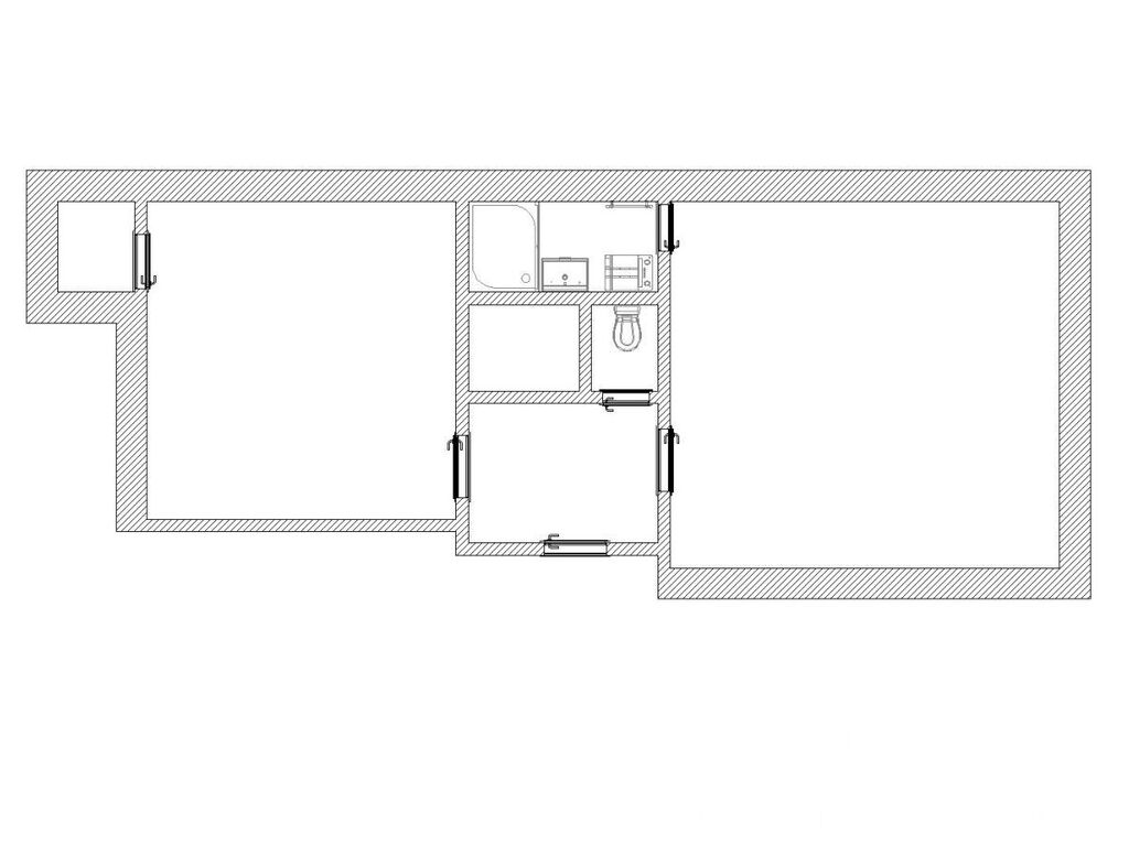
Byt 1+1 s možností úpravy na 2+kk, cihla, sklep, Pardubice – Železničního pluku
Hledáte byt, který si můžete přetvořit podle svých představ – pro sebe, nebo jako investici? Tento byt v cihlovém domě na ulici Železničního pluku v Pardubicích nabízí přesně takovou příležitost.

Dispozice 1+1 umožňuje úpravu na 2+kk. Byt se nachází v přízemí, cca 49m2, sklep (cca 7 m²) a praktickou komoru přímo v bytě. Koupelna je vybavena vanou, toaleta je samostatná. Topení zajišťují plynová kamna WAW, ohřev vody bojler. Provozní náklady jsou přitom velmi nízké – pouhých 1 600 Kč měsíčně + elektřina a plyn.

Nemovitost je v původním, udržovaném stavu, připravená na rekonstrukci dle Vašeho vkusu. Díky tomu získáte možnost vytvořit si příjemné bydlení s vlastním charakterem nebo zhodnotit investici do nájemního bytu.

V galerii najdete i vizualizaci jak by mohly vypadat varianty bytu po rekonstrukci 1+1 nebo 2+kk...

Ulice Železničního pluku leží v širším centru Pardubic – jen pár minut od hlavního nádraží i samotného srdce města. V okolí najdete obchody, kavárny, služby, školy i zastávky MHD. Lokalita tak nabízí skvělou dostupnost pro každodenní život i stabilní poptávku po pronájmu.

Byt je v osobním vlastnictví a díky svým parametrům má potenciál stát se buď ideálním startovacím bydlením, nebo jistou investicí s dlouhodobým výnosem.

➡ Napište si o termín prohlídky – domluvíme termín a byt Vám osobně představím.

Parametry bytu

Cena
4 190 000 Kč /za nemovitost Spočítat hypotéku
Aktualizováno
11. 11. 2025
Adresa
Železničního pluku, Pardubice, okres pardubice, Pardubice V
ID
970424
Stavba
Cihlová
Stav objektu
Dobrý
Patro
1. z 4
Vybaveno
Ne
Vlastnictví
Osobní
Užitná plocha
40 m2
Podlahová plocha
40 m2
Třída energetické náročnosti
G - Mimořádně nehospodárná
Elektřina
230V
Plyn
Plynovod
Voda
Vodovod
Sklep
Výtah

Kontaktovat makléře

Realitní kancelář

Logo EVROPA realitní kancelář

EVROPA realitní kancelář

Václavské náměstí 806/62, Praha

Chystáte se prodat nemovitost?
Pomůžeme Vám!

Máte zájem o tento byt?

Tímto, v souladu s nařízením Evropského parlamentu a Rady (EU) 2016/679, v platném znění, prohlašuji, že mi je alespoň 16 let a uděluji tak svůj souhlas se zpracováním zadaných údajů (jméno, telefon, e-mail, ip adresa) společnosti B3 Technology, s.r.o., IČ: 07330600, se sídlem Novostavby 126/23, 435 11 Lom (správce dat), za účelem předání dotazu z tohoto formuláře Vámi vybranému inzerentovi a zpětného kontaktování mé osoby. Osobní údaje bude správce zpracovávat manuálně i automaticky přímo prostřednictvím svých zaměstnanců. Informace předané tímto formulářem budou uloženy v databázi správce maximálně po dobu 10 let. Odvolání souhlasu s uložením a zpracováním poskytnutých dat lze e-mailem na info@vitio.cz. V případě podezření na neoprávněné použití Vámi poskytnutých údajů máte právo předat podnět k šetření Úřadu pro ochranu osobních údajů. Více informací
Chystáte se prodat nemovitost?
Pomůžeme Vám!

Inzerát si prohlédlo 0 lidí

Prodejce

Roman Kasalý

Roman Kasalý

Hlídací pes

Chcete dostávat emailem podobné nabídky prodeje bytů 1+1 v Pardubicích?

Podobné nemovitosti