Prodej pozemku pro bydlení, Olomouc, Selské nám., 1038 m2

Selské nám., Olomouc, Chválkovice

6 500 000 Kč /za nemovitost HYPOTÉKA od 29 051 Kč /za měsíc

(Uvedená cena je včetně projektové dokumentace a stavebního povolení, právního servisu, provize RK)

Exkluzivní partneři v Olomouci

Informace k pozemku

Vyjímečná nabídka. Olomouc s geniem loci.
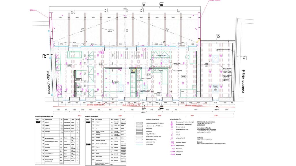
Stavební povolení na rodinnou rezidenci a ordinaci (možnost okamžité výstavby).
Selské náměstí — lokalita má charakter moravských dvorů s atmosférou řemesla, historie a klidu venkova.
Pozemek 1 038 m² se stavebním povolením — Olomouc, Chválkovice

Hlavní benefity:
Flexibilní projekt s vysokým investičním potenciálem
-rodinný dům ve stylu hanáckého statku
-sídlo firmy
-butikovou kliniku, lékaři
-centrum služeb
-komorní bytový dům (3 exkluzivní jednotky) se zahrádkami
-rezidenci pro studenty
-kombinaci bydlení a podnikání

Prestižní adresa v jedné z nejžádanějších lokalit Olomouce.
Dostupnost ke všem benefitům velkoměsta do pár minut.

Lokalita — Chválkovice

Diskrétní klid a přírodní okolí, zároveň skvělá dostupnost do centra Olomouce.
-bezprostřední blízkost přírody pod Svatým Kopečkem
-pěší dostupnost k lesům, cyklostezkám a rekreačním trasám
-historické fotbalové hřiště (1924)
-komunitní atmosféra (hasičská zbrojnice, lokální akce)
-kompletní městská infrastruktura, MHD, služby

Místo spojuje autenticitu tradiční vesnické zástavby s požadavky současného prémiového bydlení.

V těsné blízkosti pozemku leží Selské náměstí, historický prostor s tradičními statky a kaplí Panny Marie Pomocné.
Olomouc – Selské náměstí: perspektivní mikro-lokalita s růstovým potenciálem pro rezidenční i komerční investice

Strategická poloha
Selské náměstí tvoří kompaktní centrum městské části Chválkovice, která se dynamicky rozvíjí díky své poloze mezi historickým centrem Olomouce a hlavními dopravními tahy (Šternberk, D35). Lokalita kombinuje klid rezidenční čtvrti s rychlým dosahem městských služeb. To z ní činí zajímavé místo pro dlouhodobé i krátkodobé investiční záměry.

Rezidenční potenciál

Stabilně vysoká poptávka po bydlení v okrajových částech Olomouce, zejména v rodinné a nízkopodlažní zástavbě.
Lokalita je atraktivní pro rodiny i nájemníky hledající tiché prostředí s dobrou dostupností centra.
Blízkost školky, základní školy a služeb v docházkové vzdálenosti zvyšuje hodnotu nájemního i vlastnického bydlení.
Charakter území umožňuje menší developerské projekty, přestavby a nadstavby.

Komerční využití

Náměstí má tradiční návesní ráz s průběžnou občanskou vybaveností, což vytváří prostor pro rozšíření služeb – kanceláře, ateliéry, ordinace, gastro i komunitní provozy.
Dobrá dopravní dostupnost a možnost parkování jsou významným benefitem pro podnikání zaměřené na místní i dojíždějící klientelu.
Lokalita je vhodná pro menší retail či lokální služby s nízkou konkurencí v bezprostředním okolí.

Investiční výhled

Chválkovice jsou dlouhodobě stabilní čtvrtí s nízkou fluktuací obyvatel a postupnou modernizací.
Předpoklad růstu hodnoty nemovitostí díky pokračujícímu rozvoji severovýchodního segmentu města a blízkosti průmyslových zón i univerzitních pracovišť.
Nízká saturace trhu v této části Olomouce umožňuje nadprůměrnou návratnost investic, zejména u nájemního bydlení a menších komerčních projektů.

Shrnutí
Selské náměstí představuje vyváženou kombinaci klidného bydlení a komerčního potenciálu v oblasti, která si drží stabilní hodnotu a nabízí růstový prostor. Pro investory jde o bezpečnou a zároveň perspektivní lokalitu v rámci Olomouce.

Součástí ceny je kompletní projektová dokumentace od studia JECMEN.COM, připravená k okamžitému využití nebo úpravě dle požadavků investora.

Ráda Vám představím celý projekt osobně.
Zprostředkuji výhodné financování přes finančního experta.

Parametry pozemku

Cena
6 500 000 Kč /za nemovitost Spočítat hypotéku
Poznámka k ceně
Uvedená cena je včetně projektové dokumentace a stavebního povolení, právního servisu, provize RK
Aktualizováno
9. 11. 2025
Adresa
Selské nám., Olomouc, Chválkovice
Lokalita objektu
Klidná část obce
Plocha pozemku
1038 m2
Elektřina
400V
Plyn
Plynovod
Odpad
Veřejná kanalizace
Komunikace
Betonová, Dlážděná, Asfaltová
Doprava
Vlak, Dálnice, Silnice, MHD, Autobus
Voda
Místní zdroj vody, Vodovod, Studna

Kontaktovat makléře

Máte zájem o tento pozemek?

Tímto, v souladu s nařízením Evropského parlamentu a Rady (EU) 2016/679, v platném znění, prohlašuji, že mi je alespoň 16 let a uděluji tak svůj souhlas se zpracováním zadaných údajů (jméno, telefon, e-mail, ip adresa) společnosti B3 Technology, s.r.o., IČ: 07330600, se sídlem Novostavby 126/23, 435 11 Lom (správce dat), za účelem předání dotazu z tohoto formuláře Vámi vybranému inzerentovi a zpětného kontaktování mé osoby. Osobní údaje bude správce zpracovávat manuálně i automaticky přímo prostřednictvím svých zaměstnanců. Informace předané tímto formulářem budou uloženy v databázi správce maximálně po dobu 10 let. Odvolání souhlasu s uložením a zpracováním poskytnutých dat lze e-mailem na info@vitio.cz. V případě podezření na neoprávněné použití Vámi poskytnutých údajů máte právo předat podnět k šetření Úřadu pro ochranu osobních údajů. Více informací
Chystáte se prodat nemovitost?
Pomůžeme Vám!

Inzerát si prohlédlo 0 lidí

Prodejce

Jarmila Šulkovská

Jarmila Šulkovská

Hlídací pes

Chcete dostávat emailem podobné nabídky prodeje pozemků pro bydlení v Olomouci?

Podobné nemovitosti