Prodej bytu 3+kk, Sofie, Bulharsko, 85 m2

Sofie

343 500 € /za nemovitost
Exkluzivní partneři

Informace k bytu

Dovolujeme si Vám nabídnout na prodej luxusní apartmány ve výstavbě v centru hlavního města Bulharska v Sofii v docházkové vzdálenosti od všech historických památek a administrativních budov, obchodů, škol, parků, s pohodlným přístupem k nadzemní i podzemní dopravě umožňující rychlý přesun do jakéhokoli bodu hlavního města.

Majitelé apartmánů budou mít k dispozici uzavřenou parkovou plochu s rozmanitou vegetací, hřišti a rekreačními zónami o rozloze přes 800 m2. Přístup do budovy, podzemních podlaží, parkovacích stání, bude sledován nepřetržitým video dohledem a ostrahou. Apartmány v budově jsou prostorné s různými velikostmi a optimálním uspořádáním. V případě zájmu se nabízí možnost kombinovat apartmány a navrhovat individuální dispozice v závislosti na přáních a požadavcích každého klienta.

Na výběr jsou jednopokojové, dvoupokojové, třípokojové a čtyřpokojové apartmány a mezonet s přilehlými upravenými terasami. Apartmány v budově mají výhled na centrum Sofie a krásné pohoří Vitoša významné středisko zimních sportů a turistiky vůbec, zvedající se až do výšek přes 2 200 metrů, jehož úpatí začíná přímo v Sofii a kam se dostanete celoročně městskou dopravou.

Konstrukce budovy je monolitická železobetonová. Obvodové zdi jsou plánovány s výplní z cihel o tloušťce 25 cm. Vnitřní příčky budou vyplněny cihlami o tloušťce 12 cm. Tepelná izolace je plánována z desek z kamenné minerální vaty o tloušťce 12 cm. Fasáda budovy bude vyplněna cihlami klinker systém odolný vůči mrazu, mechanickému poškození a odolný vůči všem povětrnostním podmínkám. V obývacích pokojích a ložnicích bude instalováno potrubí pro klimatizaci. Všechny klimatizace mají předem určená místa instalace. Budova bude napojena na dálkové topení.

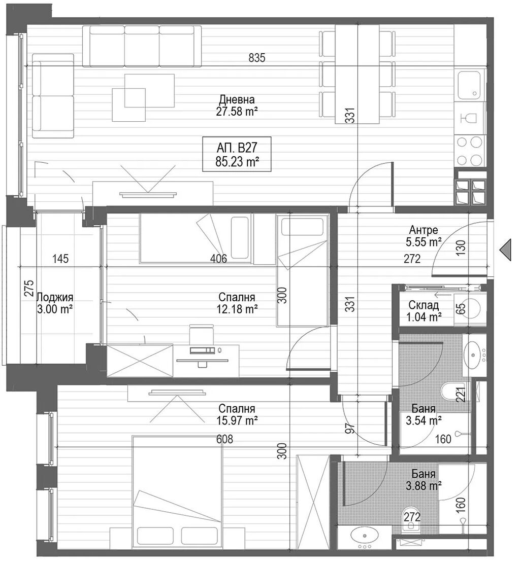
Apartmán V27 o celkové ploše 101, 03 m2 (85,23 zastavěná plocha + 15,80 m2 – společné částí) je umístěný v 6.podlaží devítipodlažní budovy a sestává z chodby, dvou koupelen, dvou ložnic, obývacího pokoje s přístupem na lodžii. Cena zahrnuje dokončený apartmán včetně vchodových dveří, omítnutých zdí, kabeláž pro klimatizaci, internet, TV, bez interiérových dveří, podlahové krytiny a sanity. Kupující si tak může interiér dokončit sám dle svých představ a vkusu. Na přání a konkrétního zadání kupujícího může interiér dokončit stavitel.

Budova nabízí 111 garáží a parkovacích míst pro pohodlné parkování. Majitelé garáží a parkovacích míst mají možnost instalace nabíjecí stanice pro elektromobily. Ceny garáží a parkovacích míst se pohybují od 29 000 € a garáží od 61 000 € dle velikosti a umístění.

V budově je více různě velikých apartmánů na prodej. Pro více informací nás neváhejte kontaktovat. Rádi Vám připravíme nabídku dle Vašeho zadání a poskytneme kompletní servis spojený s koupí a přepisem nemovitosti, tak abyste mohli bez problému zakoupit.

Parametry bytu

Cena
343 500 € /za nemovitost
Aktualizováno
7. 11. 2025
Adresa
Sofie
ID
BGSP-V27
Stavba
Smíšená
Stav objektu
Ve výstavbě
Patro
6. z 9
Vybaveno
Ne
Vlastnictví
Osobní
Užitná plocha
85 m2
Podlahová plocha
85 m2
Třída energetické náročnosti
G - Mimořádně nehospodárná
Odpad
Veřejná kanalizace
Voda
Vodovod
Lodžie
Výtah

Kontaktovat makléře

Máte zájem o tento byt?

Tímto, v souladu s nařízením Evropského parlamentu a Rady (EU) 2016/679, v platném znění, prohlašuji, že mi je alespoň 16 let a uděluji tak svůj souhlas se zpracováním zadaných údajů (jméno, telefon, e-mail, ip adresa) společnosti B3 Technology, s.r.o., IČ: 07330600, se sídlem Novostavby 126/23, 435 11 Lom (správce dat), za účelem předání dotazu z tohoto formuláře Vámi vybranému inzerentovi a zpětného kontaktování mé osoby. Osobní údaje bude správce zpracovávat manuálně i automaticky přímo prostřednictvím svých zaměstnanců. Informace předané tímto formulářem budou uloženy v databázi správce maximálně po dobu 10 let. Odvolání souhlasu s uložením a zpracováním poskytnutých dat lze e-mailem na info@vitio.cz. V případě podezření na neoprávněné použití Vámi poskytnutých údajů máte právo předat podnět k šetření Úřadu pro ochranu osobních údajů. Více informací
Chystáte se prodat nemovitost?
Pomůžeme Vám!

Inzerát si prohlédlo 11 lidí

Prodejce

Violeta Borisova

Violeta Borisova

Hlídací pes

Chcete dostávat emailem podobné nabídky prodeje bytů 3+kk?

Podobné nemovitosti