Prodej bytu 3+1, Most, Růžová, 56 m2 (ID: 2504557)

Růžová, Most

2 100 000 Kč /za nemovitost HYPOTÉKA od 9 386 Kč /za měsíc
Exkluzivní partneři v Mostě

Okna a dveře

Rekonstrukce

Zámečnické práce

Informace k bytu

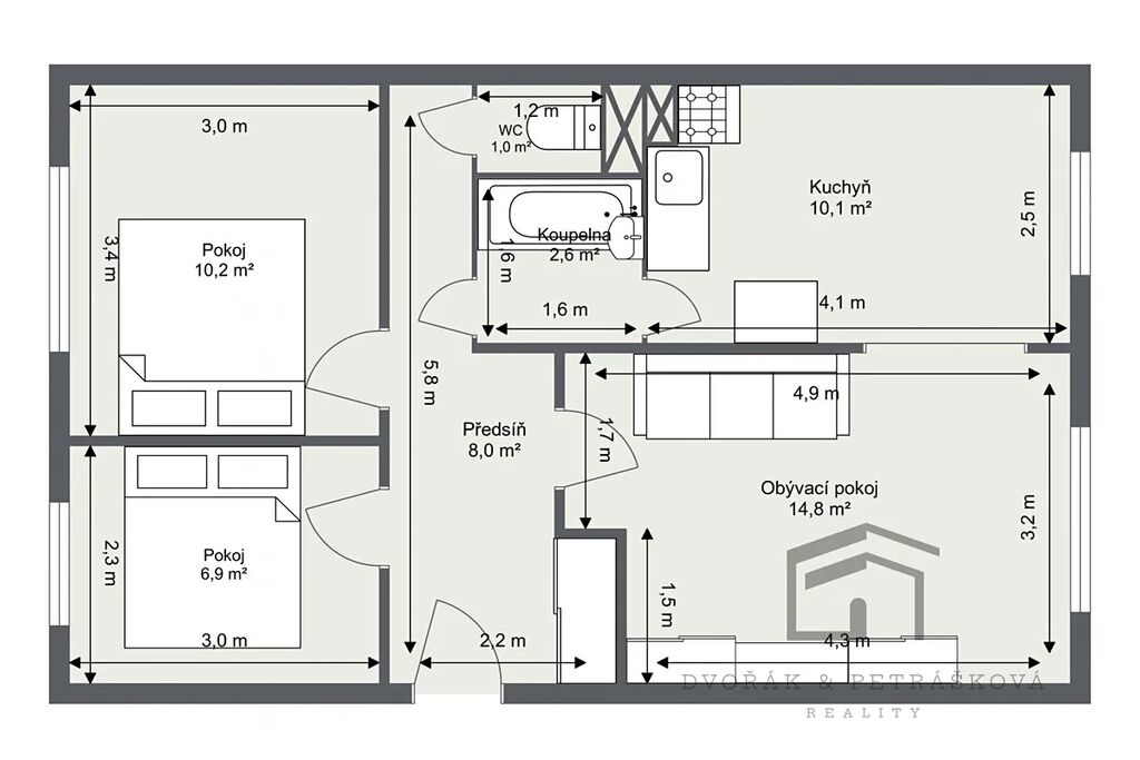
Realitní společnost Dvořák & Petrášková reality vám nabízí k prodeji byt v osobním vlastnictví 3+1 se sklepem a komorou na patře o celkové ploše 56 m2.

Bytová jednotka je ve stavu před rekonstrukcí a je umístěná v posledním, tedy 8.patře panelového domu s výtahem na adrese Růžová 3088/17. Na patře jsou pouze 3 byty s klidnými sousedy, kteří zde žijí řadu let. Byt disponuje předsíní s vestavěnými skříněmi, vstupy do dvou ložnic, obývacího pokoje, do koupelny a na toaletu. Na obývací pokoj navazuje oddělená kuchyně s místem na jídelní stůl a vstupem do koupelny.
Koupelna s vanou je v původním stavu s umakartovým jádrem a toaleta je umístěna samostatně. Rozvody elektřiny jsou původní, tedy v hliníku. Byt je vhodný k celkové rekonstrukci. Nábytek v nemovitosti můžeme ponechat či odvést, obojí v rámci kupní ceny. V bytě je plyn a elektřina. Teplou vodu a ohřev TUV zajišťuje dálkový rozvod z teplárny. K bytu náleží komora na patře (2 m2) a sklep (2 m2) v prvním podzemním patře.

Panelový dům je zateplený, okna jsou plastová a střecha byla taktéž v posledních letech revitalizována.
Byt není zatížený žádnými právními vadami. Plánek 2D reflektuje současný stav bytu, 3D poté návrh možné rekonstrukce koupelny a kuchyně.

Parkování je možné před domem.
Měsíční poplatky v rámci SVJ jsou pro 2 osoby 4.800,- Kč.

V lokalitě je veškerá občanská vybavenost, školy, školky, v blízkosti oblíbený OC Centrál Most a Aquapark Most.
S financováním Vám ráda pomohu. Prohlídky jsou možné po předchozí domluvě.
Pro více informací mě neváhejte kontaktovat.

Parametry bytu

Cena
2 100 000 Kč /za nemovitost Spočítat hypotéku
Aktualizováno
7. 11. 2025
Adresa
Růžová, Most
ID
25035
Stavba
Panelová
Stav objektu
Před rekonstrukcí
Patro
8. z 8
Lokalita objektu
Centrum obce
Vlastnictví
Osobní
Užitná plocha
56 m2
Podlahová plocha
56 m2
Třída energetické náročnosti
G - Mimořádně nehospodárná
Elektřina
230V
Sklep
Výtah
Bezbarierový přístup

Kontaktovat makléře

Máte zájem o tento byt?

Tímto, v souladu s nařízením Evropského parlamentu a Rady (EU) 2016/679, v platném znění, prohlašuji, že mi je alespoň 16 let a uděluji tak svůj souhlas se zpracováním zadaných údajů (jméno, telefon, e-mail, ip adresa) společnosti B3 Technology, s.r.o., IČ: 07330600, se sídlem Novostavby 126/23, 435 11 Lom (správce dat), za účelem předání dotazu z tohoto formuláře Vámi vybranému inzerentovi a zpětného kontaktování mé osoby. Osobní údaje bude správce zpracovávat manuálně i automaticky přímo prostřednictvím svých zaměstnanců. Informace předané tímto formulářem budou uloženy v databázi správce maximálně po dobu 10 let. Odvolání souhlasu s uložením a zpracováním poskytnutých dat lze e-mailem na info@vitio.cz. V případě podezření na neoprávněné použití Vámi poskytnutých údajů máte právo předat podnět k šetření Úřadu pro ochranu osobních údajů. Více informací
Chystáte se prodat nemovitost?
Pomůžeme Vám!

Inzerát si prohlédlo 0 lidí

Prodejce

Bc. Linda Petrášková MBA

Bc. Linda Petrášková MBA

Hlídací pes

Chcete dostávat emailem podobné nabídky prodeje bytů 3+1 v Mostě?

Podobné nemovitosti