Prodej bytu 4+kk, Benešov, Tyršova, 134 m2 (ID: 2504290)

Tyršova, Benešov

8 500 000 Kč /za nemovitost HYPOTÉKA od 37 990 Kč /za měsíc

(včetně poplatků, včetně provize, včetně právního servisu)

Exkluzivní partneři v Benešově

Informace k bytu

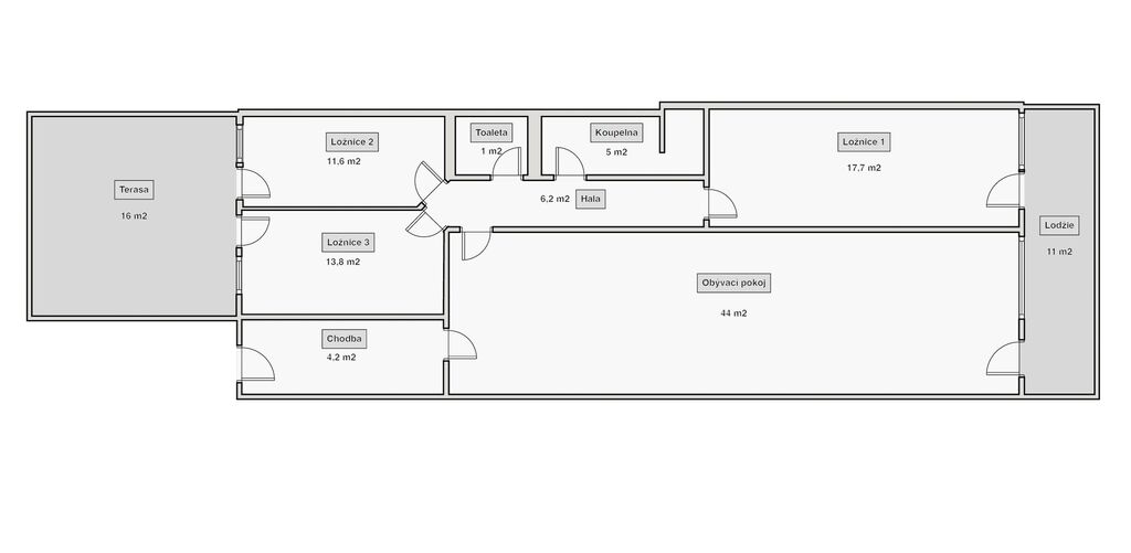
Exkluzivně Vám nabízíme prostorný a světlý byt o dispozici 4+kk, situovaný v centru Benešova, v Tyršově ulici.

Bytová jednotka o dispozici 4+kk s celkovou podlahovou plochou 134 m² (podlahová plocha 106,8m2 + lodžie (11m²) a terasa (16m²)), který se nachází ve 2. nadzemním podlaží skeletového bytového domu v centru města Benešov u Prahy. Vstup do domu i bytu je bezbariérový.


Dispozice bytu nabízí:

- Tři samostatné ložnice,
- Sklep (3m²)
- Dva venkovní prostory – lodžii (11m²) a terasu (16m²),
- Prostorný obývací pokoj s kuchyňským koutem,
- Koupelna – se sprchovým koutem a toaletou,
- Druhá samostatná toaleta,
- Částečné vybavené

Nachází v samotném centru města, v pěší zóně s výbornou dostupností. V okolí najdete obchody, kavárny, květinářství, lékárnu i úřady. Pár minut chůze je bowling, adventure golf či park. Výhodou je i skvělá dopravní dostupnost – vlakové nádraží Benešov u Prahy i autobusové nádraží jsou vzdáleny jen 5 minut pěšky. Lokalita je ideální pro bydlení i podnikání - dojezd na dálnici D1 cca 10 minut.

K relaxaci a volnočasovým aktivitám vybízí nedaleký zámek Konopiště s rozlehlým parkem, ideální pro procházky i sport.

Byt je vhodný jak pro rodinné bydlení, tak jako investiční příležitost. Možnost financování hypotečním úvěrem, s vyřízením rádi pomůžeme. Právní servis zajištěn.

Rádi Vám bezplatně zajistíme vhodného nájemce pro Váš investiční záměr.

Pro více informací nás neváhejte kontaktovat.

Parametry bytu

Cena
8 500 000 Kč /za nemovitost Spočítat hypotéku
Poznámka k ceně
včetně poplatků, včetně provize, včetně právního servisu
Aktualizováno
7. 11. 2025
Adresa
Tyršova, Benešov
ID
24148
Stavba
Skeletová
Stav objektu
Velmi dobrý
Patro
2. z 5
Vybaveno
Částečně
Lokalita objektu
Centrum obce
Vlastnictví
Osobní
Užitná plocha
134 m2
Podlahová plocha
134 m2
Třída energetické náročnosti
C - Úsporná
Ukazatel energetické náročnosti
125 kWh/m2 za rok
Elektřina
230V
Topení
Ústřední dálkové
Komunikace
Dlážděná, Asfaltová
Doprava
Vlak, Dálnice, Silnice, Autobus
Voda
Vodovod
Sklep
Lodžie
Terasa
Výtah

Kontaktovat makléře

Realitní kancelář

Logo Apres reality

Apres reality

28. října 400, 584 01, Ledeč nad Sázavou, Ledeč nad Sázavou

Chystáte se prodat nemovitost?
Pomůžeme Vám!

Máte zájem o tento byt?

Tímto, v souladu s nařízením Evropského parlamentu a Rady (EU) 2016/679, v platném znění, prohlašuji, že mi je alespoň 16 let a uděluji tak svůj souhlas se zpracováním zadaných údajů (jméno, telefon, e-mail, ip adresa) společnosti B3 Technology, s.r.o., IČ: 07330600, se sídlem Novostavby 126/23, 435 11 Lom (správce dat), za účelem předání dotazu z tohoto formuláře Vámi vybranému inzerentovi a zpětného kontaktování mé osoby. Osobní údaje bude správce zpracovávat manuálně i automaticky přímo prostřednictvím svých zaměstnanců. Informace předané tímto formulářem budou uloženy v databázi správce maximálně po dobu 10 let. Odvolání souhlasu s uložením a zpracováním poskytnutých dat lze e-mailem na info@vitio.cz. V případě podezření na neoprávněné použití Vámi poskytnutých údajů máte právo předat podnět k šetření Úřadu pro ochranu osobních údajů. Více informací
Chystáte se prodat nemovitost?
Pomůžeme Vám!

Inzerát si prohlédlo 1 lidí

Prodejce

Msc. Tuan Anh Dinh

Msc. Tuan Anh Dinh

Hlídací pes

Chcete dostávat emailem podobné nabídky prodeje bytů 4+kk v Benešově?

Podobné nemovitosti