Pronájem výrobních prostor, Prostějov, Za Olomouckou, 250 m2 (ID: 2498038)

Za Olomouckou, Prostějov

Cena na vyžádání /za metr čtvereční / měsíc Získejte výhodnou HYPOTÉKU

(Informace v RK)

Exkluzivní partneři v Prostějově

Informace k nemovitosti

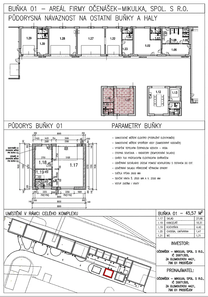
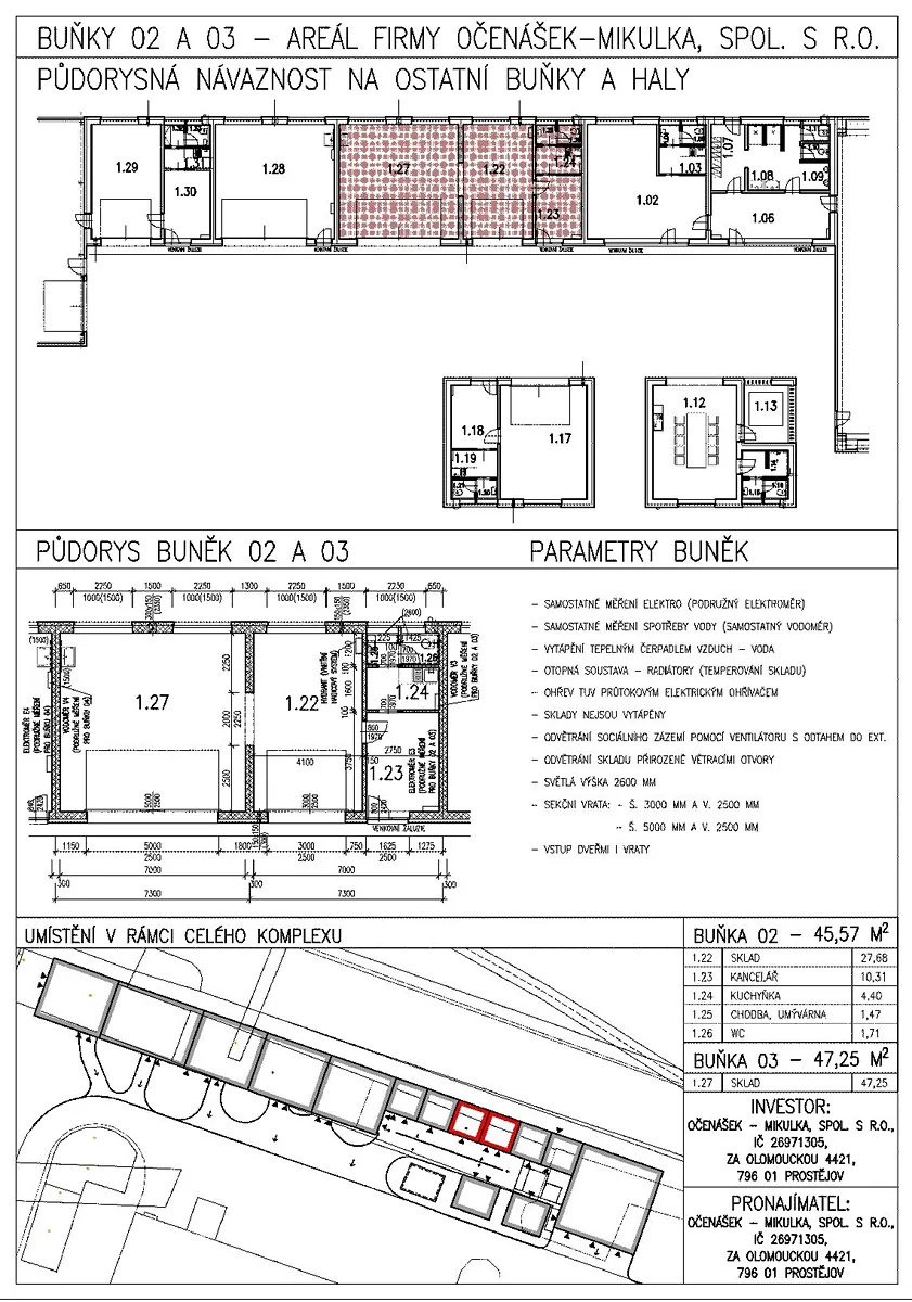
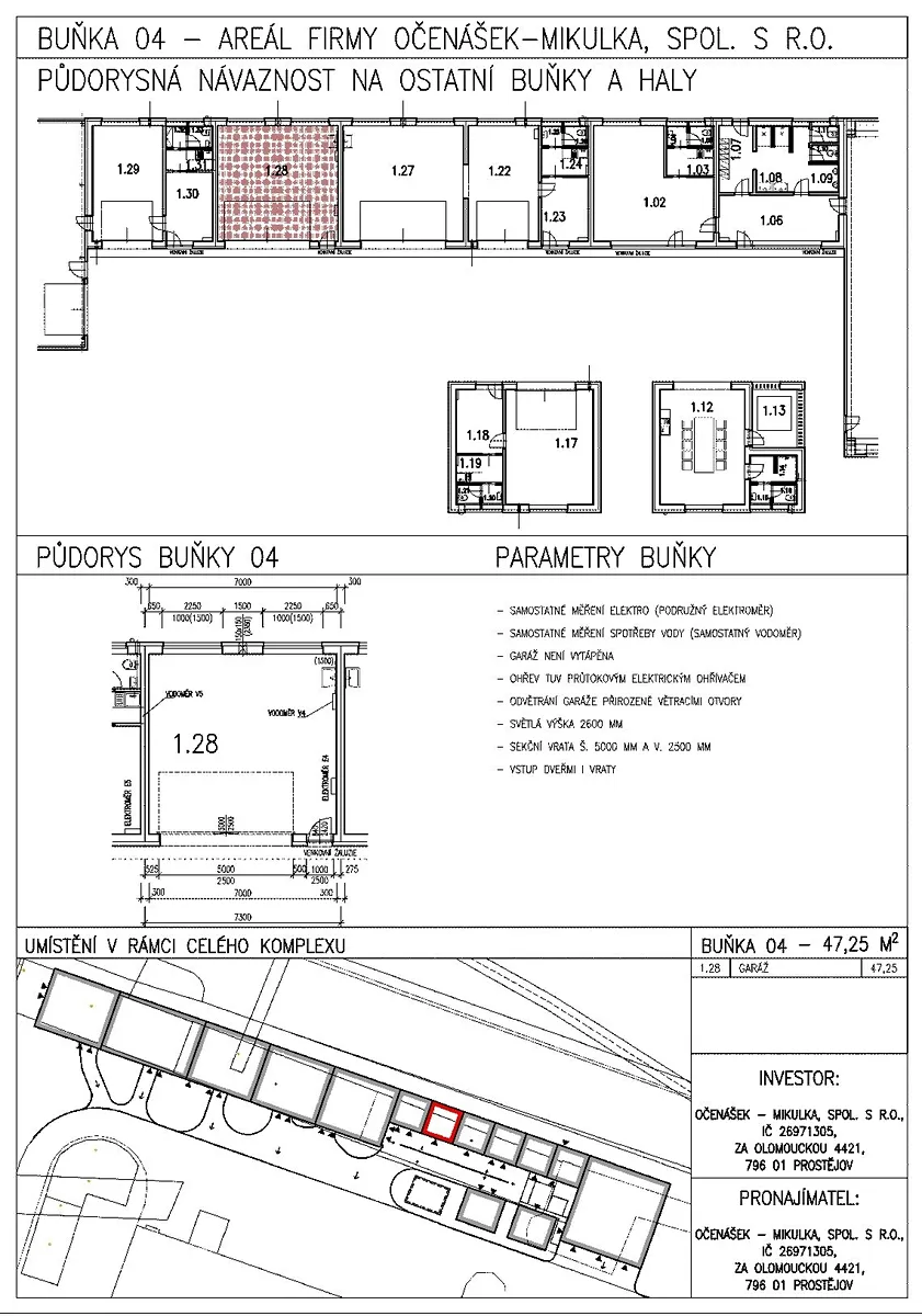
K pronájmu nová hala k výrobě, nebo skladování v areálu Za Olomouckou - sjezd D1 Brno, Olomouc. Dostatečné množství parkovacích míst. Sociální zařízení je součástí projektu. Zateplení - PUR panely. Přímý sjezd na obchvat - Kostelecká. V areálu je možné samostatně pronajmout kanceláře.
Máme víc variant metráží a výšek hal pro více účelů. Neplatíte provizi, pronájem od přímého majitele. Pro více informací a termín prohlídky kontaktujte makléře nabídky na tel: 739 531 640.

Parametry nemovitosti

Cena
Cena na vyžádání
Poznámka k ceně
Informace v RK
Aktualizováno
3. 11. 2025
Adresa
Za Olomouckou, Prostějov
ID
N00023
Stavba
Skeletová
Stav objektu
Novostavba
Vybaveno
Ano
Lokalita objektu
Okraj obce
Užitná plocha
250 m2
Zastavěná plocha
250 m2
Podlahová plocha
250 m2
Třída energetické náročnosti
B - Velmi úsporná
Plyn
Plynovod
Odpad
Veřejná kanalizace
Topení
Jiné
Komunikace
Asfaltová
Telekomunikace
Internet
Doprava
Dálnice, Silnice, MHD, Autobus
Bezbarierový přístup

Kontaktovat makléře

Máte zájem o tuto nemovistost?

Tímto, v souladu s nařízením Evropského parlamentu a Rady (EU) 2016/679, v platném znění, prohlašuji, že mi je alespoň 16 let a uděluji tak svůj souhlas se zpracováním zadaných údajů (jméno, telefon, e-mail, ip adresa) společnosti B3 Technology, s.r.o., IČ: 07330600, se sídlem Novostavby 126/23, 435 11 Lom (správce dat), za účelem předání dotazu z tohoto formuláře Vámi vybranému inzerentovi a zpětného kontaktování mé osoby. Osobní údaje bude správce zpracovávat manuálně i automaticky přímo prostřednictvím svých zaměstnanců. Informace předané tímto formulářem budou uloženy v databázi správce maximálně po dobu 10 let. Odvolání souhlasu s uložením a zpracováním poskytnutých dat lze e-mailem na info@vitio.cz. V případě podezření na neoprávněné použití Vámi poskytnutých údajů máte právo předat podnět k šetření Úřadu pro ochranu osobních údajů. Více informací
Chystáte se prodat nemovitost?
Pomůžeme Vám!

Inzerát si prohlédlo 0 lidí

Prodejce

Jaroslav Vojtěch

Jaroslav Vojtěch

Hlídací pes

Chcete dostávat emailem podobné nabídky pronájmu výrobních prostor v Prostějově?

Podobné nemovitosti