Pronájem kanceláře, Praha - Hodkovičky, Pod kopcem, 114 m2 (ID: 2496656)

Pod kopcem, Praha, Hodkovičky

380 Kč /za metr čtvereční / měsíc Získejte výhodnou HYPOTÉKU

(Celková cena za nájem bude vypočítána podle rozsahu pronajaté plochy + parkovacích míst)

Exkluzivní partneři v Praze 4

Stěhovací služby

Výkup a prodej starého nábytku

Informace k nemovitosti

Nabízíme k pronájmu moderní a zdařile dispozičně řešené kanceláře v Praze 4 - Hodkovičky, konkrétně na adrese Ulice Pod kopcem č. p. 562/5. Tento moderní komerční objekt nabízí nápadité dispozice a provedení, ideální pro společnost hledající prostorné a funkční pracovní prostory.
Tato nabídka konkrétně zahrnuje kanceláře ve druhém podlaží modré budovy, se samostatným vstupem, vlastními toaletami a možností sdílení zasedaček ve stejné budově.
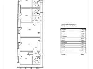
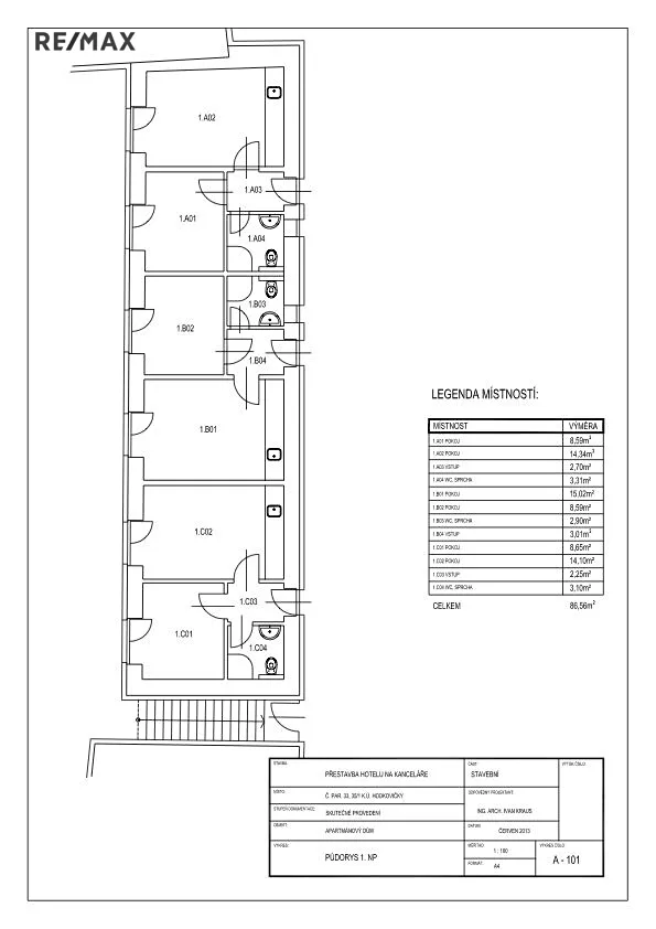
Dispozice kanceláří viz přiložený půdorys. Ke kancelářím je možné si pronajmout parkovací místa přímo v areálu.

Celkově se jedná o velmi dobře udržovanou a vybavenou nemovitost, vhodnou pro středně velkou společnost hledající moderní a komfortní pracovní prostředí. V případě zájmu o prohlídku nás neváhejte kontaktovat.
Budova má velmi zdařile řešené vytápění/chlazení formou TČ a FVE. Energetická třída budovy je A!

Parametry nemovitosti

Cena
380 Kč /za metr čtvereční / měsíc
Poznámka k ceně
Celková cena za nájem bude vypočítána podle rozsahu pronajaté plochy + parkovacích míst
Aktualizováno
31. 10. 2025
Adresa
Pod kopcem, Praha, Hodkovičky
ID
0201-NP03046
Stavba
Cihlová
Stav objektu
Velmi dobrý
Patro
2. z 3
Vybaveno
Částečně
Lokalita objektu
Klidná část obce
Užitná plocha
114 m2
Zastavěná plocha
400 m2
Podlahová plocha
114 m2
Plocha zahrady
1750 m2
Třída energetické náročnosti
A - Mimořádně úsporná
Ukazatel energetické náročnosti
100 kWh/m2 za rok
Elektřina
230V, 400V
Plyn
Plynovod
Odpad
Veřejná kanalizace
Komunikace
Betonová, Asfaltová
Telekomunikace
Internet, Kabelové rozvody
Doprava
MHD
Voda
Vodovod
Zdroj topení
Tepelné čerpadlo
Parkování

Kontaktovat makléře

Máte zájem o tuto nemovistost?

Tímto, v souladu s nařízením Evropského parlamentu a Rady (EU) 2016/679, v platném znění, prohlašuji, že mi je alespoň 16 let a uděluji tak svůj souhlas se zpracováním zadaných údajů (jméno, telefon, e-mail, ip adresa) společnosti B3 Technology, s.r.o., IČ: 07330600, se sídlem Novostavby 126/23, 435 11 Lom (správce dat), za účelem předání dotazu z tohoto formuláře Vámi vybranému inzerentovi a zpětného kontaktování mé osoby. Osobní údaje bude správce zpracovávat manuálně i automaticky přímo prostřednictvím svých zaměstnanců. Informace předané tímto formulářem budou uloženy v databázi správce maximálně po dobu 10 let. Odvolání souhlasu s uložením a zpracováním poskytnutých dat lze e-mailem na info@vitio.cz. V případě podezření na neoprávněné použití Vámi poskytnutých údajů máte právo předat podnět k šetření Úřadu pro ochranu osobních údajů. Více informací
Chystáte se prodat nemovitost?
Pomůžeme Vám!

Inzerát si prohlédlo 5 lidí

Prodejce

Ing. Milan Komárek

Ing. Milan Komárek

Hlídací pes

Chcete dostávat emailem podobné nabídky pronájmu kanceláří v Praze 4?

Podobné nemovitosti