Pronájem kanceláře, Praha - Hodkovičky, Pod kopcem, 700 m2 (ID: 2496654)

Pod kopcem, Praha, Hodkovičky

300 Kč /za metr čtvereční / měsíc Získejte výhodnou HYPOTÉKU

(Celková cena za nájem bude vypočítána podle rozsahu pronajaté plochy + parkovacích míst)

Exkluzivní partneři v Praze 4

Stěhovací služby

Výkup a prodej starého nábytku

Pojištění a finance

Informace k nemovitosti

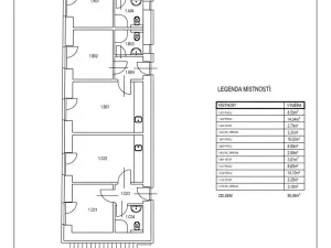
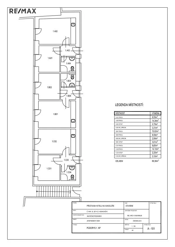
Nabízíme k pronájmu komplex moderních, světlých a velmi zdařile dispozičně řešených kanceláří v Praze 4 - Hodkovičky, konkrétně na adrese Ulice Pod kopcem č. p. 562/5. Tento moderní komerční objekt nabízí nápadité dispozice a provedení, ideální pro společnost hledající prostorné a funkční pracovní prostory. S celkovou užitnou plochou kanceláří 700 m² (+50 m2 balkony) ve dvou podlažích nabízí dostatek místa pro 60 - 90 zaměstnanců.

Celkově se v budově nachází:
10 x kancelář pro 2 až 20 osob
4 x zasedací místnost pro 2 až 8 osob (plus možnost šesti sdílených v protější budově v areálu)
2 x komplex WC, vždy ženy, muži, invalidé + umyvadla
2x kuchyňka
1x školící místnost až pro 20 osob
1x prostory pro stravování (možnost přípravy jídel pro zaměstnance)
technické zázemí
Až 35 x parkovací místo (z toho 5 pro motorky a 4 pro elektroauta s wallboxy)

Nájemní smlouvu lze rozšířit o dva bytové apartmány pro vaše dojíždějící zaměstnance.
Celkově se jedná o velmi dobře udržovanou a vybavenou nemovitost, vhodnou pro středně velkou společnost hledající moderní a komfortní pracovní prostředí. V případě zájmu o prohlídku nás neváhejte kontaktovat.
V celém areálu je velmi zdařile řešeno topení/chlazení pomocí tepelného čerpadla a FVE. Energetická náročnost třídy A!
Pronajímající si vyhrazuje právo vybrat nájemce na základě jím zvolených kritérií.

Parametry nemovitosti

Cena
300 Kč /za metr čtvereční / měsíc
Poznámka k ceně
Celková cena za nájem bude vypočítána podle rozsahu pronajaté plochy + parkovacích míst
Aktualizováno
30. 4. 2026
Adresa
Pod kopcem, Praha, Hodkovičky
ID
0201-NP02929
Stavba
Cihlová
Stav objektu
Velmi dobrý
Vybaveno
Částečně
Lokalita objektu
Klidná část obce
Užitná plocha
700 m2
Zastavěná plocha
420 m2
Podlahová plocha
820 m2
Plocha zahrady
1200 m2
Třída energetické náročnosti
A - Mimořádně úsporná
Elektřina
230V, 400V
Plyn
Plynovod
Odpad
Veřejná kanalizace
Komunikace
Betonová, Asfaltová
Telekomunikace
Internet, Kabelové rozvody
Doprava
MHD
Voda
Vodovod
Topné těleso
Podlahové vytápění
Zdroj topení
Tepelné čerpadlo
Výtah
Bezbarierový přístup
Parkování

Kontaktovat makléře

Máte zájem o tuto nemovistost?

Tímto, v souladu s nařízením Evropského parlamentu a Rady (EU) 2016/679, v platném znění, prohlašuji, že mi je alespoň 16 let a uděluji tak svůj souhlas se zpracováním zadaných údajů (jméno, telefon, e-mail, ip adresa) společnosti B3 Technology, s.r.o., IČ: 07330600, se sídlem Novostavby 126/23, 435 11 Lom (správce dat), za účelem předání dotazu z tohoto formuláře Vámi vybranému inzerentovi a zpětného kontaktování mé osoby. Osobní údaje bude správce zpracovávat manuálně i automaticky přímo prostřednictvím svých zaměstnanců. Informace předané tímto formulářem budou uloženy v databázi správce maximálně po dobu 10 let. Odvolání souhlasu s uložením a zpracováním poskytnutých dat lze e-mailem na info@vitio.cz. V případě podezření na neoprávněné použití Vámi poskytnutých údajů máte právo předat podnět k šetření Úřadu pro ochranu osobních údajů. Více informací
Chystáte se prodat nemovitost?
Pomůžeme Vám!
Theleadway banner

Inzerát si prohlédlo 17 lidí

Prodejce

Ing. Milan Komárek

Ing. Milan Komárek

Hlídací pes

Chcete dostávat emailem podobné nabídky pronájmu kanceláří v Praze 4?

Podobné nemovitosti