Prodej bytu 3+kk, Praha - Smíchov, Kmochova, 69 m2 (ID: 2496599)

Kmochova, Praha 5 - Smíchov

12 500 000 Kč HYPOTÉKA od 55 867 Kč /za měsíc

(včetně provize RK)

Exkluzivní partneři v Praze 5

Stěhovací služby

Výkup a prodej starého nábytku

Informace k bytu

Moderní byt 3+KK 69m² Praha 5 Smíchov, KINSKY PALACE

Hledáte-li opravdu krásný byt s vysokými stropy a preferujete také lukrativní adresu, pak Vás tato nabídka jistě bude zajímat. K prodeji máme bytovou jednotku 3+KK s výměrou 68,6m², umístěnou v 3. NP cihlového domu s výtahem v klidné části Smíchova, v ulici "Kmochova"

Nejen tento byt, ale i celý bytový dům prošel kompletní zdařilou rekonstrukcí, během které se podařilo developerovi propojit historii s moderními prvky bydlení. Zachovány byly vysoké stropy, které bytu dodávají vzdušnost nebo také nabízí možnost zbudování např. spacího patra a tedy rozšíření životního prostoru. Nově instalovaná dřevěná okna dodávají bytu dostatek denního světla a citlivě volené odstíny dřevěné podlahy v kombinaci s italskými obklady a dlažbou dotváří celkově perfektní dojem. Liniová kuchyňská linka vč. značkových spotřebičů v bytě také zůstává, tedy můžete se obratem stěhovat.

Činžovní dům dýchající historií, kompletní zdařilá rekonstrukce do nejmenšího detailu, reprezentativní adresa, luxusní vysoké stropy, vysoký standard.

K dispozici budete mít také vysokou sklepní kóji v suterénu domu, kam lze umístit sezónní věci.

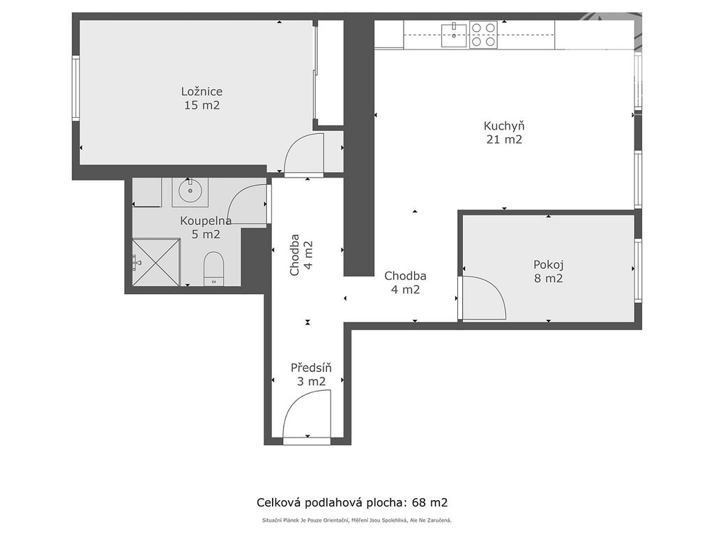
Díky dispozičnímu řešení je tento byt vhodnější především pro mladé páry, popřípadě rodinu s jedním potomkem. Jeden z pokojů je totiž relativně menší, tedy spíše se může stát dětským pokojem či pracovnou. Detaily naleznete v přiloženém půdorysu.

Občanskou vybavenost, množství zajímavých míst a dostupnost všech služeb Prahy 5 – Smíchov není jistě třeba zmiňovat, zde budete bydlet v dosahu všeho.

Přijďte se podívat sami na svůj nový domov. Budu se těšit na viděnou.

Parametry bytu

Cena
12 500 000 Kč Spočítat hypotéku
Poznámka k ceně
včetně provize RK
Aktualizováno
31. 10. 2025
Adresa
Kmochova, Praha 5 - Smíchov
ID
292
Stavba
Cihlová
Stav objektu
Po rekonstrukci
Vybaveno
Částečně
Lokalita objektu
Centrum obce
Vlastnictví
Osobní
Užitná plocha
69 m2
Třída energetické náročnosti
D - Méně úsporná

Kontaktovat makléře

Máte zájem o tento byt?

Tímto, v souladu s nařízením Evropského parlamentu a Rady (EU) 2016/679, v platném znění, prohlašuji, že mi je alespoň 16 let a uděluji tak svůj souhlas se zpracováním zadaných údajů (jméno, telefon, e-mail, ip adresa) společnosti B3 Technology, s.r.o., IČ: 07330600, se sídlem Novostavby 126/23, 435 11 Lom (správce dat), za účelem předání dotazu z tohoto formuláře Vámi vybranému inzerentovi a zpětného kontaktování mé osoby. Osobní údaje bude správce zpracovávat manuálně i automaticky přímo prostřednictvím svých zaměstnanců. Informace předané tímto formulářem budou uloženy v databázi správce maximálně po dobu 10 let. Odvolání souhlasu s uložením a zpracováním poskytnutých dat lze e-mailem na info@vitio.cz. V případě podezření na neoprávněné použití Vámi poskytnutých údajů máte právo předat podnět k šetření Úřadu pro ochranu osobních údajů. Více informací
Chystáte se prodat nemovitost?
Pomůžeme Vám!

Inzerát si prohlédlo 1 lidí

Prodejce

Michal Kopejtko

Michal Kopejtko

Hlídací pes

Chcete dostávat emailem podobné nabídky prodeje bytů 3+kk v Praze 5?

Podobné nemovitosti