Prodej pozemku pro bydlení, Průhonice, U Botiče, 527 m2

U Botiče, Průhonice

Cena na vyžádání /za nemovitost Získejte výhodnou HYPOTÉKU

(info v RK, cena k jednání)

Exkluzivní partneři v Průhonicích

Informace k pozemku

Prodej stavebního pozemku s projektem moderní vily | Průhonice u Prahy

Exkluzivně nabízíme ke koupi stavební pozemek o rozloze 527 m² v prestižní lokalitě Průhonice u Prahy, v klidné slepé ulici pod skálou, kde protéká romantický potok Botič.
Pozemek se nachází v jedné z nejvyhledávanějších rezidenčních oblastí v okolí Prahy, která nabízí výjimečné soukromí, zeleň a zároveň rychlou dostupnost do centra města.
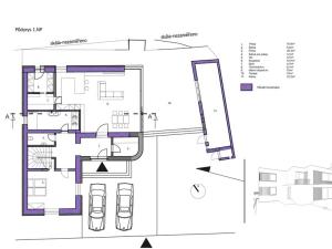
Na pozemku se v současnosti nachází starší stavba (k rekonstrukci či demolici), přičemž součástí prodeje je kompletní projektová dokumentace pro výstavbu moderního rodinného domu o celkové užitné ploše 192 m².
Navržený dům je koncipován jako elegantní a vzdušná vila s důrazem na propojení interiéru s přírodou, dostatkem denního světla a výhledem do zeleně.

Technické údaje:
• Plocha pozemku: 527 m²
• Zastavěná plocha domu: 192 m² (163 + 29 m²)
(hlavní stavba zvětšena o koeficient 1,25, včetně nového zateplení)
• Plocha zeleně (včetně zelené střechy): 287 m² (cca 42 %)
(minimální plocha zeleně není u rekonstrukce stanovena)
• Zpevněné plochy celkem: 145 m²

Lokalita – Průhonice
Průhonice patří mezi nejprestižnější a nejžádanější rezidenční lokality v okolí Prahy.
Tato malebná obec je známá svým nádherným Průhonickým parkem, zapsaným na seznamu UNESCO, který nabízí romantické procházky, jezírka a rozsáhlé sbírky rostlin a dřevin.
V Průhonicích naleznete kompletní občanskou vybavenost – obchody, kavárny, školku, základní školu, poštu, lékárnu i sportovní centrum.
Milovníci gastronomie ocení špičkové restaurace jako Park Restaurant & Grill, Tarouca, nebo Colosseum Průhonice, které patří mezi oblíbené podniky v širokém okolí.

Dopravní dostupnost
Průhonice mají vynikající spojení s Prahou – autobusové linky č. 363 a 385 zajišťují přímé spojení na stanici metra C – Opatov, odkud se do centra města dostanete během několika minut.
Pro motoristy je lokalita ideální i díky rychlému napojení na dálnici D1, která umožňuje dojezd do Prahy zhruba do 10 minut.
V blízkosti se také nachází obchodní zóna Čestlice s aquaparkem, nákupními centry a veškerými službami.

Shrnutí:
• Stavební pozemek o rozloze 527 m²
• Klidná slepá ulice pod skálou, u potoka Botič
• Projektová dokumentace na moderní rodinný dům 190 m² v ceně
• Zastavěná plocha domu: 192 m²
• Plocha zeleně: 287 m² (42 %)
• Zpevněné plochy: 145 m²
• Výborná dopravní dostupnost – autobus, metro C – Opatov, D1
• Občanská vybavenost, školy, sport, restaurace a kavárny v okolí
• Prestižní lokalita s výjimečnou atmosférou a blízkostí přírody

Tento pozemek představuje mimořádnou příležitost pro ty, kteří hledají spojení moderní architektury, klidu, přírody a snadné dostupnosti Prahy.
Vybudujte si zde svůj vysněný domov v jedné z nejkrásnějších a nejžádanějších lokalit v České republice.

Parametry pozemku

Cena
Cena na vyžádání Spočítat hypotéku
Poznámka k ceně
info v RK, cena k jednání
Aktualizováno
2. 11. 2025
Adresa
U Botiče, Průhonice
ID
81065
Plocha pozemku
527 m2
Elektřina
120V
Odpad
Veřejná kanalizace
Voda
Místní zdroj vody

Kontaktovat makléře

Máte zájem o tento pozemek?

Tímto, v souladu s nařízením Evropského parlamentu a Rady (EU) 2016/679, v platném znění, prohlašuji, že mi je alespoň 16 let a uděluji tak svůj souhlas se zpracováním zadaných údajů (jméno, telefon, e-mail, ip adresa) společnosti B3 Technology, s.r.o., IČ: 07330600, se sídlem Novostavby 126/23, 435 11 Lom (správce dat), za účelem předání dotazu z tohoto formuláře Vámi vybranému inzerentovi a zpětného kontaktování mé osoby. Osobní údaje bude správce zpracovávat manuálně i automaticky přímo prostřednictvím svých zaměstnanců. Informace předané tímto formulářem budou uloženy v databázi správce maximálně po dobu 10 let. Odvolání souhlasu s uložením a zpracováním poskytnutých dat lze e-mailem na info@vitio.cz. V případě podezření na neoprávněné použití Vámi poskytnutých údajů máte právo předat podnět k šetření Úřadu pro ochranu osobních údajů. Více informací
Chystáte se prodat nemovitost?
Pomůžeme Vám!

Inzerát si prohlédlo 1 lidí

Prodejce

Tomáš Brejcha

Tomáš Brejcha

Hlídací pes

Chcete dostávat emailem podobné nabídky prodeje pozemků pro bydlení v Průhonicích?

Podobné nemovitosti