Budějovická, Praha 4
Nabízíme ke koupi světlý a pečlivě udržovaný byt o dispozici 3+1 (77 m²), umístěný v 5. nadzemním podlaží cihlového domu s výtahem ve vyhledávané lokalitě Prahy 4, jen několik minut chůze od stanice metra Budějovická.
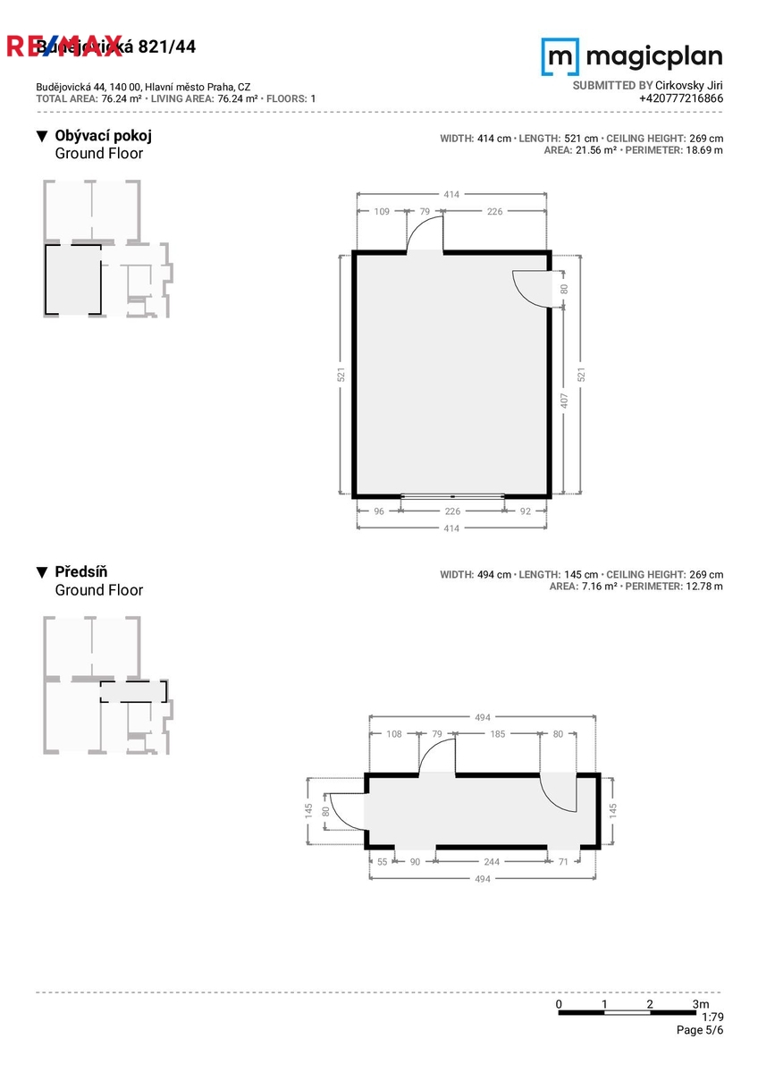
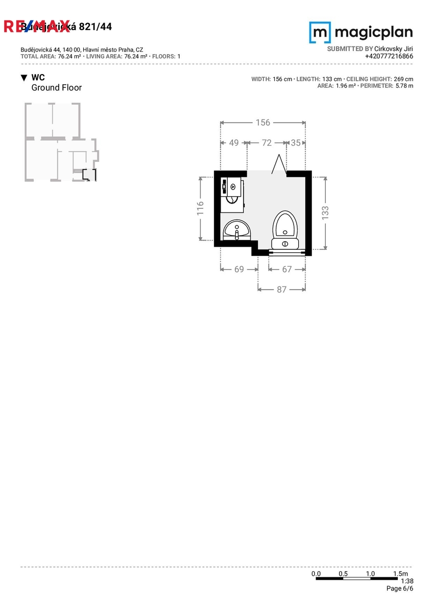
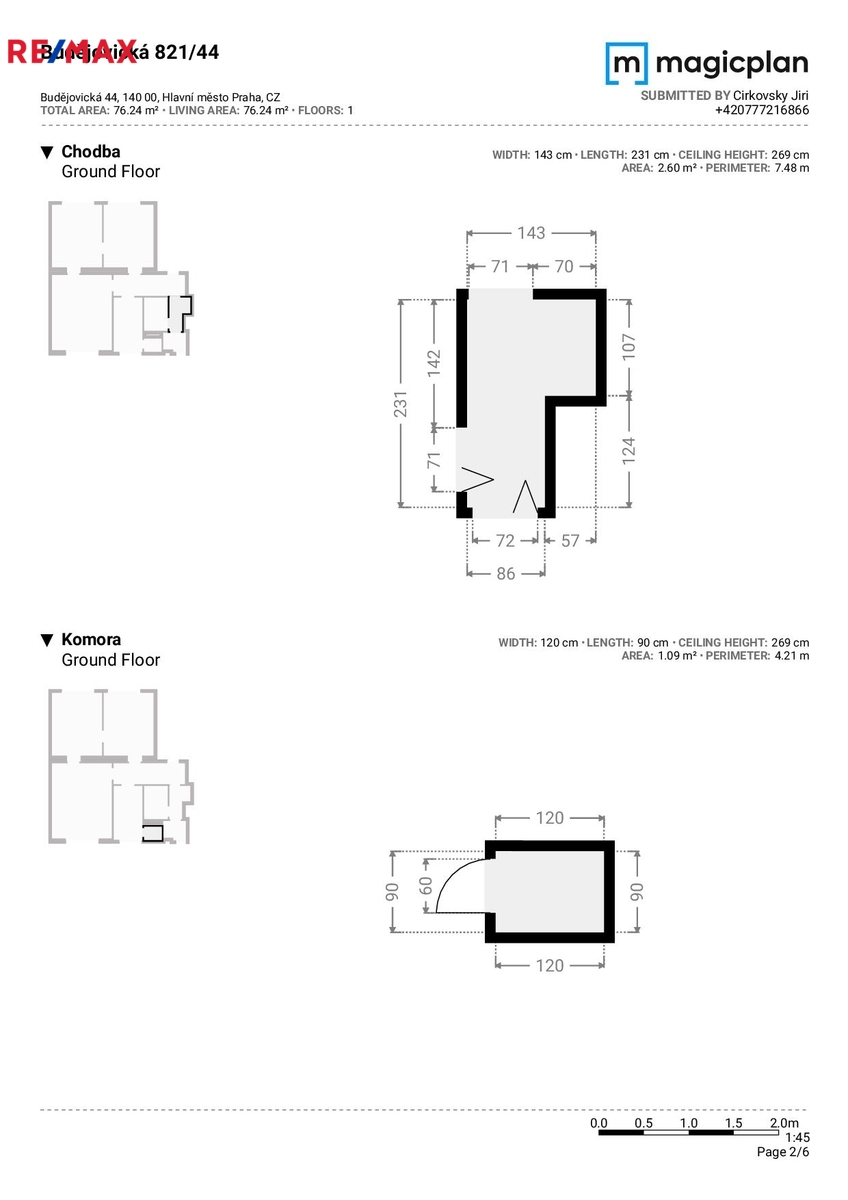
Dispozici tvoří prostorný obývací pokoj (22 m2), kuchyně se spíží, dvě ložnice (15,5 a 15,7 m2), koupelna se sprchovým koutem, samostatná toaleta a předsíň. Dále je k dispozici opravdu velká sklepní kóje s právem výhradního užívání. Byt má dobrou orientaci vůči světovým stranám – obývací pokoj s kuchyní jsou situovány na jihozápad, což zajišťuje příjemné světlo, ložnice jsou pak orientované na severovýchod. Plastová okna jsou opatřena venkovními elektrickými žaluziemi, dřevěné parkety v obytných místnostech, v kuchyni marmoleum, dlažba v koupelně, na toaleta a v předsíni. Udržovaný byt prošel částečnou rekonstrukcí: podhledy, částečně elektřina, renovace parket a aktuálně nová dosud nepoužívaná kuchyňská linka. Vytápění zajišťuje plynový kotel Vaillant.
Dům po revitalizaci – zateplení, střecha, společné prostory, stoupačky, výtah. Těsně za domem se nachází zelené prostranství s dětským hřištěm.
Lokalita nabízí vynikající občanskou vybavenost i dopravní dostupnost. V docházkové vzdálenosti se nachází mateřská a základní škola, gymnázium, dětská hřiště, restaurace, kavárny, poliklinika i obchodní centrum. Pro aktivní odpočinek je ideálním místem blízký park Kavčí hory, vhodný pro procházky, sport i relaxaci nebo to není daleko do Krčského a Michelského lesa. Na metro Budějovická dojdete do pěti minut, zastávka autobusu rovněž pár kroků a automobilem se snadno napojíte na magistrálu a na Jižní spojku.
Pokud tedy hledáte byt v žádané lokalitě a ve skvěle dostupné části Prahy, přijďte se přesvědčit osobně, zda se tato nemovitost stane Vaším novým domovem, kam se budete rádi vracet….
 
                                        Roztylské náměstí 393/35, Praha 4
Máte zájem o tento byt?
Inzerát si prohlédlo 2 lidí
 
                                Soňa Coufalová
Chcete dostávat emailem podobné nabídky prodeje bytů 3+1 v Praze 4?